16102 3a Highway, Crawford Bay, British Columbia V0B 1E0

Listed for:
$998,000
0 beds
0 baths
Listed 7 days ago
Residential Commercial Mix for rent: 16102 3a Highway, Crawford Bay, British Columbia V0B 1E0

View all 48 photos

Learn more about this property
Listing provided by:
Century 21 Assurance Realty Ltd
MLS® number:
10352780
Agent:
Sheena Sobkiw
*Indicates required field
Name is required
Email is required
Please enter a valid phone number (e.g., 416-111-1111).

About

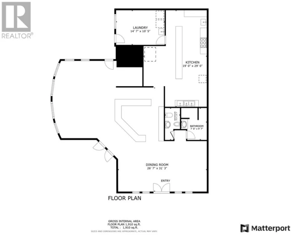
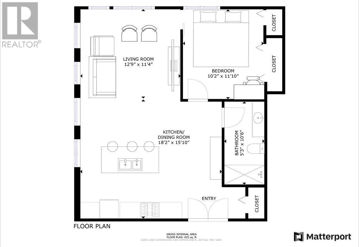
Turnkey Investment Property with Income Potential! At the heart of the offering is a renowned business space, recently renovated in 2024, complete with a fully equipped commercial kitchen, inviting dining area, and two scenic patios perfect for outdoor dining or private events. Launch your own concept, the infrastructure and highly visible location are already in place for a seamless startup! Above the commercial space are two fully furnished, modern apartments—ideal for staff accommodations, vacation rentals, or a work-live setup—providing immediate passive income or strategic housing for business operations. The expansive lower level, featuring high ceilings and easy access, opens up possibilities for event space, storage, or future expansion. The building has a new roof, two new hot water tanks, a UV and filtration water treatment system, a heat pump & air conditioning in the restaurant space! With ample parking, beautiful creek frontage, and 2 acres of usable land, this property is perfectly suited for weddings, retreats, festivals, or even glamping. This is a chance to acquire a versatile, income-producing property with both residential and commercial components in a sought-after, high-traffic location. Whether you're an investor, entrepreneur, or hospitality visionary, This property offers the infrastructure, visibility, and flexibility to bring your business goals to life! (id:27476)

Property Highlights

MLS® Number
10352780
Type
Other
Land Size
2.04 ac|1 - 5 acres

Building

Building Type
Residential Commercial Mix
Amenities
Golf Nearby, Recreation
Exterior Finish
Wood siding
Fireplace Present
No
Basement Type
Basement Features
Building Heating Type
Baseboard heaters, Heat Pump, See remarks
Heating Fuel
Electric
Building Cooling Type

Utilities

Water
Well
Utility Sewer
Septic tank

Location