16321 Woolgar Road Unit# 1 Lot# Bb1, Crawford Bay, British Columbia V0B 1E0

Listed for:
$299,000
1 beds
1 baths
Listed 154 days ago
House for rent: 16321 Woolgar Road Unit# 1 Lot# Bb1, Crawford Bay, British Columbia V0B 1E0

View all 16 photos

About

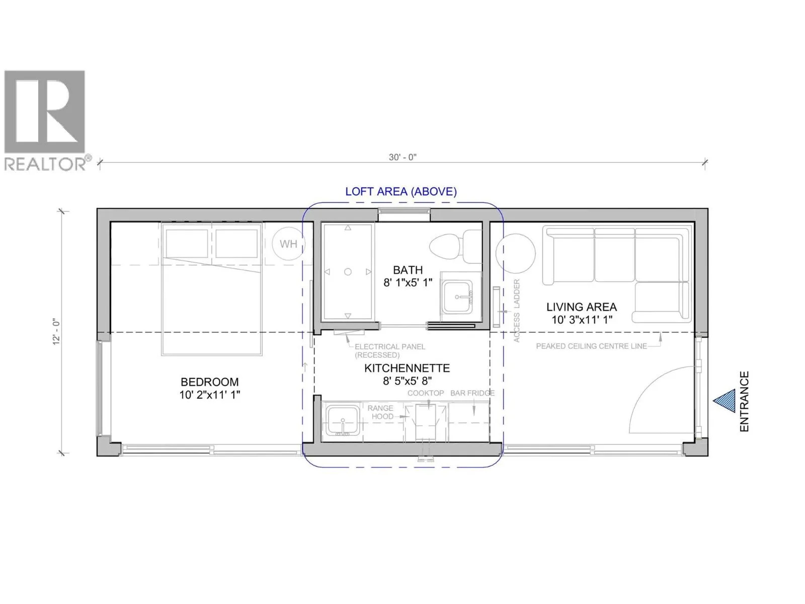
This inviting home features a modern design with an open-concept layout, 1 main floor bedroom and bathroom and bright, sunlit living spaces that make it feel instantly welcoming. A spacious loft offers versatile potential — perfect for use as a second bedroom, home office, or cozy retreat. You’ll love the contemporary finishes and thoughtful details that blend style and comfort throughout. The airy living area flows seamlessly. Ideally located just steps from the first tee box and minutes from Crawford Bay’s local market, gas station, restaurants, and artisan shops, this property offers the perfect balance of convenience and connection to nature. Nestled in the stunning Kootenays, Kokanee Springs Resort is your gateway to effortless relaxation and outdoor adventure. Resort amenities include the renowned Kokanee Springs Golf Course, a cedar barrel sauna, disc golf, and Refresh Kitchen & Bar—all just outside your door. Plus- a unique opportunity to participate in the resort’s rental program, allowing you to generate income while enjoying your vacation home. From scenic forest trails and pristine beaches to time spent on the fairway with friends, this is more than just a getaway—it’s a lifestyle that welcomes you back season after season! Note: The home is not yet built. (id:27476)

Property Highlights

MLS® Number
10369218
Type
Recreational
Community Name
Big Bend Cabins - Kokanee Springs Resort
Maintenance Fee
570.00
Ownership Type
Strata
Land Size
under 1 acre

Building

Building Type
House
Storeys
1.50
Square Footage
460 sqft
Bathrooms Total
1
Bedrooms Total
1
Exterior Finish
Metal
Fireplace Present
No
Basement Type
Basement Features
Building Heating Type
Heat Pump
Heating Fuel
Building Cooling Type
Heat Pump

Utilities

Water
Community Water User's Utility
Utility Sewer
Septic tank

Room Layout

Loft
Second level
8'1'' x 11'1''
Full bathroom
Main level
8'1'' x 5'1''
Primary Bedroom
Main level
10'2'' x 11'1''
Kitchen
Main level
8'5'' x 5'8''
Living room
Main level
10'3'' x 11'1''

Location

Learn more about this property
Listing provided by:
Century 21 Assurance Realty Ltd
MLS® number:
10369218
Agent:
Sheena Sobkiw
*Indicates required field
Name is required
Email is required
Please enter a valid phone number (e.g., 416-111-1111).