1137 36th Avenue N, Creston, British Columbia V0B 1G1

Listed for:
$439,000
2 beds
1 baths
Listed 123 days ago
Manufactured Home for rent: 1137 36th Avenue N, Creston, British Columbia V0B 1G1

View all 40 photos

About

On nearly 10 acres in Erickson this home is located on a quiet no thru road that backs onto crown land. Private and peaceful with room to spread out, yet only minutes to Creston amenities The current home is a tidy older 2 bed/1 bath mobile with a bright main living area and a WETT-certified wood stove for comfortable heat. Outside is a multi-level deck to sit, relax, and enjoy the scenery. The land is terraced with several benches and the upper bench opens to wide valley and mountain views and makes a great future building spot or shop site. A private, licensed spring provides gravity-fed water and irrigation for the gardens, and there is a well drilled on the property as well that could be re-activated with a little bit of work done to it. Outside spaces include garden beds, flowers, natural stone accents, a fire pit, and plenty of parking with an easy turnaround. Out of town, quiet, and spacious, this acreage lets you live now while you plan what’s next. Call your realtor and book a viewing today. (id:27476)

Property Highlights

MLS® Number
10363710
Type
Single Family
Ownership Type
Freehold
Land Size
9.73 ac|5 - 10 acres

Building

Building Type
Manufactured Home
Storeys
1.00
Square Footage
937 sqft
Bathrooms Total
1
Bedrooms Total
2
Amenities
Recreation, Schools, Shopping
Exterior Finish
Metal
Fireplace Present
Yes
Basement Type
Basement Features
Building Heating Type
Stove
Heating Fuel
Electric, Wood
Building Cooling Type

Utilities

Water
Spring
Utility Sewer
Septic tank

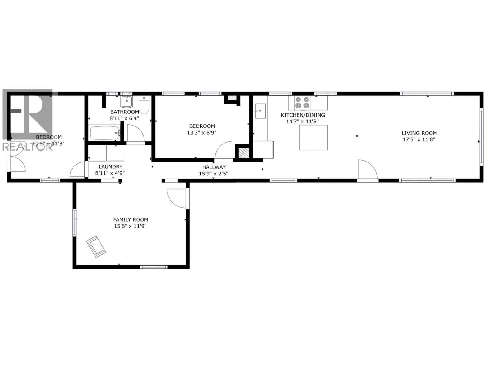
Room Layout

Family room
Main level
11'3'' x 15'7''
Primary Bedroom
Main level
10'7'' x 11'4''
Full bathroom
Main level
9'0'' x 6'2''
Bedroom
Main level
13'6'' x 8'6''
Kitchen
Main level
15'6'' x 11'6''
Living room
Main level
16'0'' x 11'6''

Location

Learn more about this property
Listing provided by:
Real Broker B.C. Ltd
MLS® number:
10363710
Agent:
Karen Peck
*Indicates required field
Name is required
Email is required
Please enter a valid phone number (e.g., 416-111-1111).