1421 Erickson Road Unit# 21, Creston, British Columbia V0B 1G1

Listed for:
$149,900
2 beds
1 baths
Listed 84 days ago
Manufactured Home for rent: 1421 Erickson Road Unit# 21, Creston, British Columbia V0B 1G1

View all 30 photos

About

This 2 bedroom 1 bathroom mobile home in Scottie's 55+ Mobile Home Park has been completely redone from the studs up, with a new roof, new electrical, plumbing, and a host of other practical and aesthetic upgrades. If you're looking for a move in ready mobile in the quiet community of Erickson this may be the one for you! (This is a no pets mobile home park) (id:27476)

Property Highlights

MLS® Number
10374593
Type
Single Family
Maintenance Fee
395.00
Ownership Type
Freehold
Land Size
under 1 acre

Building

Building Type
Manufactured Home
Storeys
1.00
Square Footage
724 sqft
Bathrooms Total
1
Bedrooms Total
2
Fireplace Present
No
Basement Type
Basement Features
Building Heating Type
Forced air, See remarks
Heating Fuel
Building Cooling Type
Wall unit

Utilities

Water
Municipal water
Utility Sewer
Municipal sewage system

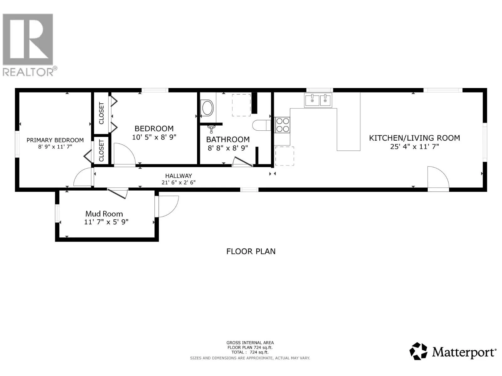
Room Layout

Mud room
Main level
11'6'' x 5'6''
Bedroom
Main level
10'6'' x 8'10''
Full bathroom
Main level
Measurements not available
Primary Bedroom
Main level
8'10'' x 11'5''
Living room
Main level
15'4'' x 11'5''
Kitchen
Main level
10' x 11'5''

Location

Learn more about this property
Listing provided by:
Real Broker B.C. Ltd
MLS® number:
10374593
Agent:
Karen Peck
*Indicates required field
Name is required
Email is required
Please enter a valid phone number (e.g., 416-111-1111).

Street Spotlight - For sale