8916 Russell Drive, Delta, British Columbia V4C 4P9

Listed for:
$1,279,000
4 beds
3 baths
Listed 87 days ago
House for rent: 8916 Russell Drive, Delta, British Columbia V4C 4P9

View all 36 photos

Learn more about this property
Listing provided by:
RE/MAX Performance Realty
MLS® number:
R3025321
Agent:
Erica Tucker
*Indicates required field
Name is required
Email is required
Please enter a valid phone number (e.g., 416-111-1111).

About

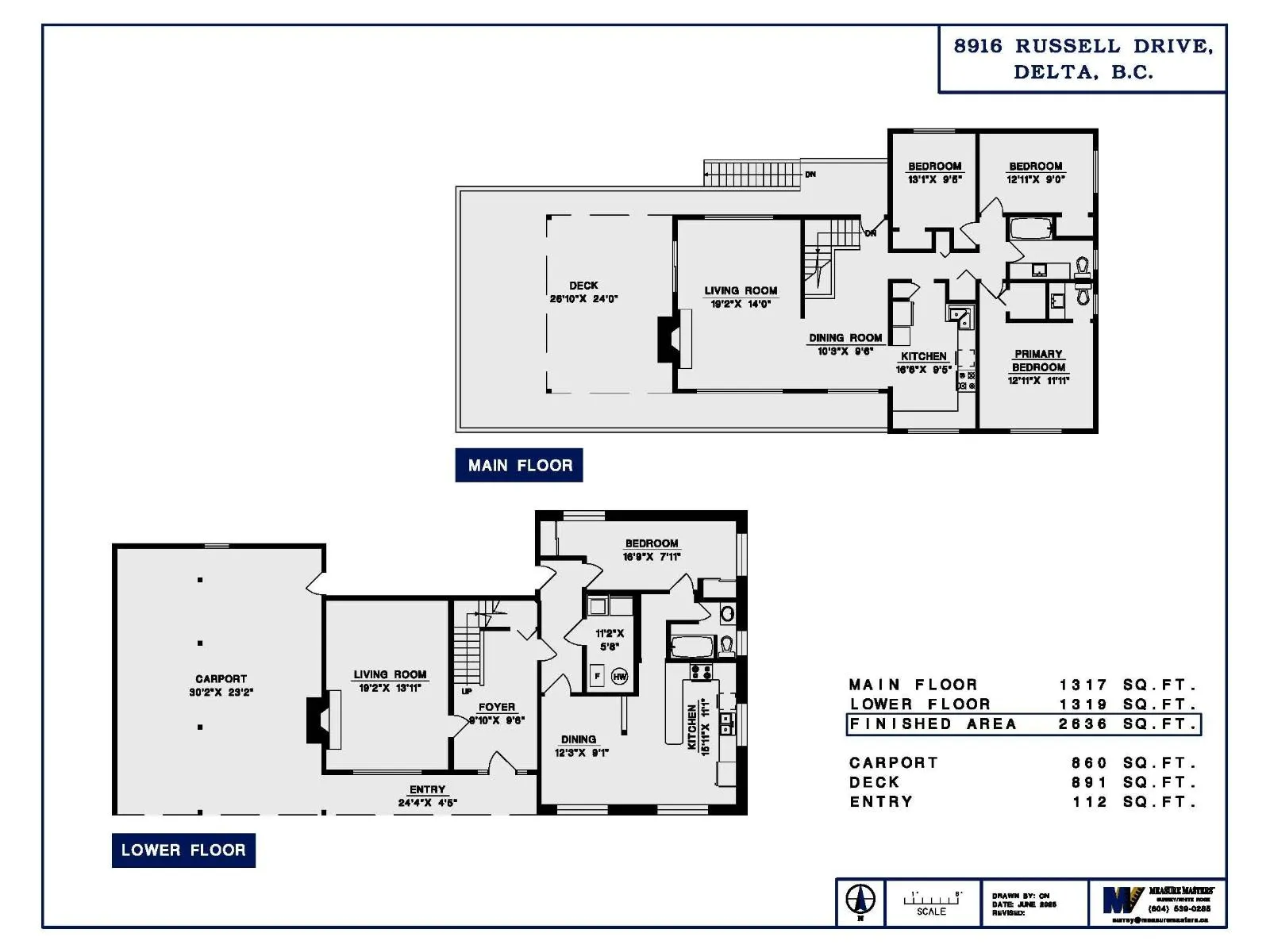
Welcome to this spacious 4-bedroom, 3-bathroom basement home on a generous 8,278 SF corner lot in family-friendly North Delta! Enjoy stunning North Shore Mountain views from the large covered sundeck, perfect for year-round entertaining. The bright, open layout offers over 2,600 SF of living space, featuring 3 bedrooms upstairs, a recreation room downstairs, and a separate 1-bedroom suite-ideal as a mortgage helper. The private backyard includes fruit trees and plenty of space for kids to play. Conveniently located steps from Devon Gardens Elementary, Annieville Lions Park, and more! (id:27476)

Property Highlights

MLS® Number
R3025321
Type
Single Family
Ownership Type
Freehold
Land Size
8278 sqft
Parking Space Total
4

Building

Building Type
House
Square Footage
2636 sqft
Bathrooms Total
3
Bedrooms Total
4
Fireplace Present
No
Basement Type
Full (Finished)
Basement Features
Separate entrance
Building Heating Type
Forced air
Heating Fuel
Building Cooling Type

Utilities

Water
Municipal water

Location