21 11188 72 Avenue, Delta, British Columbia V4E 0A5

Listed for:
$939,000
4 beds
4 baths
Listed 25 days ago
Row / Townhouse for rent: 21 11188 72 Avenue, Delta, British Columbia V4E 0A5

View all 37 photos

About

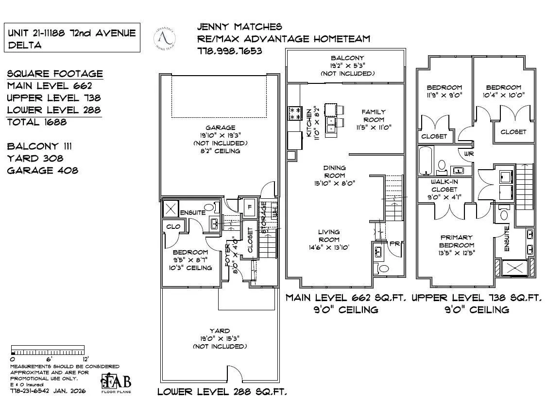
Chelsea Gate in Sunshine Hills offers exceptional space, comfort, & versatility in this 4-bed, 4-bath townhome. Built in 2019, the home spans almost 1700 sq ft & is ideal for multi-generational or growing families or those seeking room for a home office or live-in help-plus the benefit of low monthly strata fees & rental flexibility. Main floor showcases a light-filled, open layout with a stylish kitchen equipped w/ a gas cooktop, soft-closing cabinetry, & seamless flow to a sun-exposed patio. Upstairs you find 3 well appointed bedrooms and 2 baths. A private fourth bedroom with its own ensuite on the lower floor provides excellent separation for guests or extended family. A side-by-side double garage with extra ceiling height and custom storage adds both convenience and functionality. Surrounded by nature yet close to everyday essentials, this home is minutes from schools, highways, transit, shopping, & recreation, including nearby trails along Cougar Creek, Watershed & Burns Bog. (id:27476)

Property Highlights

MLS® Number
R3081502
Type
Single Family
Maintenance Fee
313.00
Ownership Type
Strata
Parking Space Total
2

Building

Building Type
Row / Townhouse
Square Footage
1688 sqft
Bathrooms Total
4
Bedrooms Total
4
Amenities
Clubhouse, Exercise Centre, Laundry - In Suite
Fireplace Present
No
Basement Type
Full (Finished)
Basement Features
Unknown
Building Heating Type
Forced air
Heating Fuel
Building Cooling Type
Air Conditioned

Utilities

Water
Municipal water

Location

Learn more about this property
Listing provided by:
RE/MAX Performance Realty
MLS® number:
R3081502
Agent:
Jenny Matches
*Indicates required field
Name is required
Email is required
Please enter a valid phone number (e.g., 416-111-1111).

Street Spotlight - For sale