11262 Glenbrook Place, Delta, British Columbia V4C 7N5

Listed for:
$1,079,000
3 beds
2 baths
Listed 70 days ago
House for rent: 11262 Glenbrook Place, Delta, British Columbia V4C 7N5

View all 34 photos

About

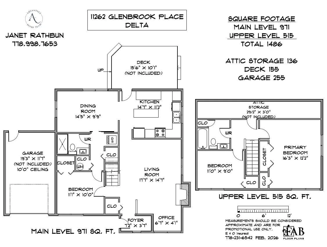
Welcome to this lovely two-storey home nestled in a quiet, family-friendly cul-de-sac in a wonderful neighborhood. Offer'g 3 bdrms & 2 full bthrms, this home is perfect for a young family looking for their own yard, space to grow, & a great community. Inside, you'll find electric baseboard heat'g complemented by a cozy gas FP, creating a warm & inviting living space. The home feat's numerous updates incl'ing roof (2013), vinyl siding (2021), vinyl plank flooring, windows, washer & dryer. The electrical system has been improved w/ the addition of a sub-panel & EV charger, & the enclosed carport now provides the convenience of a single garage. Step outside to enjoy the private backyard complete w/ a handy storage shed-perfect for tools, bikes, & outdoor gear. A covered side carport offers add'l sheltered park'g or storage. Ideally located just steps from Chalmers Elem, Burnsview Sec, Sungod Rec, and a short bike ride to the beautiful Burns Bog Nature Reserve. Don't miss this gem in a sought-after neighborhood! (id:27476)

Property Highlights

MLS® Number
R3098315
Type
Single Family
Ownership Type
Freehold
Land Size
4502 sqft
Parking Space Total
3

Building

Building Type
House
Square Footage
1486 sqft
Bathrooms Total
2
Bedrooms Total
3
Fireplace Present
Yes
Basement Type
None (Unknown)
Basement Features
Unknown
Building Heating Type
Baseboard heaters
Heating Fuel
Electric
Building Cooling Type

Utilities

Water
Municipal water

Location

Learn more about this property
Listing provided by:
RE/MAX Performance Realty
MLS® number:
R3098315
Agent:
Janet Rathbun
*Indicates required field
Name is required
Email is required
Please enter a valid phone number (e.g., 416-111-1111).