10969 86a Avenue, Delta, British Columbia V4C 2Y3

Listed for:
$1,148,000
5 beds
3 baths
Listed 15 days ago
House for rent: 10969 86a Avenue, Delta, British Columbia V4C 2Y3

View all 36 photos

About

This well-maintained and inviting home offers a great mix of comfort, convenience, and potential. Just five minutes from Hwy 17, it provides quick access to Vancouver, shopping, dining, and essentials. The home is also close to parks, transit, and top-rated schools-perfect for families. Inside, you'll find spacious rooms with tasteful updates, including sleek quartz countertops. The fully fenced backyard is a private retreat, ideal for relaxing or entertaining. A separate basement suite adds flexibility for extended family or mortgage-helper potential; however. Property contains accommodation which is not authorized. Whether you're looking to move in or invest, this home offers strong long-term value. 24 Hours' Notice. Touch Base Pls. Tks Luke (id:27476)

Property Highlights

MLS® Number
R3101067
Type
Single Family
Ownership Type
Freehold
Land Size
6852 sqft
Parking Space Total
6

Building

Building Type
House
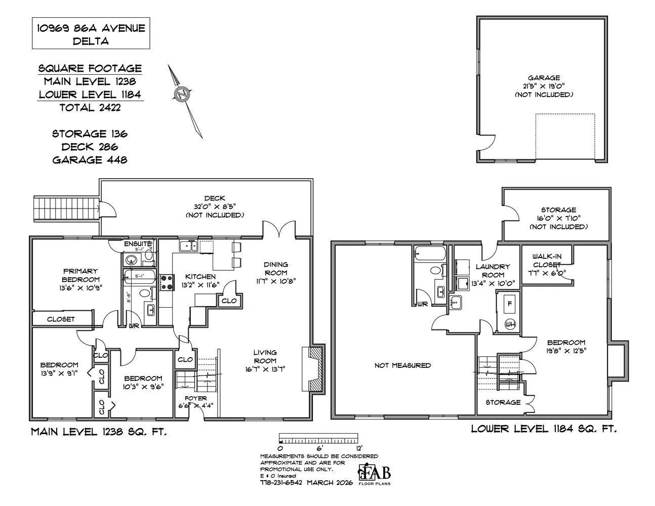
Square Footage
2422 sqft
Bathrooms Total
3
Bedrooms Total
5
Amenities
Laundry - In Suite
Fireplace Present
Yes
Basement Type
Full (Finished)
Basement Features
Unknown
Building Heating Type
Forced air
Heating Fuel
Natural gas
Building Cooling Type

Utilities

Water
Municipal water
Utility Sewer
Sanitary sewer, Storm sewer

Location

Learn more about this property
Listing provided by:
RE/MAX LIFESTYLES REALTY
MLS® number:
R3101067
Agent:
R.p. Luke
*Indicates required field
Name is required
Email is required
Please enter a valid phone number (e.g., 416-111-1111).