1 6222 Lower Chippewa Rd, Duncan, British Columbia V9L 5P8

Listed for:
$2,650,000
3 beds
4 baths
Listed 78 days ago
House for rent: 1 6222 Lower Chippewa Rd, Duncan, British Columbia V9L 5P8

View all 56 photos

About

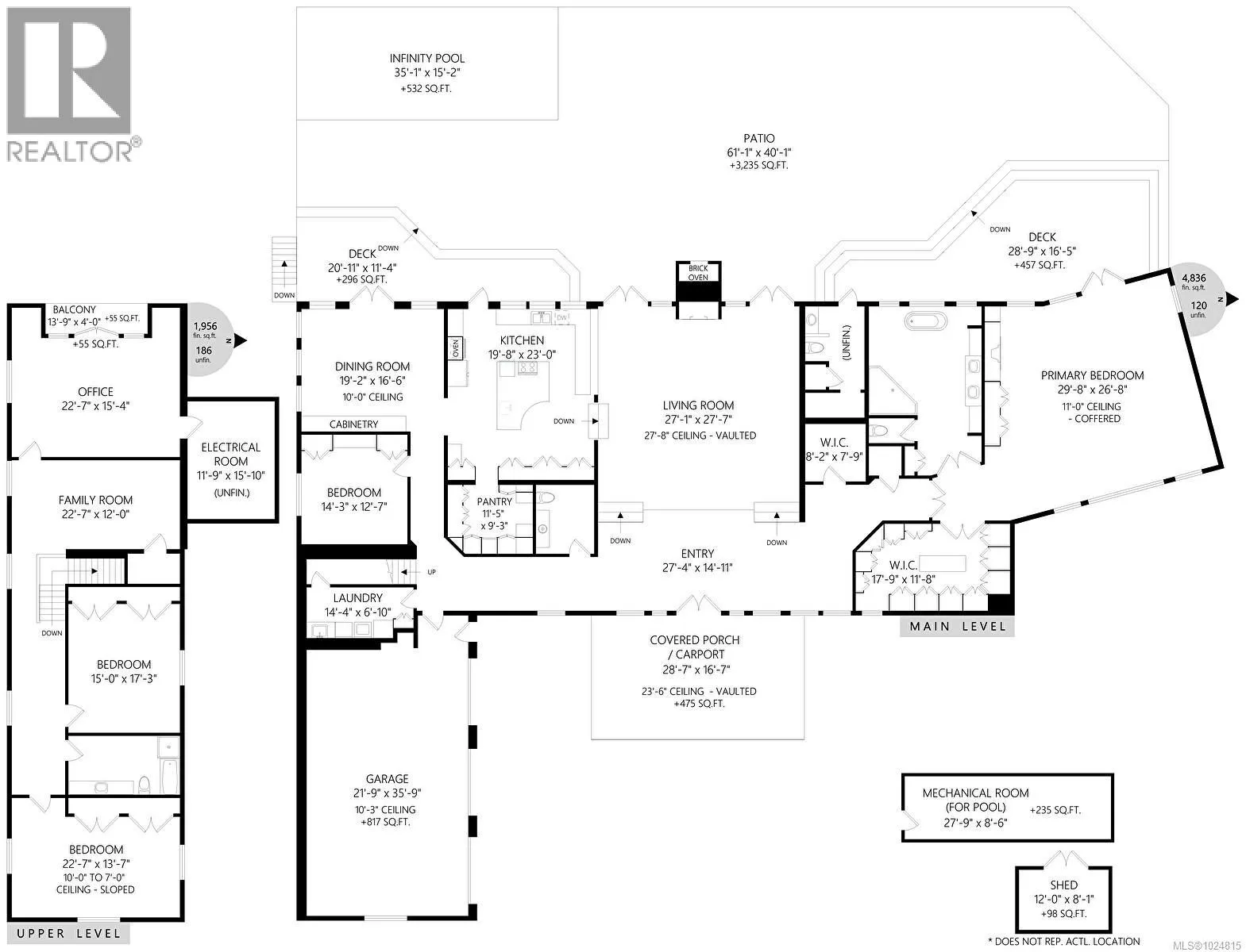
West coast contemporary masterpiece rests atop the hills of Maple Bay with breathtaking views of the Cowichan Valley! Drive over your own private bridge onto a stamped concrete courtyard and experience architecture at its finest! High ceilings (peaks at 29'), almost floor to ceiling low E tinted windows to take in the outstanding views, heated granite floors throughout the entire main level, a granite island kitchen to die for (24' x 20' + separate 10' x 12' pantry!), and a 1200+ sq ft primary bedroom wing with the most alluring ensuite & dressing room are a few outstanding features that this phenomenally spacious home offers. With 3 spacious bedrooms, 4 deluxe bathrooms and 2 stone natural gas fireplaces, there is room for every member of the family. Enjoy the infinity pool from the large concrete /slate decks, hot tub, shower room, large sitting area with the outdoor stone pizza oven. The South boundary adjacent is an Ecological Reserve. Far too many custom features to mention. (id:27476)

Property Highlights

MLS® Number
1024815
Type
Single Family
Ownership Type
Freehold
Land Size
1.58 ac
Parking Space Total
10

Building

Building Type
House
Square Footage
6792 sqft
Bathrooms Total
4
Bedrooms Total
3
Fireplace Present
Yes
Basement Type
Basement Features
Building Heating Type
Heat Pump
Heating Fuel
Natural gas
Building Cooling Type
Air Conditioned

Location

Learn more about this property
Listing provided by:
Pemberton Holmes Ltd.
MLS® number:
1024815
Agent:
Bill Liu
*Indicates required field
Name is required
Email is required
Please enter a valid phone number (e.g., 416-111-1111).