621 Coronation Ave, Duncan, British Columbia V9L 2V1

Listed for:
$549,900
2 beds
1 baths
Listed 54 days ago
House for rent: 621 Coronation Ave, Duncan, British Columbia V9L 2V1

View all 23 photos

About

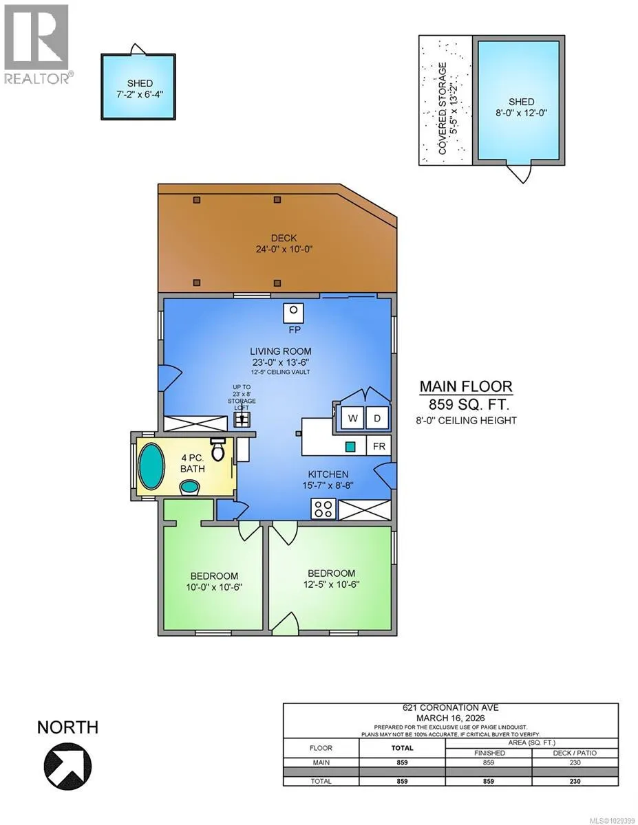
Welcome to this centrally located, cottage-style home full of warmth and character. Offering 2 bedrooms plus a cozy loft-style sleeping space, this home provides a functional and inviting layout with a unique, storybook feel. The property truly shines outdoors, with beautiful gardens that come alive in the spring and create a peaceful, private setting. A spacious deck offers the perfect place to relax or entertain. The living room features vaulted 12-ft ceilings with a beautiful exposed wood beam, creating an airy yet inviting atmosphere. Hardwood floors with natural character run throughout, while a classic clawfoot tub adds a touch of vintage appeal. The kitchen features granite countertops and newer appliances, offering both style and convenience. Stay comfortable year-round with the woodstove, ideal for cooler evenings. The roof has been maintained, offering added peace of mind. A quaint detached workshop in the backyard provides great space for hobbies, storage, or creative projects. An ideal opportunity for first-time buyers, investors, or retirees looking for a centrally located home with charm, outdoor beauty, and potential. (id:27476)

Property Highlights

MLS® Number
1029399
Type
Single Family
Ownership Type
Freehold
Land Size
6100 sqft
Parking Space Total
2

Building

Building Type
House
Square Footage
859 sqft
Bathrooms Total
1
Bedrooms Total
2
Fireplace Present
Yes
Basement Type
Basement Features
Building Heating Type
Baseboard heaters
Heating Fuel
Electric, Wood
Building Cooling Type
None

Location

Learn more about this property
Listing provided by:
RE/MAX Island Properties (DU)
MLS® number:
1029399
Agent:
Paige Lindquist
*Indicates required field
Name is required
Email is required
Please enter a valid phone number (e.g., 416-111-1111).