4811 Crescentwood Drive, Edgewater, British Columbia V0A 1E0

Listed for:
$549,900
5 beds
4 baths
Listed 60 days ago
House for rent: 4811 Crescentwood Drive, Edgewater, British Columbia V0A 1E0

View all 37 photos

Learn more about this property
Listing provided by:
RE/MAX Invermere
MLS® number:
10363373
Agent:
Jenna Minnaar
*Indicates required field
Name is required
Email is required
Please enter a valid phone number (e.g., 416-111-1111).

About

Welcome to 4811 Crescentwood Dr., an affordable 3-bedroom, 2-bathroom family home with a 2 bedroom suite on a large, nearly 1/4 acre lot! The home features a new roof and new flooring. With a park, an outdoor skating rink, and an elementary school nearby, this is the perfect home for your family. The semi-finished walk-out basement is ideal for an in-law suite or can be finished to your own taste to create a rental suite to help with the mortgage! Don't wait—call your REALTOR to book a showing today. (id:27476)

Property Highlights

MLS® Number
10363373
Type
Single Family
Ownership Type
Freehold
Land Size
0.24 ac|under 1 acre

Building

Building Type
House
Storeys
1.00
Square Footage
1413 sqft
Bathrooms Total
4
Bedrooms Total
5
Exterior Finish
Vinyl siding
Fireplace Present
No
Basement Type
Basement Features
Building Heating Type
Forced air
Heating Fuel
Building Cooling Type

Utilities

Water
Municipal water
Utility Sewer
Municipal sewage system

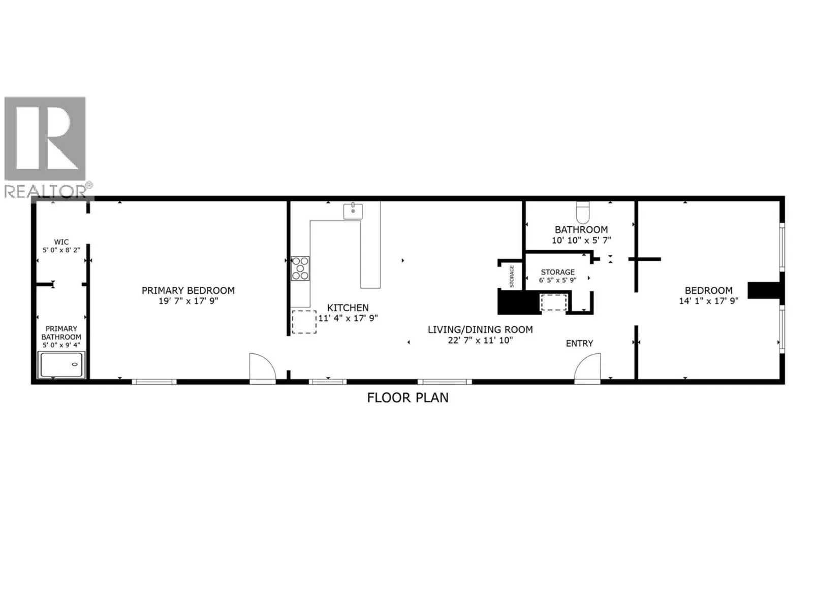
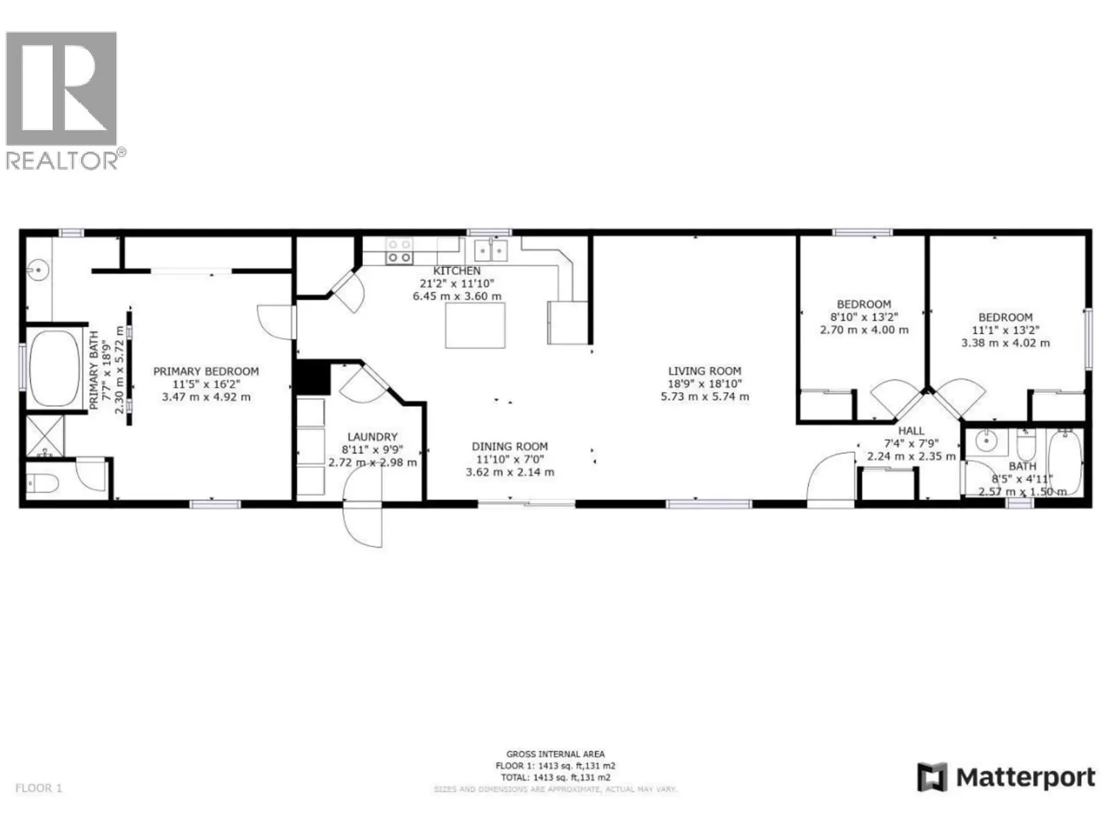
Room Layout

Storage
Lower level
6'5'' x 5'9''
3pc Ensuite bath
Lower level
5'0'' x 9'4''
Bedroom
Main level
11'1'' x 13'2''
Bedroom
Main level
8'10'' x 13'2''
3pc Bathroom
Main level
8'5'' x 4'11''
4pc Ensuite bath
Main level
18'9'' x 7'7''
Primary Bedroom
Main level
11'5'' x 16'2''
Living room
Main level
18'9'' x 18'7''
Kitchen
Main level
21'2'' x 11'10''
Dining room
Main level
11'10'' x 7'0''
Bedroom
Additional Accommodation
17'9'' x 14'1''
Full bathroom
Additional Accommodation
10'10'' x 5'7''
Other
Additional Accommodation
8'2'' x 5'0''
Primary Bedroom
Additional Accommodation
19'7'' x 17'9''
Living room
Additional Accommodation
22'7'' x 11'10''
Kitchen
Additional Accommodation
17'9'' x 11'4''

Location