959 Enderby Mabel Lake Road Unit# 20, Enderby, British Columbia V0E 1V5

Listed for:
$255,000
3 beds
2 baths
Listed 6 days ago
Manufactured Home for rent: 959 Enderby Mabel Lake Road Unit# 20, Enderby, British Columbia V0E 1V5

View all 42 photos

About

Welcome to this beautifully updated mobile home just minutes away from Enderby in peaceful Creekside MHP. This home included several important updates including vinyl flooring (2023), 50 gallon hot water tank (2025), kitchen appliances (2023), washer/dryer (2023), windows (2023), pex plumbing, and an updated bathroom. If you are looking for space - this place has it! Enjoy the huge flat back yard which features a garden shed, above ground flower beds loaded with perennials and a gorgeous lawn. There are several fruit trees along the side of the home (plum, cherry and 2 kinds of apple) that the homeowner shares with the neighbour. Creekside Mobile Home Park offers a low monthly pad rent of $335 which includes water, sewer, garbage and street clearing. Pets are allowed with restrictions. There are no age restrictions. Come and make this wonderful spot your home today! (id:27476)

Property Highlights

MLS® Number
10375404
Type
Single Family
Maintenance Fee
335.00
Land Size
under 1 acre

Building

Building Type
Manufactured Home
Storeys
1.00
Square Footage
1494 sqft
Bathrooms Total
2
Bedrooms Total
3
Fireplace Present
Yes
Basement Type
Basement Features
Building Heating Type
Forced air
Heating Fuel
Building Cooling Type
Window air conditioner

Utilities

Water
Shared Well
Utility Sewer
Septic tank

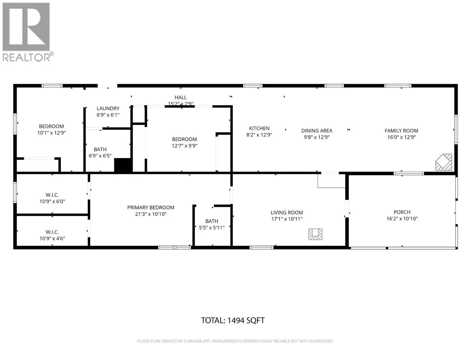
Room Layout

Bedroom
Main level
10'1'' x 12'9''
4pc Bathroom
Main level
6'9'' x 6'5''
Bedroom
Main level
12'7'' x 9'9''
Dining nook
Main level
10'9'' x 6'0''
Other
Main level
10'9'' x 4'6''
3pc Ensuite bath
Main level
5'5'' x 5'11''
Primary Bedroom
Main level
21'3'' x 10'10''
Dining room
Main level
9'8'' x 12'9''
Family room
Main level
16' x 12'9''
Living room
Main level
17'1'' x 10'11''
Kitchen
Main level
8'2'' x 12'9''

Location

Learn more about this property
Listing provided by:
RE/MAX Shuswap Realty
MLS® number:
10375404
Agent:
Nick Harrison
*Indicates required field
Name is required
Email is required
Please enter a valid phone number (e.g., 416-111-1111).