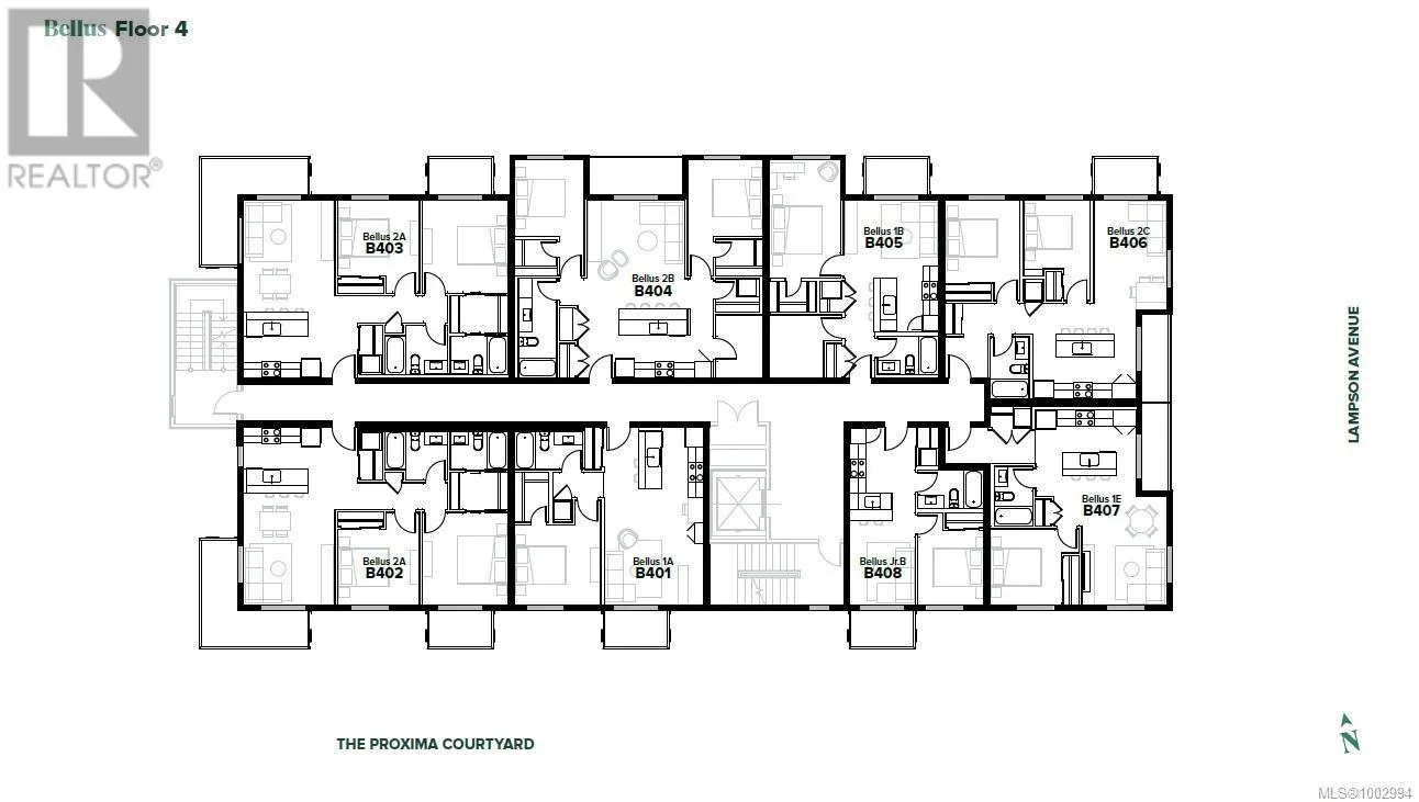
B404 1102 Esquimalt Rd, Esquimalt, British Columbia V9A 6A1

Listed for:
$749,900
2 beds
2 baths
Listed 85 days ago
Apartment for rent: B404 1102 Esquimalt Rd, Esquimalt, British Columbia V9A 6A1

View all 27 photos

Learn more about this property
Listing provided by:
Coldwell Banker Oceanside Real Estate
MLS® number:
1002994
Agent:
Mark Rice
*Indicates required field
Name is required
Email is required
Please enter a valid phone number (e.g., 416-111-1111).

About

Move in this year! Located in the heart of Esquimalt Village, The Proxima is perfectly positioned for a life full of adventure, experiences, & amenities w/ Saxe Point Park, local breweries, Esquimalt Market, shopping, & the Archie Browning Sports Centre just a stone’s throw away. Unit B404 is located within the back Bellus building in a spacious 2 bedroom, 2 bathroom floor plan featuring our Caligo colour scheme mixing neutral & modern tones with quartz countertops, eat-in kitchen island, and black stainless KitchenAid appliance package. This unit is inclusive of one underground parking stall and storage locker. Brought to you by award winning GT Mann Contracting and superior design by Spaciz Design. The grand glass lobby welcomes residents to enjoy the state of the art gym, atrium, and courtyard – live life your way at The Proxima. (id:27476)

Property Highlights

MLS® Number
1002994
Type
Single Family
Community Name
The Proxima
Maintenance Fee
483.00
Ownership Type
Strata
Land Size
904 sqft
Parking Space Total
1

Building

Building Type
Apartment
Square Footage
962 sqft
Bathrooms Total
2
Bedrooms Total
2
Fireplace Present
Yes
Basement Type
Basement Features
Building Heating Type
Baseboard heaters, Heat Pump
Heating Fuel
Electric
Building Cooling Type
Air Conditioned

Location

Street Spotlight - For sale