641 7th Avenue, Fernie, British Columbia V0B 1M0

Listed for:
$1,799,000
0 beds
0 baths
Listed 8 days ago
Residential Commercial Mix for rent: 641 7th Avenue, Fernie, British Columbia V0B 1M0

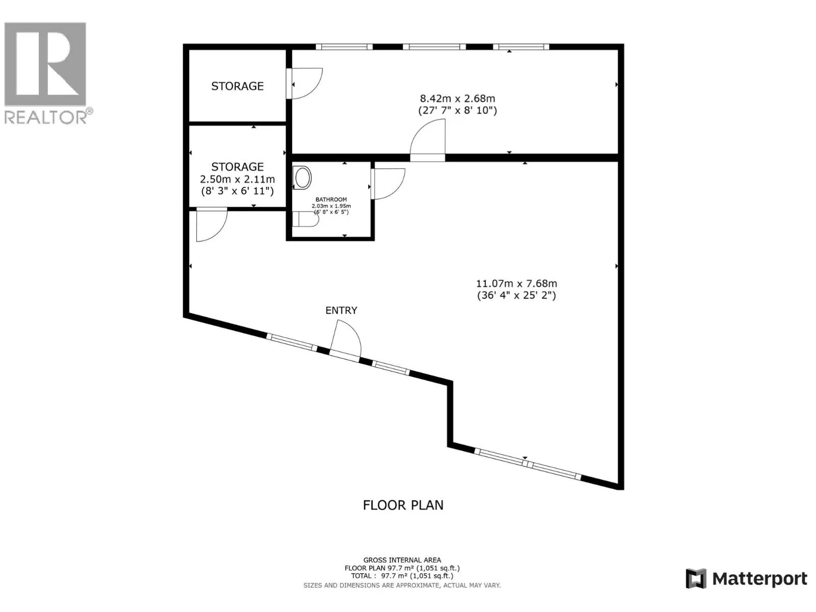
View all 75 photos

Learn more about this property
Listing provided by:
RE/MAX Elk Valley Realty
MLS® number:
10335227
Agent:
Jacqueline Fieldhouse
*Indicates required field
Name is required
Email is required
Please enter a valid phone number (e.g., 416-111-1111).

About

Opportunity knocks! Located in the heart of Fernie BC, this unique property, built in 2017 showcases inspired modern design.This property is zoned Commercial Highway offering a long list of uses: run your own business or earn revenue providing highly sort after commercial rental space. The commercial occupants will be vacating upon possession providing a blank slate for what you envision for this space! Let's explore top down. The topmost floor offers penthouse feels with unobstructed 180-degree views over the town through the expansive windows from an open plan living space bathed in natural light day long. You’ll spend all your time up here, enjoying your time beside the wood-burning fireplace or on the huge hot-tub-ready deck that wraps around 3 sides of this level. You’ll appreciate the dedicated dining space, well-appointed kitchen with walk-in pantry and conveniently located laundry and powder room on this level. Below, on the middle floor you’ll discover 3 bedrooms, all with their own full ensuite bathroom. The primary bedroom offers views of Mt Fernie through double doors or from it’s own private balcony. The lower level of this home comprises of the entry to the residence and a fully self-contained 1125 sqft commercial space. Other features include: air conditioning, large side yard for off-street parking or other, full footprint crawl space = storage++, exceptional highway exposure for business potential and MORE!. Book a tour! (id:27476)

Property Highlights

MLS® Number
10335227
Type
Other
Land Size
0.12 ac|under 1 acre

Building

Building Type
Residential Commercial Mix
Square Footage
3711 sqft
Amenities
Golf Nearby, Park, Recreation, Schools, Shopping, Ski area
Exterior Finish
Cedar Siding, Other
Fireplace Present
No
Basement Type
Basement Features
Building Heating Type
Forced air
Heating Fuel
Building Cooling Type
Central air conditioning

Utilities

Water
Municipal water
Utility Sewer
Municipal sewage system

Location