811 Firwood Road, Fintry, British Columbia V1Z 3V5

Listed for:
$400,000
2 beds
3 baths
Listed 18 days ago
House for rent: 811 Firwood Road, Fintry, British Columbia V1Z 3V5

View all 24 photos

Learn more about this property
Listing provided by:
The Agency Kelowna
MLS® number:
10360851
Agent:
Art Bidlevskii
*Indicates required field
Name is required
Email is required
Please enter a valid phone number (e.g., 416-111-1111).

About

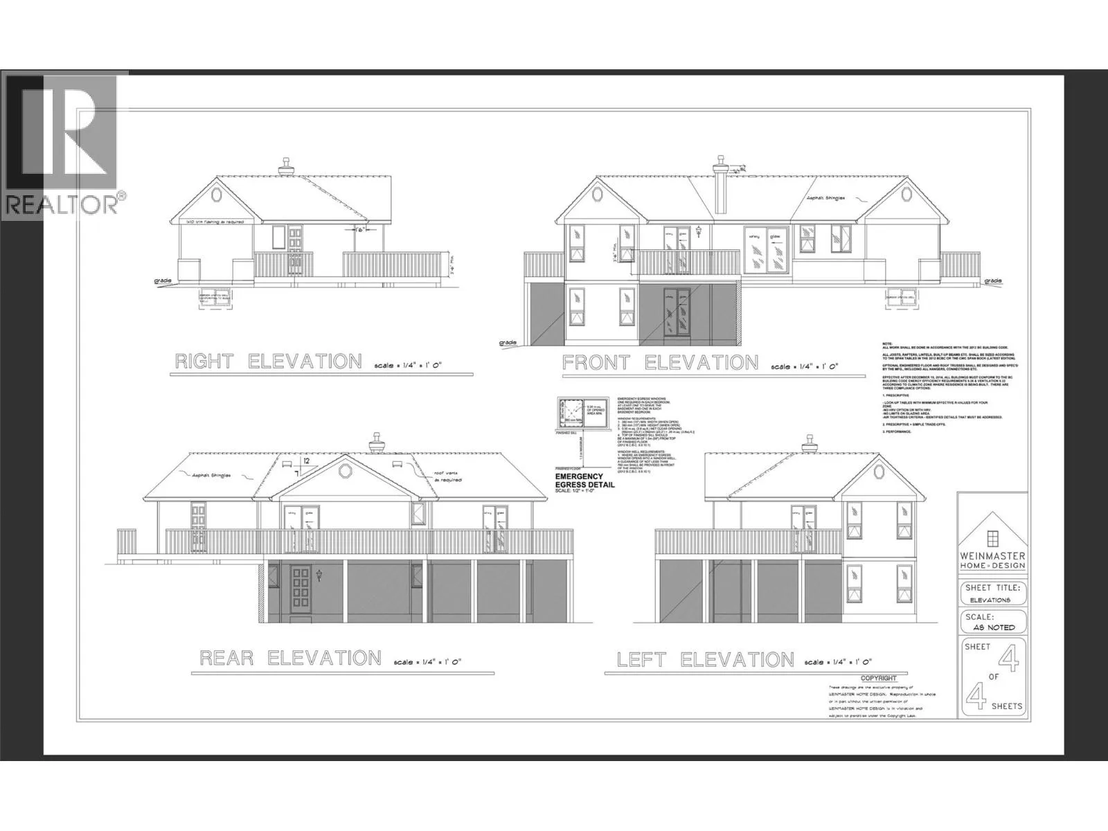
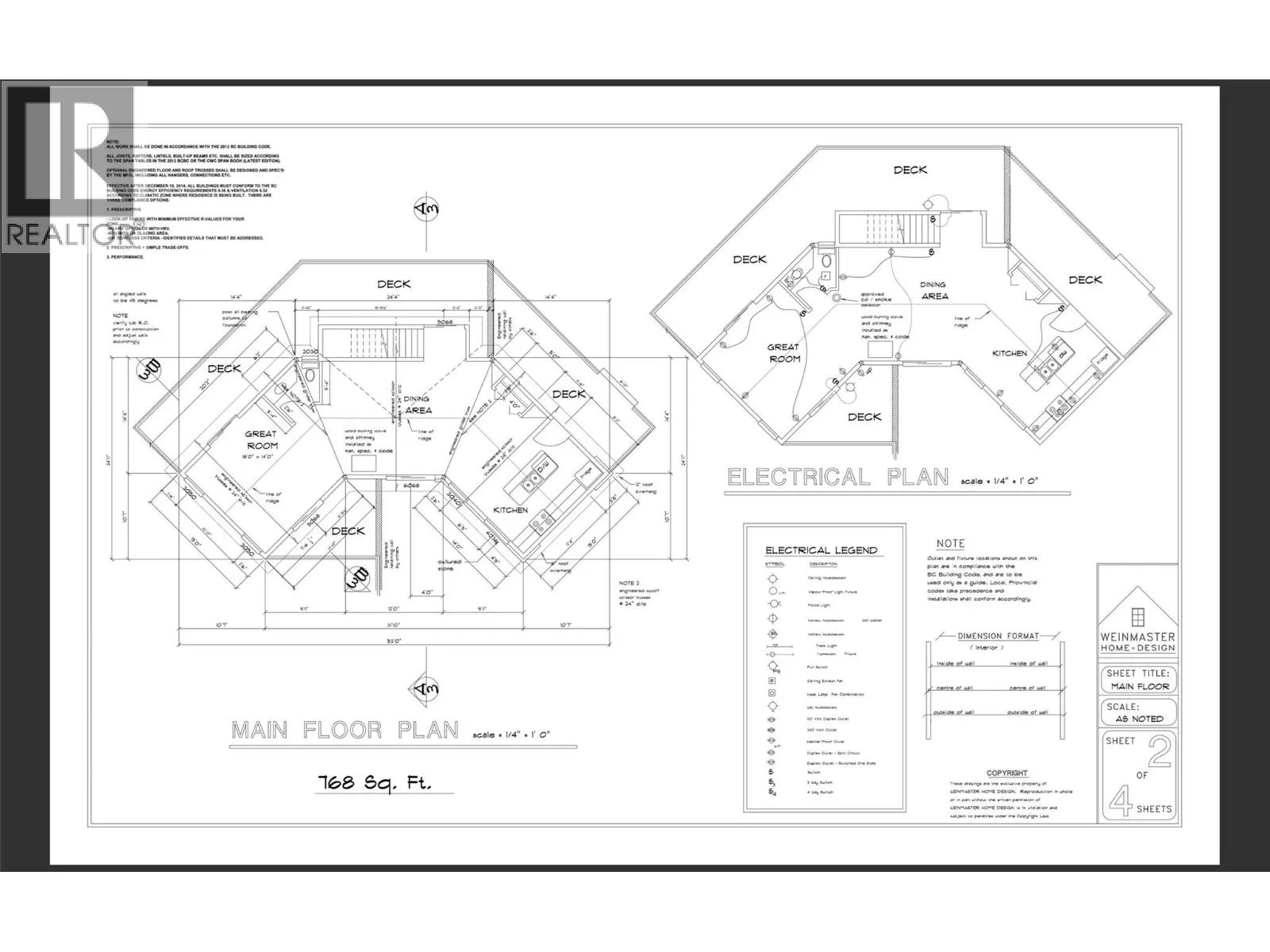
An Opportunity to Create Your Ideal Okanagan Cottage Step into ownership at the perfect stage of construction — with the freedom to customize the interior layout, kitchen design, and finishings to match your vision. Built under permit and by skilled local trades, this home offers both quality and flexibility. Set on a .41-acre lot, the property provides plenty of space for a detached shop, with additional gated access for your RV or boat. Secure, private, and full of potential, this is your chance to shape a true Okanagan retreat. (id:27476)

Property Highlights

MLS® Number
10360851
Type
Single Family
Ownership Type
Freehold
Land Size
0.41 ac|under 1 acre
Parking Space Total
7

Building

Building Type
House
Storeys
1.00
Square Footage
1536 sqft
Bathrooms Total
3
Bedrooms Total
2
Fireplace Present
No
Basement Type
Basement Features
Building Heating Type
Baseboard heaters
Heating Fuel
Building Cooling Type

Utilities

Water
Municipal water
Utility Sewer
Septic tank

Room Layout

Full ensuite bathroom
Basement
8' x 5'
Full bathroom
Basement
8'2'' x 5'
Bedroom
Basement
12' x 15'
Primary Bedroom
Basement
10' x 15'
Partial bathroom
Main level
6' x 5'
Living room
Main level
14' x 15'
Living room
Main level
12' x 15'
Kitchen
Main level
14' x 15'

Location