9832-9970 Swanson Street, Fort St. John, British Columbia V1J 4M6

Listed for:
$4,590,000
0 beds
0 baths
Listed 124 days ago
9832-9970 Swanson Street, Fort St. John, British Columbia V1J 4M6

View all 37 photos

Learn more about this property
Listing provided by:
Century 21 Energy Realty
MLS® number:
C8061755
Agent:
Kevin Pearson
*Indicates required field
Name is required
Email is required
Please enter a valid phone number (e.g., 416-111-1111).

About

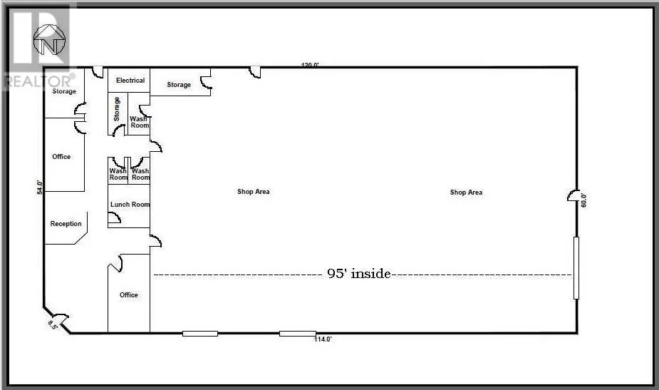
Great visibility for your business! 2 shops located off airport road with 15.29 acres Light Industrial Zoning in the PRRD jurisdiction. 9914 has new 5 year lease with a National tenant, 9970 near Airport road has a month to month lease agreement and 9830 is vacant parcel. The North shop, 9970, is 50'x140' (7,000 sq. ft.) plus there is a 1,000 sq. ft. mezzanine, 3 - 16'x16' doors, a 12'x16' and a 20'x16' door. There is 3 phase power to the North shop that also feeds the yard and 2 power sheds. Water is shared well with 9914 shop plus cistern back up. Both shops have separate septic tanks. 9914, is 60'x120' (7,182 sq. ft.) with 1,440 sq. ft. of office space. 3 overhead doors an 8'x8',a 14'x14' and a new 14'X16' The yard is all fenced & graveled with lighting. Property could be subdivided further. 9830 is a vacant 5.73 acre parcel on South side that could be used for extra yard space or a third shop location or build a new shop off airport road at 9970 yard. 9970 also for lease see C8071917 * PREC - Personal Real Estate Corporation (id:27476)

Property Highlights

MLS® Number
C8061755
Type
Industrial
Land Size
15.29 ac

Building

Square Footage
666032 sqft
Fireplace Present
No
Basement Type
Basement Features
Building Heating Type
Heating Fuel
Building Cooling Type

Location