12818 West Bypass Road, Fort St. John, British Columbia V2J 8J6

Listed for:
$18
0 beds
0 baths
Listed 32 days ago
12818 West Bypass Road, Fort St. John, British Columbia V2J 8J6

View all 18 photos

Learn more about this property
Listing provided by:
Century 21 Energy Realty
MLS® number:
C8069452
Agent:
Jody Brown
*Indicates required field
Name is required
Email is required
Please enter a valid phone number (e.g., 416-111-1111).

About

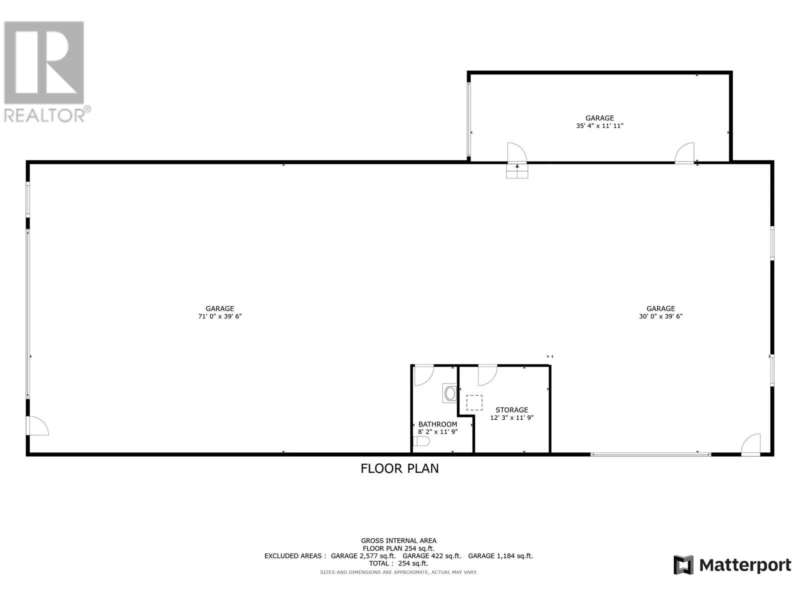
Great opportunity to buy this 40 feet wide by 100 feet deep shop just outside city limits with two overhead doors (20 feet wide by 14 feet high and 14 feet high by 12 feet wide), 2 radiant natural gas heaters and plenty of gravel yard space. Solid concrete floor throughout this sturdy metal clad shop. Additional features are a washroom with washer and dryer, attached parts room with overhead door and detached office trailer. Situated on 0.74 of an acre and set up to seamlessly run a variety of businesses on this turn key property with good visibility. Also available as a sale - see MLS# C8069434. * PREC - Personal Real Estate Corporation (id:27476)

Property Highlights

MLS® Number
C8069452
Type
Industrial
Land Size
0.74 ac

Building

Fireplace Present
No
Basement Type
Basement Features
Building Heating Type
Heating Fuel
Building Cooling Type

Location