13111 Charlie Lake Crescent, Fort St. John, British Columbia V0C 1H0

Listed for:
$1,999,900
0 beds
0 baths
Listed 149 days ago
13111 Charlie Lake Crescent, Fort St. John, British Columbia V0C 1H0

View all 40 photos

Learn more about this property
Listing provided by:
Century 21 Energy Realty
MLS® number:
C8070173
Agent:
Chad Bordeleau
*Indicates required field
Name is required
Email is required
Please enter a valid phone number (e.g., 416-111-1111).

About

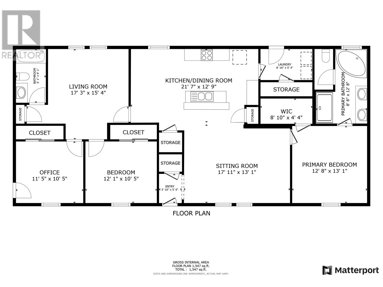
Nestled in the heart of Charlie Lake, this long-standing & well-established owner operated since 2001 RV park presents a prime investment opportunity. On 7.5 acres, the park features 60 RV stalls & 8 tenting sites, 20 & 30 amp stalls, water supplied via cistern, & is connected to the Charlie Lake sewer system. Property boasts phase one & three power across 2 separate grids. Amenities include shower & laundry facilities, garbage & recycling services, play areas, gardens, & ample green space for guests to relax & unwind. High-speed Wi-Fi is provided by 2 on-site towers. Conveniently placed 2015 - 1,620 sq ft principal residence sits on 32 steel pilings, & features 2x8 construction, R-40 floor insulation, & gyproc walls throughout. A bedroom has been converted into the office. This RV park is a popular destination for repeat clientele & remains open year-round, attracting contract & construction workers during low season. Sale includes all equipment & tools necessary for an easy transition to new ownership. * PREC - Personal Real Estate Corporation (id:27476)

Property Highlights

MLS® Number
C8070173
Type
Business
Land Size
7.5 ac

Building

Square Footage
1620 sqft
Fireplace Present
No
Basement Type
Basement Features
Building Heating Type
Heating Fuel
Building Cooling Type

Location