1130 Berry Point Rd, Gabriola Island, British Columbia V0R 1X1

Listed for:
$1,750,000
3 beds
3 baths
Listed 15 days ago
House for rent: 1130 Berry Point Rd, Gabriola Island, British Columbia V0R 1X1

View all 59 photos

About

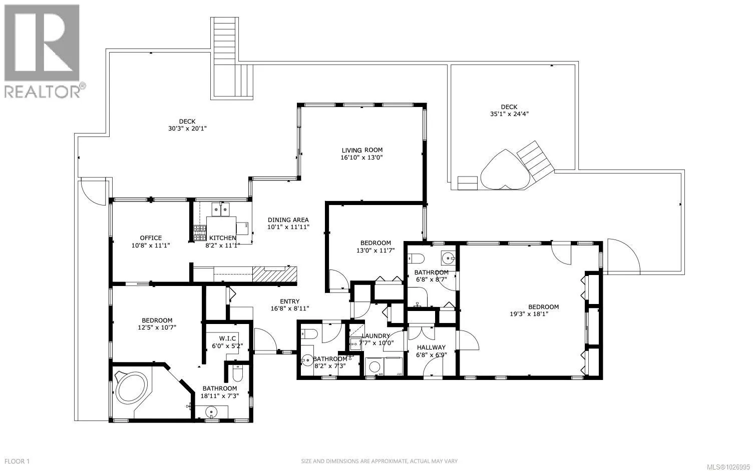
Set on 1.16 acres in a very private waterfront setting, this architect-designed 1,823 sq ft, 3-bedroom, 3-bathroom home takes full advantage of its incredible position, with sweeping views across the Salish Sea to the snow-covered mountains beyond. The open-plan design feels connected, comfortable, and full of light, with large windows framing the views from almost every room. There’s an easy flow between the indoor living spaces and the outdoors, and it’s one of those homes where people walk in and immediately pause—it truly feels like stepping into a picture. The wood-sided exterior blends beautifully into the natural setting, while a heat pump and propane stove provide comfort throughout the seasons. The generous deck and hot tub are perfectly positioned to take in the ever-changing outlook—from sunrise over Mount Baker with seals, eagles, and passing marine life part of the daily scene. The setting is quiet and peaceful, with no traffic or noise, yet it doesn’t feel isolated. The property is nicely sheltered while still enjoying wide, open ocean views. Outside, the layered gardens feature Japanese-inspired elements and a walking labyrinth, along with a studio, teahouse, and workshop spaces offering flexibility and plenty of options for how to use the space. A full information package is available. All information to be verified by a buyer if deemed important. (id:27476)

Property Highlights

MLS® Number
1026995
Type
Single Family
Ownership Type
Freehold
Land Size
1.16 ac
Parking Space Total
3

Building

Building Type
House
Square Footage
1823 sqft
Bathrooms Total
3
Bedrooms Total
3
Fireplace Present
Yes
Basement Type
Basement Features
Building Heating Type
Baseboard heaters, Heat Pump
Heating Fuel
Electric, Propane, Other
Building Cooling Type
Air Conditioned

Location

Learn more about this property
Listing provided by:
Royal LePage Nanaimo Realty Gabriola
MLS® number:
1026995
Agent:
Tina Lynch
*Indicates required field
Name is required
Email is required
Please enter a valid phone number (e.g., 416-111-1111).