103 875 Gibsons Way, Gibsons, British Columbia V0N 1V8

Listed for:
$799,000
0 beds
0 baths
Listed 105 days ago
103 875 Gibsons Way, Gibsons, British Columbia V0N 1V8

View all 9 photos

About

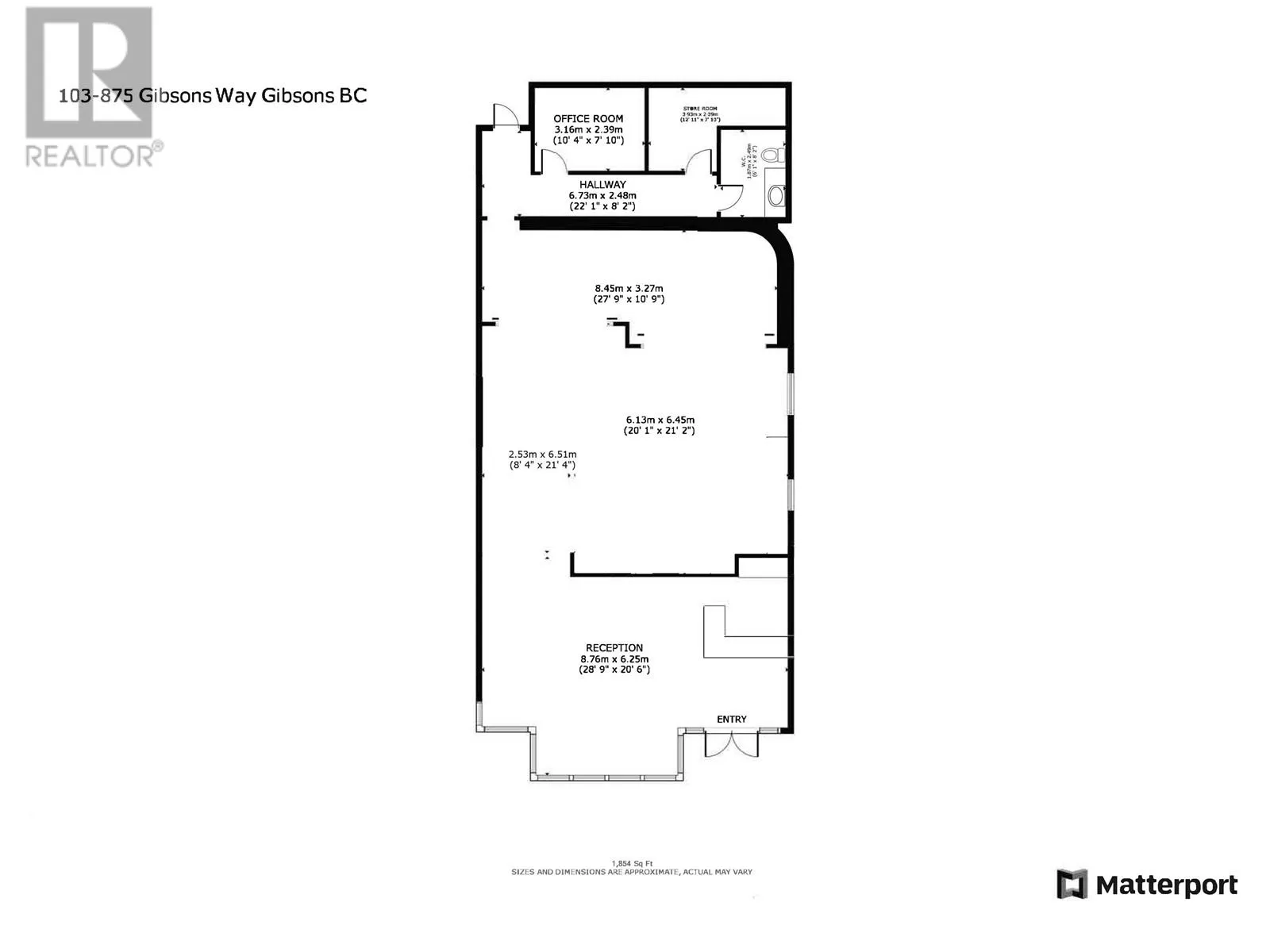
**Prime Commercial Space Available in Gibsons, BC!** Seize the chance to own a versatile, street-level commercial unit in the heart of Gibsons. Constructed in 2015 with durable concrete, this 1,854 sq ft space boasts excellent exposure, benefiting from both foot traffic and visibility along the highway. Features: - **3 Dedicated Parking Stalls** - **High Visibility Location**: Positioned directly across from Sunnycrest Mall and Elphinstone Secondary School - **Flexible Zoning Options**: Potential to rezone for a live/work setup This unit is ideal for establishing or expanding your business. Fast possession available. Don't miss out'contact the listing agent for a comprehensive info pack today! (id:27476)

Property Highlights

MLS® Number
C8068847
Type
Retail
Maintenance Fee
357.00

Building

Square Footage
1854 sqft
Fireplace Present
No
Basement Type
Basement Features
Building Heating Type
Heating Fuel
Building Cooling Type

Location

Learn more about this property
Listing provided by:
RE/MAX City Realty
MLS® number:
C8068847
Agent:
Tony Browton
*Indicates required field
Name is required
Email is required
Please enter a valid phone number (e.g., 416-111-1111).