1160 Rosamund Road, Gibsons, British Columbia V0N 1V3

Listed for:
$874,900
6 beds
3 baths
Listed 18 days ago
House for rent: 1160 Rosamund Road, Gibsons, British Columbia V0N 1V3

View all 40 photos

Learn more about this property
Listing provided by:
RE/MAX City Realty
MLS® number:
R3062960
Agent:
Ed Aiken
*Indicates required field
Name is required
Email is required
Please enter a valid phone number (e.g., 416-111-1111).

About

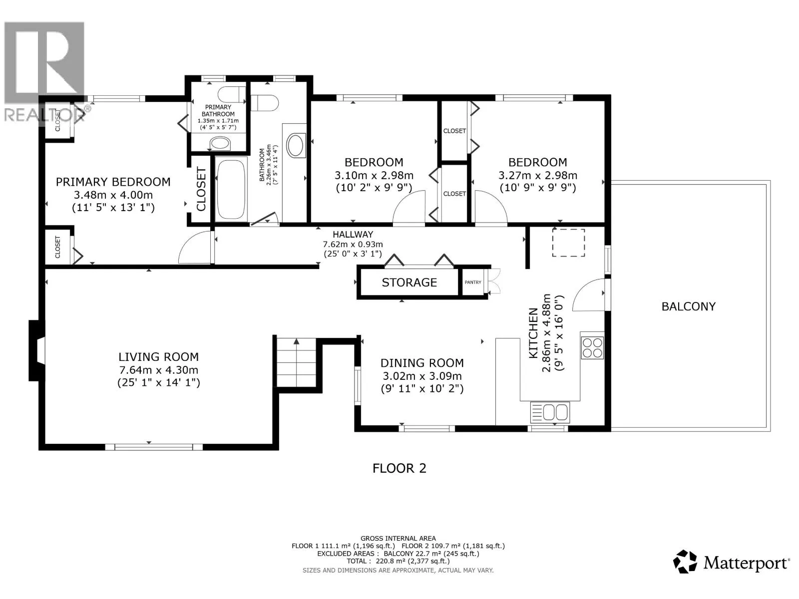
Welcome to 1160 Rosamund Road, a spacious 6-bedroom family home perfectly situated in Gibsons. Set on a sunny, flat 0.34-acre lot, this property is just a 5-minute walk to Cedar Grove Elementary and offers excellent walkability to nearby trails, beaches, and local shops. Families will love the large living and family rooms, giving everyone room to spread out, plus a 245 square ft balcony deck for outdoor gatherings and entertaining. With dual access from Rosamund and Chaster Road, a separate workshop, and high-efficiency gas central heating, this home blends comfort with practicality. Close to schools, groceries, and recreation, it´s an ideal choice for those seeking space, convenience, and an active Coast lifestyle. (id:27476)

Property Highlights

MLS® Number
R3062960
Type
Single Family
Ownership Type
Freehold
Land Size
14810 sqft

Building

Building Type
House
Square Footage
2462 sqft
Bathrooms Total
3
Bedrooms Total
6
Amenities
Shopping
Fireplace Present
Yes
Basement Type
Basement Features
Building Heating Type
Baseboard heaters, Forced air
Heating Fuel
Natural gas
Building Cooling Type

Location