1058 Gibsons Way, Gibsons, British Columbia V0N 1V7

Listed for:
$30,141
0 beds
0 baths
Listed 60 days ago
1058 Gibsons Way, Gibsons, British Columbia V0N 1V7

View all 17 photos

About

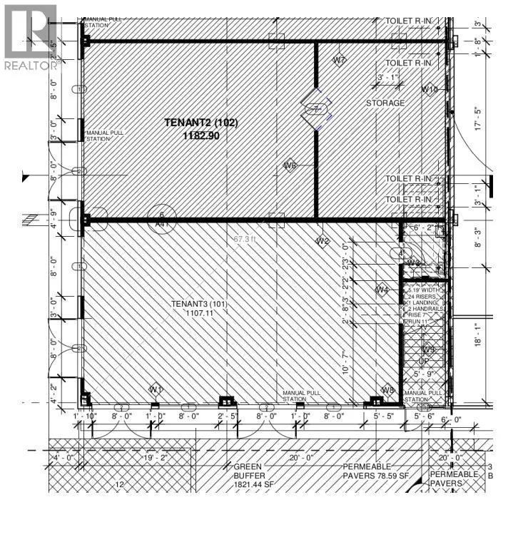
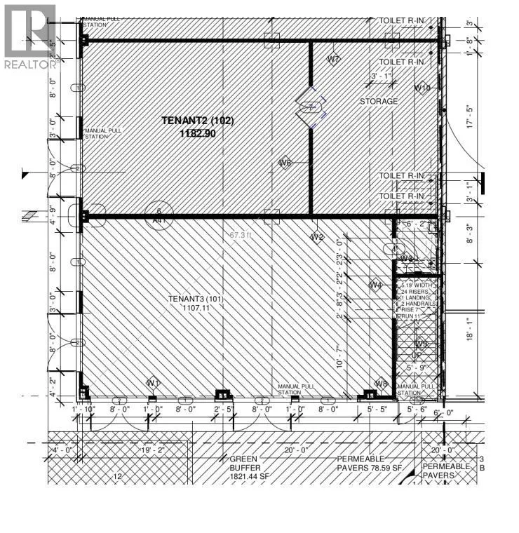
Commercial Space for Lease ' Upper Gibsons Industrial Park Bright and functional 1,182 sq ft commercial unit available July 1, 2025, in the heart of Upper Gibsons' industrial park. This well-maintained space features a heat pump for year-round comfort and is fully network-wired, making it ideal for a variety of business uses. Located in a great building with excellent exposure and easy access, this unit is supported by a responsive and reliable landlord. Currently tenanted ' viewings available by appointment only. (id:27476)

Property Highlights

MLS® Number
C8074616
Type
Office

Building

Fireplace Present
No
Basement Type
Basement Features
Building Heating Type
Heating Fuel
Building Cooling Type

Location

Learn more about this property
Listing provided by:
RE/MAX City Realty
MLS® number:
C8074616
Agent:
Tony Browton
*Indicates required field
Name is required
Email is required
Please enter a valid phone number (e.g., 416-111-1111).