1551 Bowle-evans Drive Unit# 21, Golden, British Columbia V0A 1H6

Listed for:
$949,900
3 beds
4 baths
Listed 97 days ago
Row / Townhouse for rent: 1551 Bowle-evans Drive Unit# 21, Golden, British Columbia V0A 1H6

View all 18 photos

About

SHORT TERM RENTALS ALLOWED!* Do not miss this opportunity to invest in a brand new and luxurious mountainside getaway, located in Golden, BC! The Sevens is an exclusive and gorgeous 34 unit development that will allow early buyers to choose one of three custom finishing options. Each home is crafted for the utmost comfort, with great features including attached garages, modern kitchens, large windows to enjoy the surrounding mountain views and spacious living rooms complete with fireplaces to enhance the ambiance. The upper bedrooms are well-spaced and appointed with separate ensuites. Laundry is also conveniently located on this level. Downstairs features a bedroom with full ensuite, a sizeable storage room allows you to keep extra belongings clean and out of the way, but always easy to find. You can spend the afternoon exploring nature by walking, running or biking the natural trails that run alongside or take a short bike ride or walk into downtown Golden, BC. Get in touch with your realtor for a full information package on the development and available units. (id:27476)

Property Highlights

MLS® Number
10375495
Type
Single Family
Community Name
The Sevens
Maintenance Fee
375.00
Ownership Type
Strata
Land Size
under 1 acre
Parking Space Total
2

Building

Building Type
Row / Townhouse
Storeys
3.00
Square Footage
1686 sqft
Bathrooms Total
4
Bedrooms Total
3
Amenities
Park, Recreation, Schools, Shopping, Ski area
Exterior Finish
Stone, Wood
Fireplace Present
Yes
Basement Type
Basement Features
Building Heating Type
Forced air
Heating Fuel
Building Cooling Type
See Remarks

Utilities

Water
Municipal water
Utility Sewer
Municipal sewage system

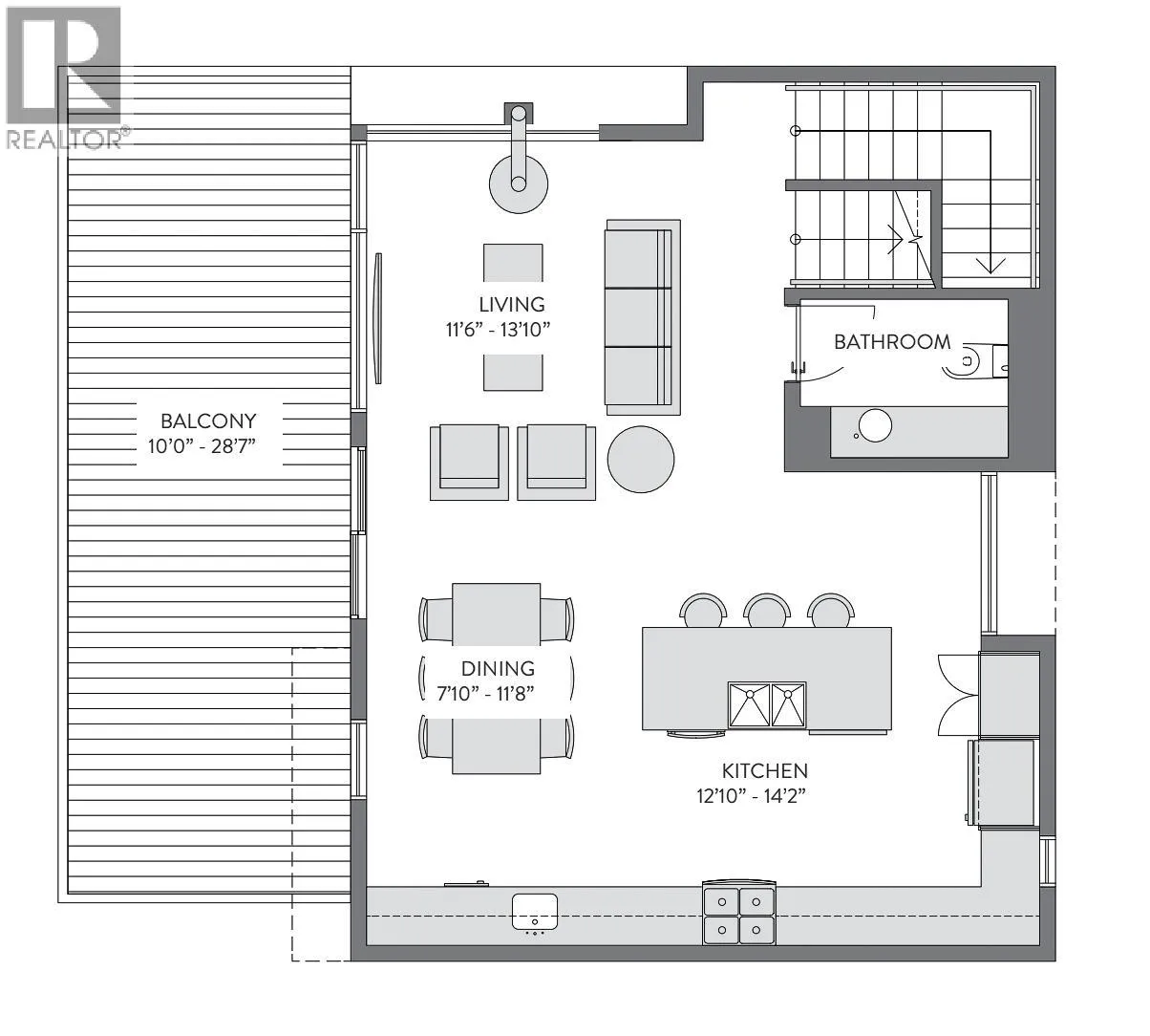
Room Layout

4pc Ensuite bath
Second level
Measurements not available
Primary Bedroom
Second level
16'10'' x 9'7''
4pc Ensuite bath
Second level
Measurements not available
Bedroom
Second level
11'2'' x 9'6''
4pc Ensuite bath
Basement
Measurements not available
Bedroom
Basement
10'0'' x 12'0''
2pc Bathroom
Main level
Measurements not available
Living room
Main level
11'6'' x 13'10''
Kitchen
Main level
12'10'' x 14'2''
Dining room
Main level
7'10'' x 11'8''

Location

Learn more about this property
Listing provided by:
RE/MAX Invermere
MLS® number:
10375495
Agent:
Jenna Minnaar
*Indicates required field
Name is required
Email is required
Please enter a valid phone number (e.g., 416-111-1111).