6450 7th Street, Grand Forks, British Columbia V0H 1H4

Listed for:
$379,000
3 beds
2 baths
Listed 37 days ago
Manufactured Home for rent: 6450 7th Street, Grand Forks, British Columbia V0H 1H4

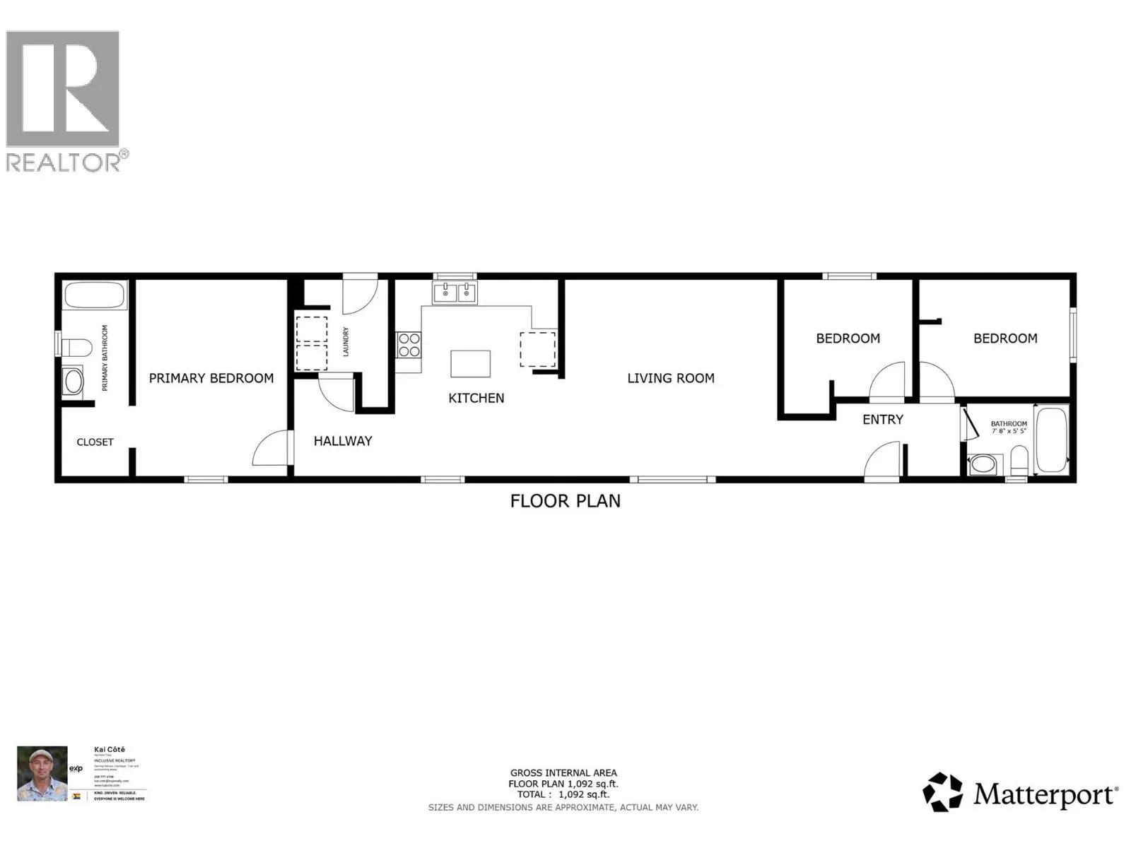
View all 38 photos

About

Welcome to this fully renovated mobile home on its own land, offering comfort and space. Set on a 0.237-acre lot, this move-in ready home features 3 bedrooms, 2 bathrooms, and over 1,200 sq ft of bright living space. The interior has been thoughtfully updated throughout, creating a fresh and welcoming layout that is both stylish and functional. Outside, you'll find multiple outbuildings, perfect for extra storage, a workshop, or hobby space. The lot provides room for outdoor gatherings while still being easy to maintain. Large trees on the property create privacy and provide shade during hot summer days. Located only a few minutes from downtown Grand Forks, this property offers both space and convenience. Whether you're a first-time buyer, looking to downsize, or searching for a move-in ready home with extra space, this property is a great opportunity. (id:27476)

Property Highlights

MLS® Number
10378824
Type
Single Family
Ownership Type
Freehold
Land Size
0.24 ac|under 1 acre
Parking Space Total
4

Building

Building Type
Manufactured Home
Storeys
1.00
Square Footage
1216 sqft
Bathrooms Total
2
Bedrooms Total
3
Amenities
Airport
Exterior Finish
Wood
Fireplace Present
No
Basement Type
Crawl space
Basement Features
Building Heating Type
Forced air, See remarks
Heating Fuel
Building Cooling Type

Utilities

Water
Municipal water
Utility Sewer
Septic tank

Room Layout

4pc Ensuite bath
Main level
Measurements not available
Primary Bedroom
Main level
11'8'' x 14'11''
Laundry room
Main level
7'4'' x 7'4''
Dining room
Main level
13'2'' x 7'5''
Kitchen
Main level
12'7'' x 7'9''
Living room
Main level
15'2'' x 14'11''
4pc Bathroom
Main level
Measurements not available
Bedroom
Main level
9'8'' x 9'7''
Bedroom
Main level
11'5'' x 9'7''
Foyer
Main level
12'9'' x 4'11''

Location

Learn more about this property
Listing provided by:
eXp Realty
MLS® number:
10378824
Agent:
Kai Côté
*Indicates required field
Name is required
Email is required
Please enter a valid phone number (e.g., 416-111-1111).