1303 Orchard Lane, Invermere, British Columbia V0A 1K0

Listed for:
$789,900
2 beds
2 baths
Listed 68 days ago
Duplex for rent: 1303 Orchard Lane, Invermere, British Columbia V0A 1K0

View all 3 photos

About

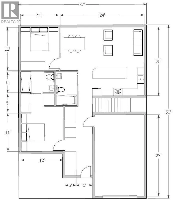
Welcome to the Orchard, where we embrace our unique, high-standard units, thoughtfully constructed just for you! Say goodbye to fees and hello to low-maintenance living, featuring robust 2x8 walls insulated to R28 and R56 in the ceiling, complemented by energy-efficient, triple-glazed windows. Imagine a home that is not only airtight but also maintains net-zero energy consumption, thanks to the addition of solar panels. Designed for lasting comfort, our homes boast wide hallways and 36"" doorways, ensuring safety and accessibility. This home offers 1040 square feet plus a attached garage of 350 square feet the grand main floor encompasses everything you need, including a spacious master suite with an ensuite bathroom, laundry, kitchen, and bathroom, all just steps away. Stay cozy year-round with a cold climate heat pump system, while the garage provides ample space for vehicles and recreational toys. Enjoy outdoor living in your private yard, complete with two sitting areas and a fence for added privacy. Best of all, every appliance is included. Quality matters. (id:27476)

Property Highlights

MLS® Number
10353194
Type
Single Family
Ownership Type
Freehold
Land Size
0.06 ac|under 1 acre
Parking Space Total
2

Building

Building Type
Duplex
Storeys
1.00
Square Footage
1850 sqft
Bathrooms Total
2
Bedrooms Total
2
Exterior Finish
Aluminum
Fireplace Present
No
Basement Type
Basement Features
Building Heating Type
Baseboard heaters, Heat Pump
Heating Fuel
Building Cooling Type
Central air conditioning

Utilities

Water
Municipal water
Utility Sewer
Municipal sewage system

Room Layout

Full bathroom
Main level
Measurements not available
Full ensuite bathroom
Main level
Measurements not available
Bedroom
Main level
' x '
Primary Bedroom
Main level
' x '
Living room
Main level
' x '
Kitchen
Main level
' x '

Location

Learn more about this property
Listing provided by:
MaxWell Rockies Realty
MLS® number:
10353194
Agent:
Bernie Raven
*Indicates required field
Name is required
Email is required
Please enter a valid phone number (e.g., 416-111-1111).