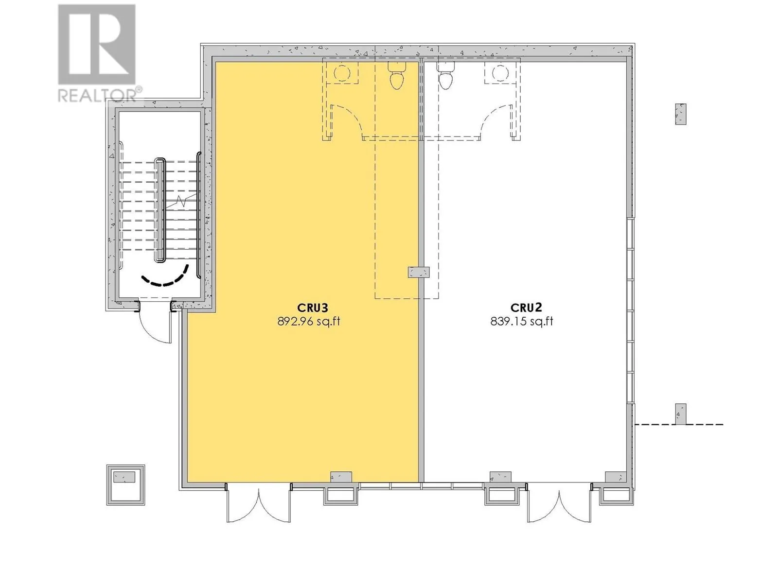
320 Tranquille Road Unit# Cru3, Kamloops, British Columbia V2B 3G9

Listed for:
$22
0 beds
0 baths
Listed 77 days ago
Other for rent: 320 Tranquille Road Unit# Cru3, Kamloops, British Columbia V2B 3G9

View all 4 photos

Learn more about this property
Listing provided by:
Brendan Shaw Real Estate Ltd.
MLS® number:
178768
Agent:
Brendan Shaw
*Indicates required field
Name is required
Email is required
Please enter a valid phone number (e.g., 416-111-1111).

About

Proposed CRU3 at Innova on Tranquille Road is a brand new commercial retail/office space in North Kamloops. Expected occupancy is late 2026 or early 2027 for tenant improvements. This main floor shell boasts a convenient, front entrance off Tranquille Road with high exposure to foot and vehicle traffic. CNS Zoning - ideal for retail, office, assembly, personal services, trade or technology centre, education training. Off street parking available in attached parkade at additional cost. Innova on Tranquille Road is a brand new mixed use residential and commercial development in close proximity to Bright Eye Brewing, 5 Bean Coffee and on the city bus route. Walking distance to Independent Grocers, Red Beard Cafe, YMCA and city parks. (id:27476)

Property Highlights

MLS® Number
178768
Type
Other
Ownership Type
Leasehold
Land Size
0.78 ac|under 1 acre

Building

Building Type
Other
Amenities
Public Transit, Shopping
Fireplace Present
No
Basement Type
Basement Features
Building Heating Type
No heat
Heating Fuel
Building Cooling Type

Utilities

Water
Municipal water
Utility Sewer
Municipal sewage system

Location

Street Spotlight - For lease