2138 Linfield Drive, Kamloops, British Columbia V1S 0G3

Listed for:
$1,599,900
8 beds
5 baths
Listed 43 days ago
House for rent: 2138 Linfield Drive, Kamloops, British Columbia V1S 0G3

View all 60 photos

Learn more about this property
Listing provided by:
Century 21 Assurance Realty Ltd.
MLS® number:
10354839
Agent:
Kirsten Mason
*Indicates required field
Name is required
Email is required
Please enter a valid phone number (e.g., 416-111-1111).

About

This expansive Aberdeen home offers breathtaking views & the opportunity to create 2 additional suites while still maintaining plenty of space for the primary living area. Step through the front door & be greeted by stunning sightlines through the large picture windows. The main floor features engineered hardwood, a spacious kitchen with stone countertops, an island & a pantry. Adjacent to the kitchen, the dining area flows seamlessly into the living room, with 14-foot ceilings & fireplace. A large, covered deck extends off the dining area. The main level includes 3 bedrooms, 4-piece bathroom & mudroom/laundry area conveniently located off the oversized 21' x 31'6"" garage. The primary suite has a walk-in closet & a luxurious ensuite with double sinks, soaker tub & a custom tile shower. Descending down, you'll find 2 additional bedrooms & another 4-piece bathroom, if suited, would remain part of the main home. A spacious family/games room is also on this floor, with all the rough-ins to easily add a suite, just install the kitchen. There's also a separate bedroom, a 4-piece bathroom & a dedicated laundry space. One more level down, you'll find 2 more bedrooms, a large rec room with rough-in plumbing for a wet bar, 4-piece bathroom & laundry closet. Each floor has its own separate entrance, 10-foot ceilings & a covered patio. One of the potential suites could be legal (buyers should verify with the City of Kamloops. (id:27476)

Property Highlights

MLS® Number
10354839
Type
Single Family
Ownership Type
Freehold
Land Size
0.15 ac|under 1 acre
Parking Space Total
6

Building

Building Type
House
Storeys
3.00
Square Footage
4230 sqft
Bathrooms Total
5
Bedrooms Total
8
Amenities
Public Transit, Park, Recreation, Schools
Exterior Finish
Stone
Fireplace Present
Yes
Basement Type
Full
Basement Features
Building Heating Type
Baseboard heaters, Forced air, See remarks
Heating Fuel
Electric
Building Cooling Type
Central air conditioning

Utilities

Water
Municipal water
Utility Sewer
Municipal sewage system

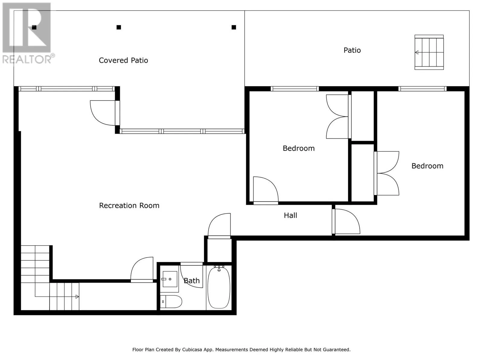
Room Layout

Utility room
Basement
10'2'' x 12'4''
Bedroom
Basement
11'2'' x 13'2''
Bedroom
Basement
11'2'' x 13'2''
Family room
Basement
13'6'' x 18'8''
Games room
Basement
14'6'' x 19'6''
Bedroom
Basement
12'4'' x 13'
4pc Bathroom
Basement
Measurements not available
4pc Bathroom
Basement
Measurements not available
Recreation room
Lower level
24'6'' x 17'11''
Bedroom
Lower level
10' x 14'10''
4pc Bathroom
Lower level
Measurements not available
Laundry room
Lower level
3'4'' x 3'4''
Bedroom
Lower level
9'8'' x 11'4''
Bedroom
Main level
10' x 13'
Primary Bedroom
Main level
13' x 14'8''
Great room
Main level
14'6'' x 18'8''
Dining room
Main level
10' x 13'
Kitchen
Main level
14'6'' x 11'
Bedroom
Main level
11'8'' x 9'8''
Mud room
Main level
9' x 8'
Foyer
Main level
7'6'' x 7'
5pc Ensuite bath
Main level
Measurements not available
4pc Bathroom
Main level
Measurements not available

Location