674 Gordonel Road, Kamloops, British Columbia V2B 6P4

Listed for:
$179,900
0 beds
0 baths
Listed 49 days ago
Other for rent: 674 Gordonel Road, Kamloops, British Columbia V2B 6P4

View all 7 photos

Learn more about this property
Listing provided by:
Stonehaus Realty Corp
MLS® number:
10359910
Agent:
Quinn Pache
*Indicates required field
Name is required
Email is required
Please enter a valid phone number (e.g., 416-111-1111).

About

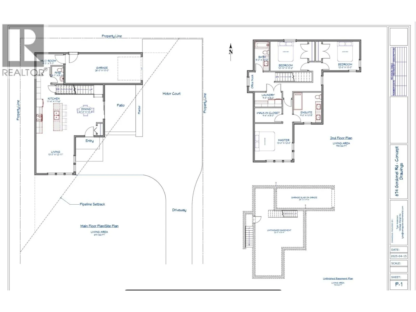
Build in one of the best communities in Kamloops! This flat, affordable, ready-to-go building lot on a quiet street in highly sought-after Westsyde offers the perfect opportunity to create your dream home. Situated just minutes from shopping, schools, parks, and river trails, you’ll love the convenience and family-oriented lifestyle this neighborhood provides. Adding even more value, this property includes a credit for development cost charges—offering additional savings of over $10,000. With endless recreational opportunities nearby and a strong community atmosphere, this is the ideal location for your next build. Photo renderings shown are concept designs that fit within the buildable area. Contact the listing agent for more details. GST applicable. (id:27476)

Property Highlights

MLS® Number
10359910
Type
Vacant Land
Ownership Type
Freehold
Land Size
0.19 ac|under 1 acre

Building

Building Type
Other
Amenities
Golf Nearby, Recreation, Shopping
Fireplace Present
No
Basement Type
Basement Features
Building Heating Type
Heating Fuel
Building Cooling Type

Utilities

Water
Municipal water
Utility Sewer
Municipal sewage system

Location