2068 Tantalus Court, Kamloops, British Columbia V2E 2L4

Listed for:
$1,198,000
4 beds
4 baths
Listed 59 days ago
House for rent: 2068 Tantalus Court, Kamloops, British Columbia V2E 2L4

View all 66 photos

Learn more about this property
Listing provided by:
RE/MAX Real Estate (Kamloops)
MLS® number:
10362083
Agent:
Brent Miller
*Indicates required field
Name is required
Email is required
Please enter a valid phone number (e.g., 416-111-1111).

About

Exceptional best describes this light filled 4 bedroom + family home, where sunken rooms within the open floor plan create a spacious yet defined layout. A double height entrance draws you in & offers seamless flow to the multitude of living areas this home offers. Welcome guests to the living room, divided from the formal dining room by a double-sided glass fireplace, or walk down the hall to the family eating area, set in a glass alcove w/ views over the pool & backyard. The kitchen is conveniently located next to both the formal dining & family eating areas, w/ a seamless flow to the cozy family room. Sliding doors offer easy access to a covered pergola for outdoor dining & gatherings, as well as to the pool, sauna & back lawn. A dedicated office, 2-pce bath & a laundry room w/ access to the sauna, side patio & pool/backyard complete the main level. A Maple staircase leads you up to the master suite (w/ bespoke ensuite & w/i closet), + 3 bedrooms & a family Bath w/ double sinks & oversized tile shower. The spacious basement incl. a family/games room feat. custom shelving for books, games, TV & an electric fireplace. You'll find a modern 3-pce bath, home gym, bonus room, ample storage & backyard access complete the basement. Meticulously upgraded to the highest standards throughout, this home truly offers the finest in craftsmanship & attention to detail. A feature sheet and list of upgrades are available—there’s simply too much to capture in words. All meas. approx. (id:27476)

Property Highlights

MLS® Number
10362083
Type
Single Family
Ownership Type
Freehold
Land Size
0.15 ac|under 1 acre
Parking Space Total
3

Building

Building Type
House
Storeys
3.00
Square Footage
3626 sqft
Bathrooms Total
4
Bedrooms Total
4
Fireplace Present
Yes
Basement Type
Basement Features
Building Heating Type
Heat Pump
Heating Fuel
Building Cooling Type
Heat Pump

Utilities

Water
Municipal water
Utility Sewer
Municipal sewage system

Room Layout

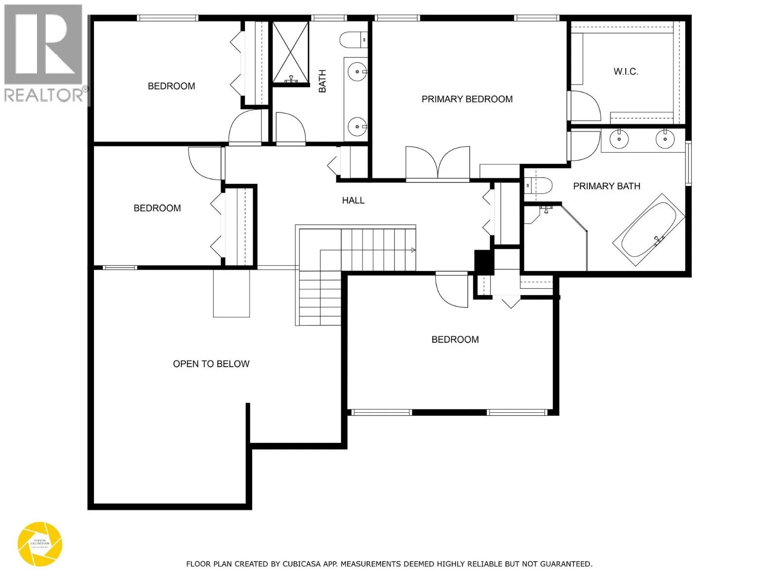
4pc Bathroom
Second level
Measurements not available
Bedroom
Second level
14'3'' x 9'11''
Bedroom
Second level
10'5'' x 9'9''
Bedroom
Second level
16'9'' x 10'10''
5pc Ensuite bath
Second level
Measurements not available
Primary Bedroom
Second level
15'11'' x 12'10''
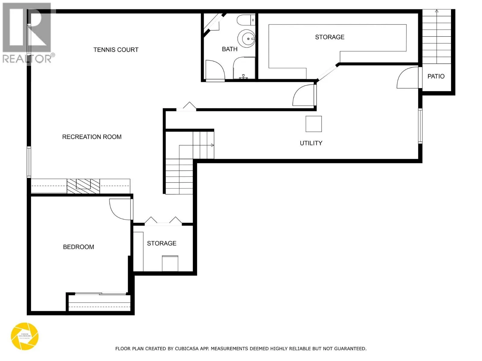
Storage
Basement
20' x 8'3''
Utility room
Basement
31'6'' x 11'9''
Storage
Basement
7'5'' x 5'9''
3pc Bathroom
Basement
Measurements not available
Other
Basement
12'5'' x 14'4''
Games room
Basement
21'3'' x 8'7''
Recreation room
Basement
35'4'' x 17'11''
Living room
Main level
12'5'' x 15'3''
Laundry room
Main level
8'8'' x 9'10''
Office
Main level
11'11'' x 12'10''
2pc Bathroom
Main level
Measurements not available
Kitchen
Main level
9' x 15'7''
Family room
Main level
15'2'' x 12'10''
Dining room
Main level
12'5'' x 12'9''
Kitchen
Main level
11'11'' x 11'1''

Location