742 Athabasca Street E, Kamloops, British Columbia V2H 1C9

Listed for:
$1,100,000
0 beds
0 baths
Listed 152 days ago
Other for rent: 742 Athabasca Street E, Kamloops, British Columbia V2H 1C9

View all 33 photos

About

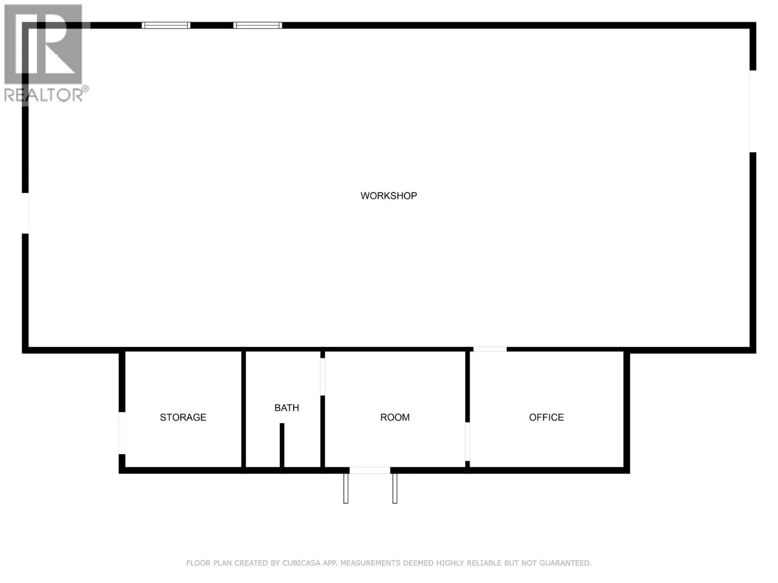
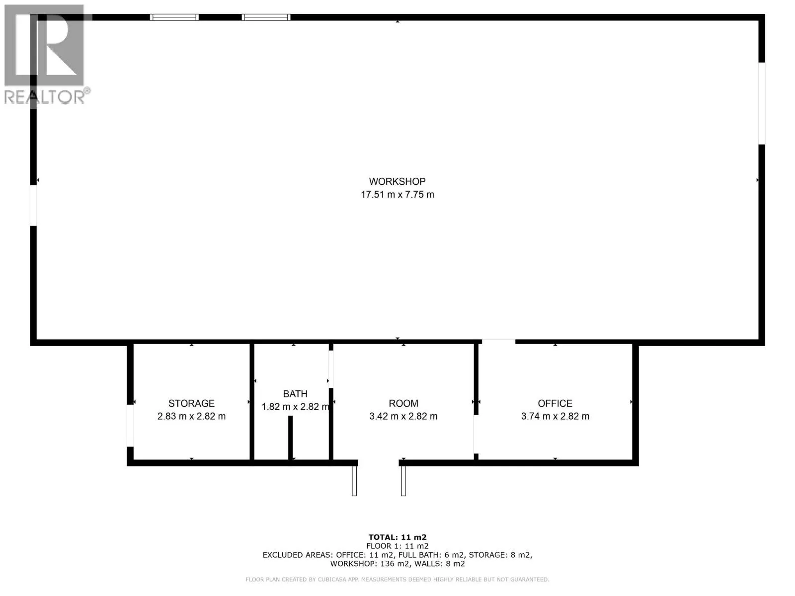
Welcome to Mount Paul Industrial Park! Situated on just over 1 acre, 742 E Athabasca Street presents an excellent opportunity for industrial use. The 60’ x 40’ shop offers approximately 2,400 sq. ft. of workspace, including 380 sq. ft. of office area. Features include 200-amp service, a heated storage room, fluorescent lighting, halide hi-bays, and a 3-piece bathroom with shower. The main office building provides an additional 924 sq. ft., ideal for administrative operations and client care. It includes a reception area, three offices, a 2-piece bathroom, and laundry hookups, ensuring a professional and functional environment for day-to-day business needs. Ample onsite parking accommodates trucks, vehicles, and heavy equipment, while the property’s layout allows for efficient offloading and maneuvering of transport rigs, offering flexibility for oversized equipment and materials. Located in a busy industrial hub, this property provides easy access to major transportation routes, highways, and supply chain networks, with strong connectivity to neighbouring businesses and beyond. In short, this is more than just a property, it’s a fully equipped, versatile industrial space ready to support and grow your business. Call today for more details! (id:27476)

Property Highlights

MLS® Number
10363171
Type
Industrial
Ownership Type
Leasehold/Leased Land
Land Size
1.08 ac|1 - 5 acres

Building

Building Type
Other
Square Footage
2400 sqft
Fireplace Present
No
Basement Type
Basement Features
Building Heating Type
Baseboard heaters, See remarks
Heating Fuel
Electric, Other
Building Cooling Type
Central air conditioning

Utilities

Water
Community Water User's Utility
Utility Sewer
Septic tank

Location

Learn more about this property
Listing provided by:
Royal LePage Westwin Realty
MLS® number:
10363171
Agent:
David Lawrence
*Indicates required field
Name is required
Email is required
Please enter a valid phone number (e.g., 416-111-1111).