8548 Yellowhead Highway, Kamloops, British Columbia V0E 1Z2

Listed for:
$1,185,000
4 beds
4 baths
Listed 105 days ago
House for rent: 8548 Yellowhead Highway, Kamloops, British Columbia V0E 1Z2

View all 88 photos

Learn more about this property
Listing provided by:
RE/MAX Real Estate (Kamloops)
MLS® number:
10363132
Agent:
Brent Miller
*Indicates required field
Name is required
Email is required
Please enter a valid phone number (e.g., 416-111-1111).

About

Enjoy Panoramic Views of the Valley & River, Privacy, the opportunities 20 Acres provide, all within 30 min. of Kamloops! This Custom Home has seen recent updates to the kitchen, with new cabinetry, quartz countertops, double ovens, induction cooktop, huge pantry, custom Island, slate flooring & more. The main floor also boasts a huge living room with oversized windows & a Rock Fireplace, a bright den (which can be hidden behind a folding walnut wall & has sliding doors to the back yard), a recently renovated mudroom, laundry room & bathroom. This home offers space galore & is made for families, gatherings & entertaining! Upstairs you will find 3 generous bedrooms, 2 sharing a 4 pce bathroom & the primary with an ensuite & private deck. The lower floor offers a large family/games room, space for a home office or gym, a 4th bedroom & a 4 pce. bath. The home is serviced by 2 furnaces, 2 AC units & hotwater on demand. Outside is a detached shop w/ 10 ft ceilings & a garden shed combined with a chicken coop. The property is set up for horses with a paddock & shelter, tack shed, a coverall for hay storage + an alfalfa/grass hayfield producing 1000 square bales in a good year. Plenty of water here, with a well producing approx. 30-35 GPM for domestic use plus Irrigation from a community water system. There is so much to appreciate here * This property truly must be seen * pls. request feature sheet for more detail & see floor plans for home's complete layout. All meas. approx. (id:27476)

Property Highlights

MLS® Number
10363132
Type
Single Family
Ownership Type
Freehold
Land Size
20.29 ac|10 - 50 acres
Parking Space Total
4

Building

Building Type
House
Storeys
3.00
Square Footage
4735 sqft
Bathrooms Total
4
Bedrooms Total
4
Amenities
Recreation
Exterior Finish
Cedar Siding
Fireplace Present
Yes
Basement Type
Partial
Basement Features
Building Heating Type
Forced air, See remarks
Heating Fuel
Building Cooling Type
Central air conditioning

Utilities

Water
Dug Well

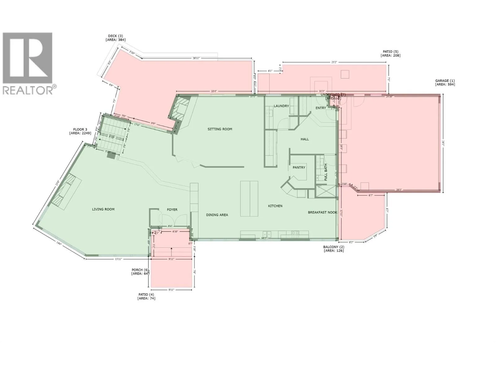
Room Layout

4pc Ensuite bath
Second level
Measurements not available
4pc Bathroom
Second level
Measurements not available
Primary Bedroom
Second level
15'0'' x 26'6''
Bedroom
Second level
17'10'' x 13'9''
Bedroom
Second level
11'4'' x 14'4''
4pc Bathroom
Lower level
Measurements not available
Family room
Lower level
32'8'' x 17'4''
Other
Lower level
13'7'' x 15'7''
Bedroom
Lower level
10'9'' x 15'8''
3pc Bathroom
Main level
Measurements not available
Foyer
Main level
10'0'' x 7'4''
Living room
Main level
29'5'' x 31'11''
Family room
Main level
22'1'' x 17'2''
Dining room
Main level
12'3'' x 17'5''
Kitchen
Main level
16'8'' x 17'9''
Dining nook
Main level
6'10'' x 11'8''
Pantry
Main level
6'6'' x 8'1''
Laundry room
Main level
8'0'' x 8'1''
Foyer
Main level
9'10'' x 8'5''

Location