2275 Bonnie Place, Kamloops, British Columbia V2B 4Y8

Listed for:
$674,900
5 beds
2 baths
Listed 91 days ago
House for rent: 2275 Bonnie Place, Kamloops, British Columbia V2B 4Y8

View all 63 photos

Learn more about this property
Listing provided by:
RE/MAX Real Estate (Kamloops)
MLS® number:
10346654
Agent:
Tyrel Hough
*Indicates required field
Name is required
Email is required
Please enter a valid phone number (e.g., 416-111-1111).

About

Well appointed and beautifully updated 5 bed, 2 bath home on a large, flat corner lot in one of Kamloops’ most desirable family neighbourhoods. Close to schools, parks, and amenities, this property offers everyday comfort with future potential, including possible subdivision. The bright, open-concept main floor features a fully renovated kitchen with granite island, quality appliances, and stylish finishes. New laminate flooring, paint, baseboards, hardware, pot lighting, and mostly updated windows create a fresh, inviting feel. The updated main bath offers a jetted tub and subway tile. Large bonus room accessed from the patio from the kitchen could be perfect for a play room or extra storage. Downstairs is fully finished with two large bedrooms, an extended rec room (with well-window potential), and a deluxe laundry room. With newer drywall and flooring, the basement could easily convert to a 2 bedroom suite for extra income. 1 room offers flex/studio space with water and plumbing for home biz possibilities. Outside, enjoy a private, fully fenced and irrigated yard perfect for kids, pets, or future additions like a shop or pool. Extra parking (including RV), a storage shed, and a roof approx. 10 years old complete this exceptional property. A rare chance to secure a home that offers room to grow, space to create, and the flexibility to shape it around your family’s next chapter. All measurements approximate. (id:27476)

Property Highlights

MLS® Number
10346654
Type
Single Family
Ownership Type
Freehold
Land Size
0.17 ac|under 1 acre

Building

Building Type
House
Storeys
1.00
Square Footage
2046 sqft
Bathrooms Total
2
Bedrooms Total
5
Fireplace Present
No
Basement Type
Basement Features
Building Heating Type
Forced air
Heating Fuel
Building Cooling Type
Central air conditioning

Utilities

Water
Municipal water
Utility Sewer
Municipal sewage system

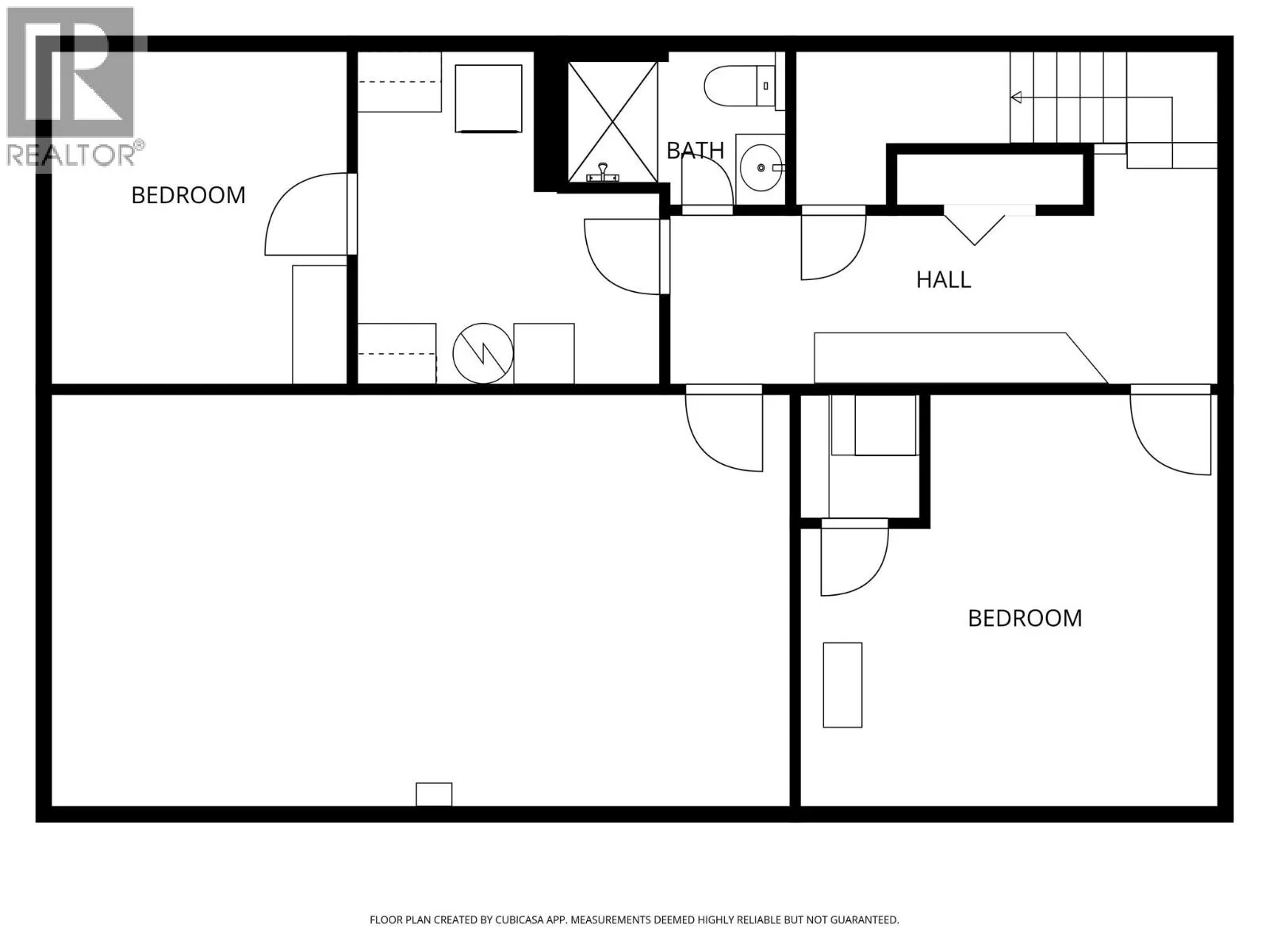
Room Layout

Bedroom
Basement
10'10'' x 9'8''
Laundry room
Basement
10'10'' x 9'10''
Recreation room
Basement
13'5'' x 24'1''
Bedroom
Basement
13'5'' x 13'7''
3pc Bathroom
Basement
5'0'' x 7'1''
4pc Bathroom
Main level
8'8'' x 5'3''
Bedroom
Main level
8'3'' x 9'0''
Bedroom
Main level
11'11'' x 8'10''
Primary Bedroom
Main level
12'4'' x 10'10''
Dining room
Main level
12'8'' x 9'6''
Living room
Main level
11'11'' x 19'9''
Kitchen
Main level
12'8'' x 12'11''

Location