7805 Dallas Drive Unit# 3, Kamloops, British Columbia V2C 0E5

Listed for:
$424,900
2 beds
2 baths
Listed 45 days ago
Manufactured Home for rent: 7805 Dallas Drive Unit# 3, Kamloops, British Columbia V2C 0E5

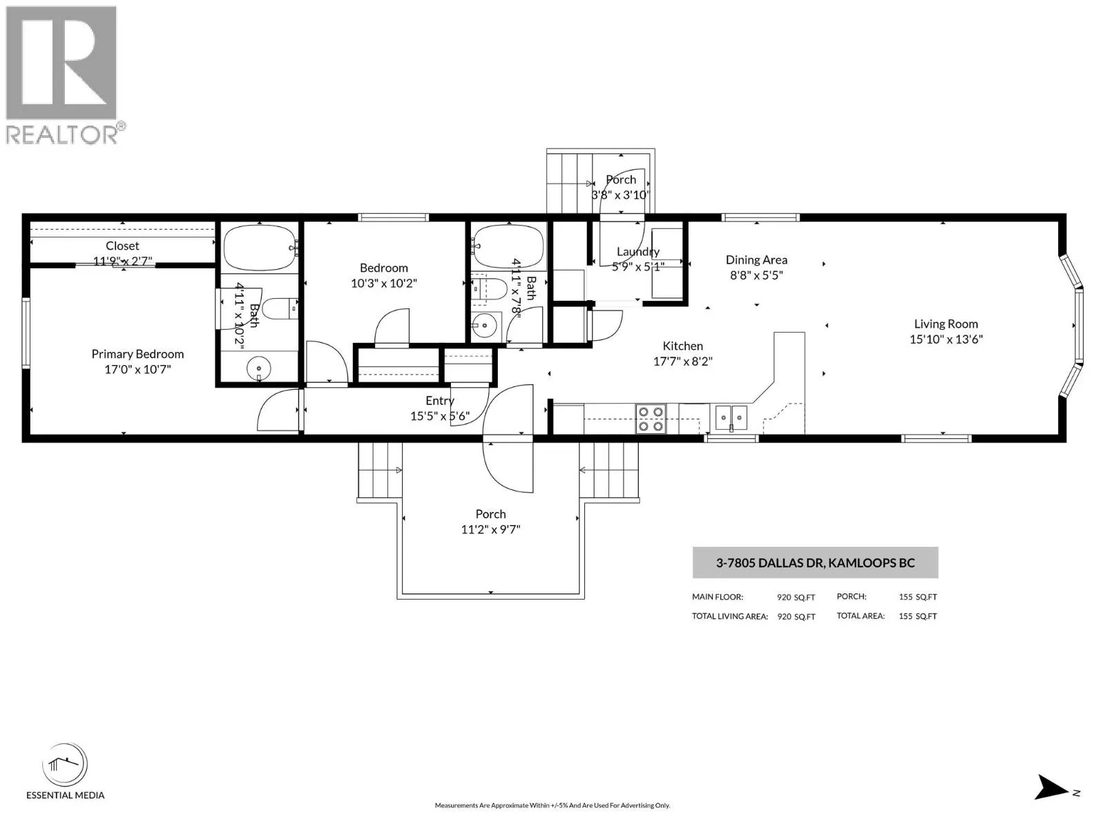
View all 42 photos

Learn more about this property
Listing provided by:
Century 21 Assurance Realty Ltd.
MLS® number:
10364563
Agent:
Kevin Bamsey
*Indicates required field
Name is required
Email is required
Please enter a valid phone number (e.g., 416-111-1111).

About

Great unit in sought-after Kokanee Court bareland strata. This fantastic home built in 2011 sits on one of the largest lots in the park. Step inside and you will find a large kitchen with plenty of prep space + new microwave & dishwasher. The kitchen opens to the living and dining areas making it great for entertaining. You'll love taking in the mountain views from the living room as this unit has the living room on the view side. Laundry is located just off the kitchen where there is also a second entrance/exit to the yard. There are two bedrooms including a large primary suite with a 4-piece ensuite bathroom. The spare bedroom is a great place for guests or for an office and there is also an additional 4pc main bathroom for guests. Outside the yard is xeroscaped, fenced, and low-maintenance. There is plenty of room for all your outdoor projects if desired or leave the landscaping as is for easy care. Also outside is a great covered deck for enjoying summer evenings or barbecues. Fantastic complex that is very well-kept with a low bareland strata fee of $130.00 per month. This complex is across the street from Co-op gas station and convenience store for all your essential needs and is just a quick 5-minute drive to the grocery store at Dallas Town Centre. Don’t miss this great home that allows for low-cost living. Book your showing today. (id:27476)

Property Highlights

MLS® Number
10364563
Type
Single Family
Community Name
KOKANEE COURT
Maintenance Fee
130.00
Ownership Type
Strata
Land Size
0.11 ac|under 1 acre

Building

Building Type
Manufactured Home
Storeys
1.00
Square Footage
924 sqft
Bathrooms Total
2
Bedrooms Total
2
Fireplace Present
No
Basement Type
Basement Features
Building Heating Type
Forced air
Heating Fuel
Building Cooling Type
Central air conditioning

Utilities

Water
Municipal water
Utility Sewer
Municipal sewage system

Room Layout

Bedroom
Main level
7'4'' x 10'5''
4pc Ensuite bath
Main level
Measurements not available
4pc Bathroom
Main level
Measurements not available
Primary Bedroom
Main level
11'5'' x 10'10''
Laundry room
Main level
4'11'' x 5'7''
Kitchen
Main level
7'8'' x 17'4''
Dining room
Main level
5'6'' x 7'6''
Living room
Main level
16'10'' x 13'

Location

Street Spotlight - For sale