1195 14th Street Unit# 43, Kamloops, British Columbia V2B 8S1

Listed for:
$579,000
2 beds
3 baths
Listed 168 days ago
Row / Townhouse for rent: 1195 14th Street Unit# 43, Kamloops, British Columbia V2B 8S1

View all 50 photos

About

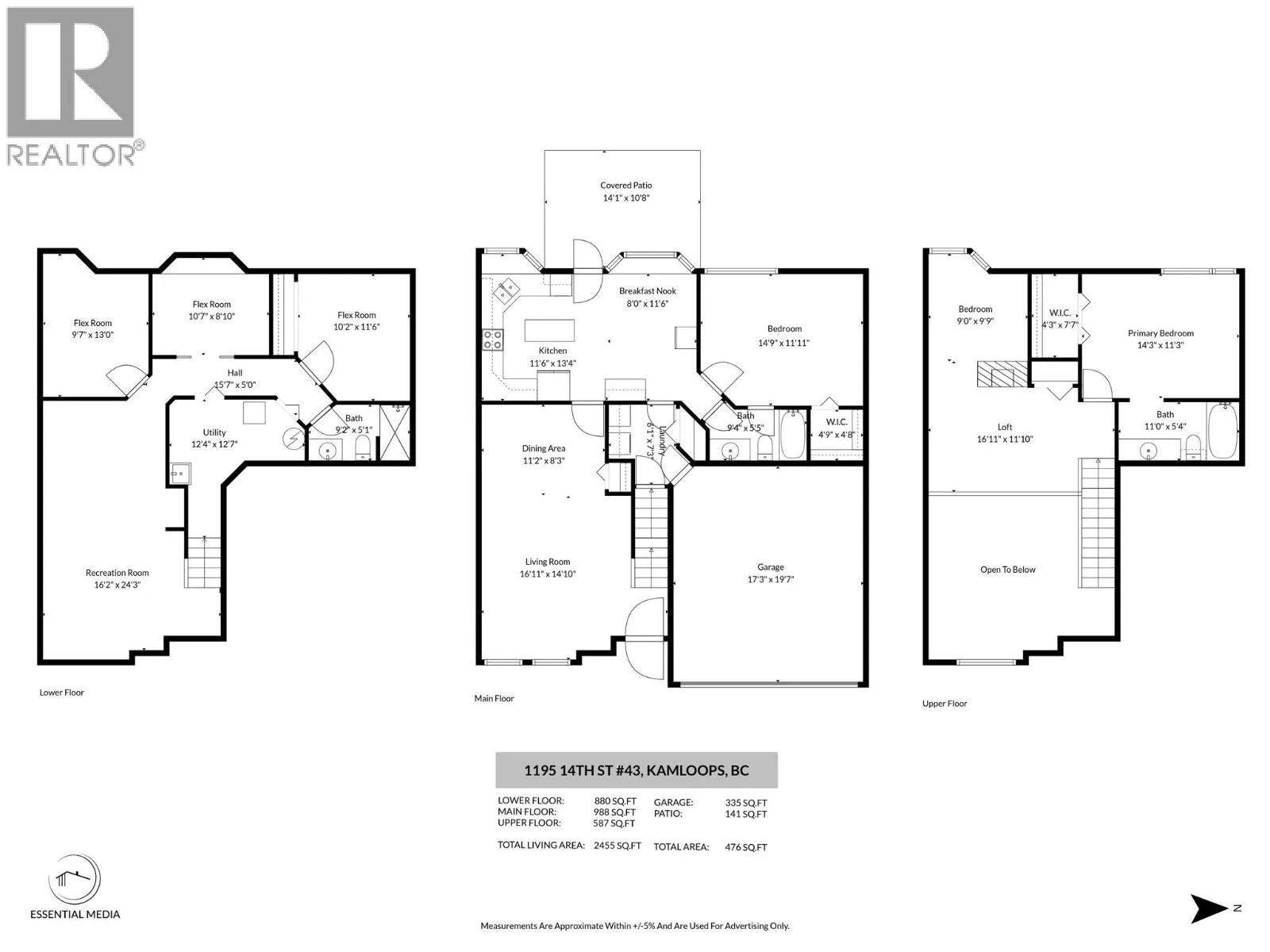
Welcome to Orchards Village, a quiet and well-maintained community known for its friendly atmosphere and low strata fees! This beautifully kept 2,500+ sq. ft. bungalow offers bright, open-concept living with vaulted ceilings, a spacious kitchen and dining area, and access to a covered patio perfect for relaxing. The main floor features a large bedroom with a walk-in closet, a 4-pc bath, laundry, and a double garage. Upstairs offers a versatile loft area and a second bedroom with an ensuite, while the fully finished basement provides a family room, office, hobby room, den/guest room, and a newly renovated 3-pc bathroom. Perfect for families or couples looking to downsize without compromising on space, this home offers comfort, flexibility, and plenty of room for visiting loved ones. With low bare-land strata fees (~$145/month) and a peaceful location near shopping, parks, and transit, this property truly has it all! (id:27476)

Property Highlights

MLS® Number
10365891
Type
Single Family
Community Name
Orchard Village
Maintenance Fee
145.00
Ownership Type
Bare Land Condo/Strata
Land Size
0.05 ac|under 1 acre
Parking Space Total
2

Building

Building Type
Row / Townhouse
Storeys
3.00
Square Footage
2515 sqft
Bathrooms Total
3
Bedrooms Total
2
Amenities
Airport, Recreation, Shopping
Exterior Finish
Vinyl siding
Fireplace Present
No
Basement Type
Full
Basement Features
Building Heating Type
Forced air, See remarks
Heating Fuel
Building Cooling Type
Central air conditioning

Utilities

Water
Municipal water
Utility Sewer
Municipal sewage system

Room Layout

Family room
Second level
21'10'' x 16'10''
Primary Bedroom
Second level
14'5'' x 11'7''
4pc Ensuite bath
Second level
10'10'' x 4'10''
Other
Basement
11'2'' x 9'6''
Laundry room
Basement
8'0'' x 6'0''
Den
Basement
10'7'' x 6'10''
Other
Basement
11'2'' x 9'6''
Recreation room
Basement
23'4'' x 11'2''
3pc Bathroom
Basement
9' x 4'10''
Bedroom
Main level
14'5'' x 11'10''
Dining nook
Main level
10'4'' x 15'5''
Dining room
Main level
11'1'' x 8'4''
Kitchen
Main level
11'6'' x 13'5''
Living room
Main level
15'0'' x 13'0''
4pc Bathroom
Main level
8'9'' x 4'11''

Location

Learn more about this property
Listing provided by:
eXp Realty (Kamloops)
MLS® number:
10365891
Agent:
Oluwole Oyeleke
*Indicates required field
Name is required
Email is required
Please enter a valid phone number (e.g., 416-111-1111).

Street Spotlight - For sale