2120 Lupin Court, Kamloops, British Columbia V2E 0E2

Listed for:
$399,900
0 beds
0 baths
Listed 134 days ago
Other for rent: 2120 Lupin Court, Kamloops, British Columbia V2E 0E2

View all 12 photos

About

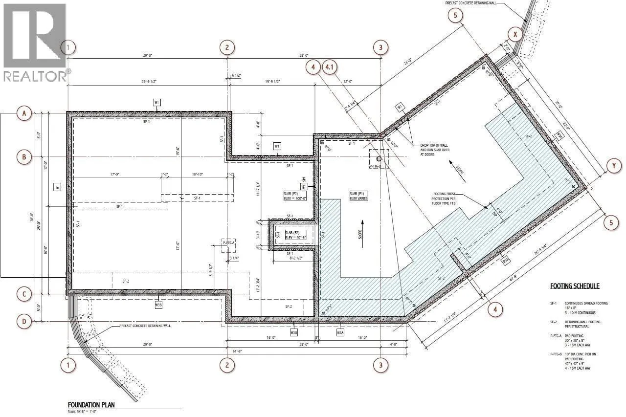
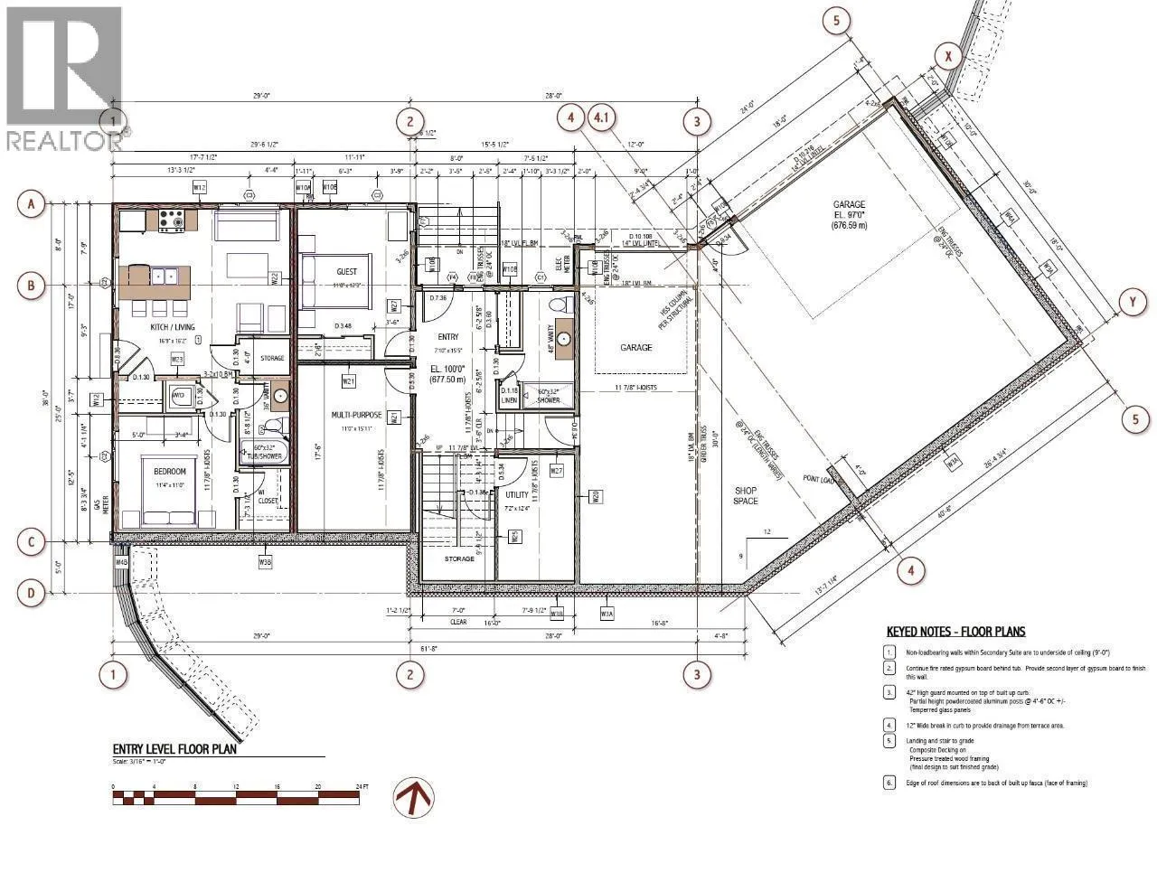
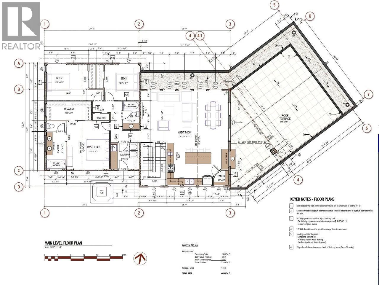
Prime building lot in sought-after Juniper Ridge. This 0.43-acre cul-de-sac property comes with professionally designed architectural plans and R2 zoning, offering excellent flexibility. Build your custom home plus a large coach house (approx. 2,000 sq ft) at the rear or explore potential for up to four units (subject to city approval). Located in a newer, family-friendly neighbourhood with parks, trails, bike ranch, and nature areas nearby, and only about 10 minutes to city amenities. A rare opportunity for homeowners, builders, or investors in one of Kamloops’ most desirable communities. (id:27476)

Property Highlights

MLS® Number
10369534
Type
Vacant Land
Ownership Type
Freehold
Land Size
0.42 ac|under 1 acre

Building

Building Type
Other
Amenities
Recreation
Fireplace Present
No
Basement Type
Basement Features
Building Heating Type
Heating Fuel
Building Cooling Type

Utilities

Water
Municipal water
Utility Sewer
Municipal sewage system

Location

Learn more about this property
Listing provided by:
Stonehaus Realty Corp
MLS® number:
10369534
Agent:
Ben Hack
*Indicates required field
Name is required
Email is required
Please enter a valid phone number (e.g., 416-111-1111).