704 Mccurrach Road, Kamloops, British Columbia V2B 0A3

Listed for:
$999,900
4 beds
4 baths
Listed 36 days ago
House for rent: 704 Mccurrach Road, Kamloops, British Columbia V2B 0A3

View all 49 photos

Learn more about this property
Listing provided by:
eXp Realty (Kamloops)
MLS® number:
10369948
Agent:
Terry Lynds
*Indicates required field
Name is required
Email is required
Please enter a valid phone number (e.g., 416-111-1111).

About

Exceptional family home on a large corner lot in one of Kamloops’ most sought-after neighborhoods - steps from parks, schools, shopping, transit, and the rec center. Featuring 9’ ceilings, abundant natural light, and an open-concept layout, the main floor offers a spacious kitchen with island and pantry, awesome dining and living room space, plus full views of the private, fully fenced, park-like backyard. 2 cozy patio areas to enjoy depending on the time of day along with above ground pool. Upstairs provides 3 large bedrooms, a versatile family/4th bedroom, and a luxurious primary suite with Jacuzzi, shower, and custom walk-in. The bright basement has a 1-bedroom + den suite with separate entrance (currently tenanted), laundry, in-floor heating, and plumbing to the den. Polished concrete floors with radiant heat on all 3 levels—including the oversized garage with 9’ doors, bump-out, and heated 15x16 bonus room (shop/gym) Extras: stamped concrete driveway, RV parking with hookups, 200-amp service, newer heat pump, central vac, tasteful millwork, wood blinds, underground sprinklers and mature landscaping. This home is great for families and entertaining. The custom features are abundant and will impress from the moment you walk through it. Turn-key, move-in ready and quick possession possible. (id:27476)

Property Highlights

MLS® Number
10369948
Type
Single Family
Ownership Type
Freehold
Land Size
0.27 ac|under 1 acre
Parking Space Total
2

Building

Building Type
House
Storeys
3.00
Square Footage
3925 sqft
Bathrooms Total
4
Bedrooms Total
4
Amenities
Golf Nearby, Recreation, Shopping
Exterior Finish
Vinyl siding
Fireplace Present
No
Basement Type
Full
Basement Features
Building Heating Type
Heating Fuel
Electric
Building Cooling Type
Central air conditioning, Heat Pump

Utilities

Water
Municipal water
Utility Sewer
Municipal sewage system

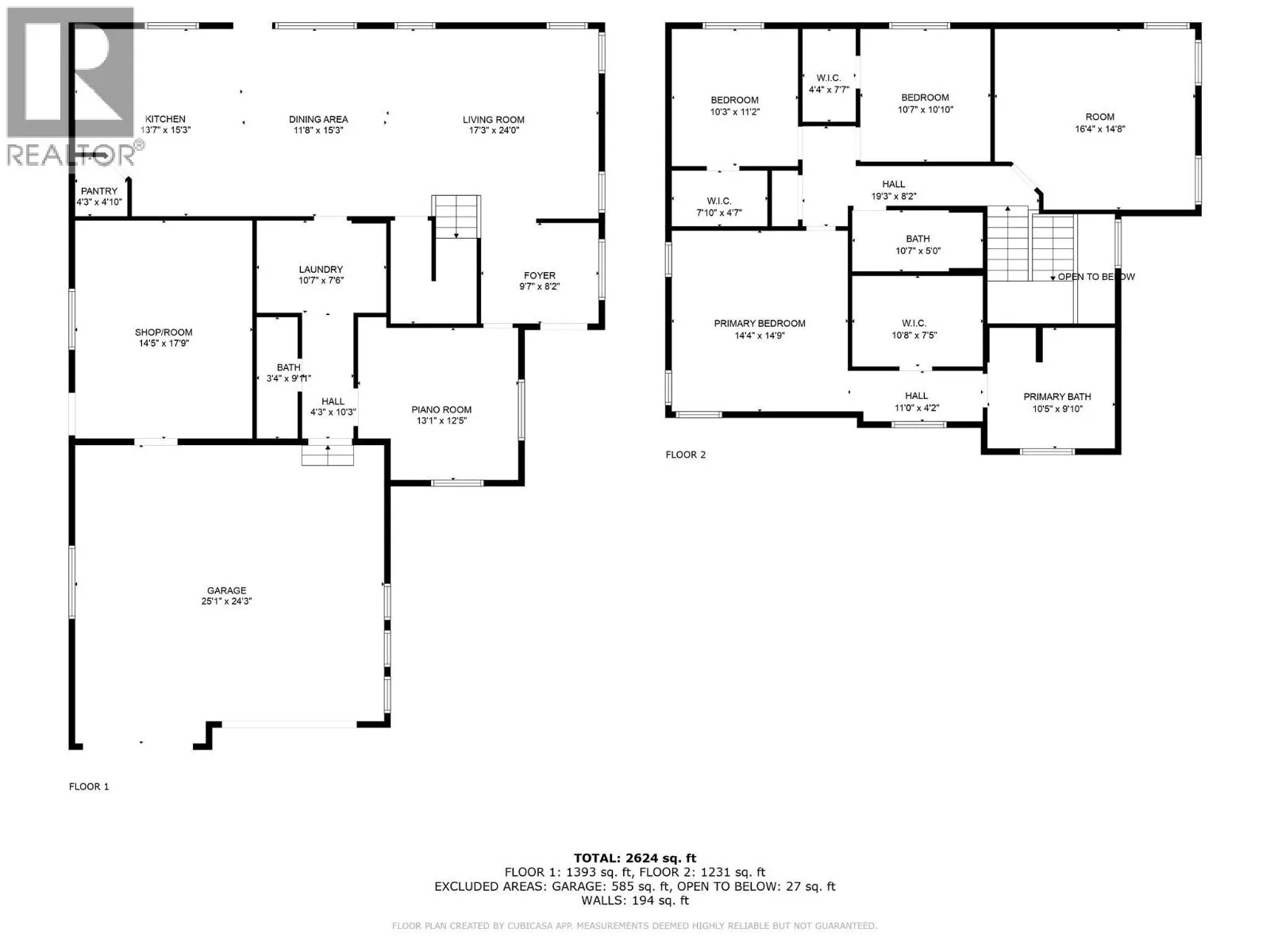
Room Layout

Family room
Second level
16'4'' x 14'8''
Bedroom
Second level
10'7'' x 10'10''
Bedroom
Second level
10'3'' x 11'2''
Primary Bedroom
Second level
14'4'' x 14'9''
4pc Ensuite bath
Second level
Measurements not available
4pc Bathroom
Second level
Measurements not available
Laundry room
Basement
8'5'' x 8'4''
Dining room
Basement
6'9'' x 13'1''
Bedroom
Basement
10'9'' x 11'7''
Living room
Basement
14'3'' x 15'3''
Kitchen
Basement
7'9'' x 13'2''
3pc Bathroom
Basement
Measurements not available
Other
Main level
13'1'' x 12'5''
Foyer
Main level
9'7'' x 8'2''
Workshop
Main level
14'5'' x 17'9''
Laundry room
Main level
10'7'' x 7'6''
Living room
Main level
17'3'' x 24'
Dining room
Main level
15'3'' x 11'8''
Kitchen
Main level
13'7'' x 15'3''
2pc Bathroom
Main level
Measurements not available

Location