2434 Qu'appelle Boulevard, Kamloops, British Columbia V2E 1T4

Listed for:
$620,000
5 beds
4 baths
Listed 27 days ago
House for rent: 2434 Qu'appelle Boulevard, Kamloops, British Columbia V2E 1T4

View all 50 photos

About

This property is ready for the right person to make it theirs! With 3 bedrooms up, the primary bedroom has a 2 pc ensuite plus another 4 pc bath on the main. Upstairs also features a wood fireplace in the living room, with doors to the deck, and it's own laundry. Downstairs has a hottub and sauna (Seller unsure if in working condition), along with a separate potential living space or extra room for you, including a 2 pc bath and additional 3 pc bath as well. Large 2 car attached garage and good sized driveway can store all your toys. This home is located close to Juniper Elementary, and just up the hill from the dog park, bike park and corner market. Currently tenanted - sufficient notice for showings appreciated. All measurements to be verified by Buyer if important. (id:27476)

Property Highlights

MLS® Number
10373075
Type
Single Family
Ownership Type
Freehold
Land Size
0.18 ac|under 1 acre
Parking Space Total
2

Building

Building Type
House
Storeys
2.00
Square Footage
2558 sqft
Bathrooms Total
4
Bedrooms Total
5
Exterior Finish
Wood
Fireplace Present
Yes
Basement Type
Basement Features
Building Heating Type
Forced air
Heating Fuel
Building Cooling Type

Utilities

Water
Municipal water
Utility Sewer
Municipal sewage system

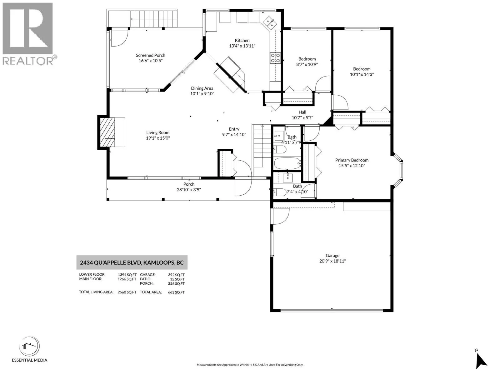
Room Layout

Storage
Lower level
4'11'' x 6'2''
Utility room
Lower level
5'1'' x 4'7''
Laundry room
Lower level
5'4'' x 7'6''
Storage
Lower level
14'7'' x 12'10''
Living room
Main level
19'1'' x 15'
Dining room
Main level
10'1'' x 9'10''
Kitchen
Main level
13'4'' x 13'11''
Bedroom
Main level
8'7'' x 10'9''
Bedroom
Main level
10'1'' x 14'3''
4pc Bathroom
Main level
4'11'' x 7'9''
2pc Bathroom
Main level
7'4'' x 4'10''
Primary Bedroom
Main level
10'1'' x 14'3''
Kitchen
Additional Accommodation
10' x 13'7''
Partial bathroom
Additional Accommodation
5'6'' x 7'1''
Bedroom
Additional Accommodation
15'11'' x 10'4''
Living room
Additional Accommodation
18'6'' x 15'0''
Bedroom
Additional Accommodation
23'8'' x 16'8''
Full bathroom
Additional Accommodation
5'4'' x 7'6''

Location

Learn more about this property
Listing provided by:
Royal LePage Westwin Realty
MLS® number:
10373075
Agent:
Lisa Moonie
*Indicates required field
Name is required
Email is required
Please enter a valid phone number (e.g., 416-111-1111).

Street Spotlight - For sale