1469 Springhill Drive Unit# 24, Kamloops, British Columbia V2E 1H5

Listed for:
$514,900
3 beds
2 baths
Listed 25 days ago
Row / Townhouse for rent: 1469 Springhill Drive Unit# 24, Kamloops, British Columbia V2E 1H5

View all 21 photos

About

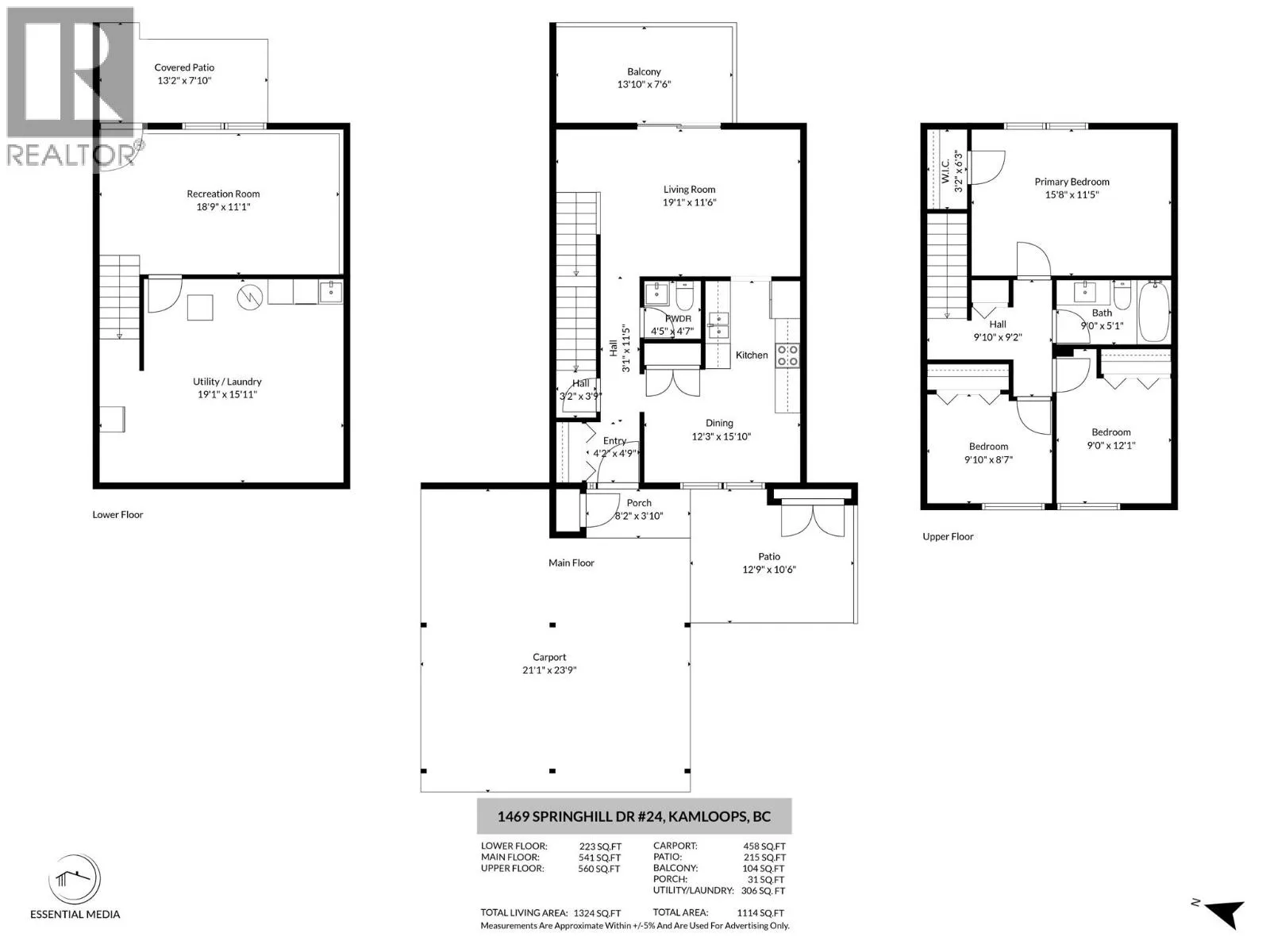
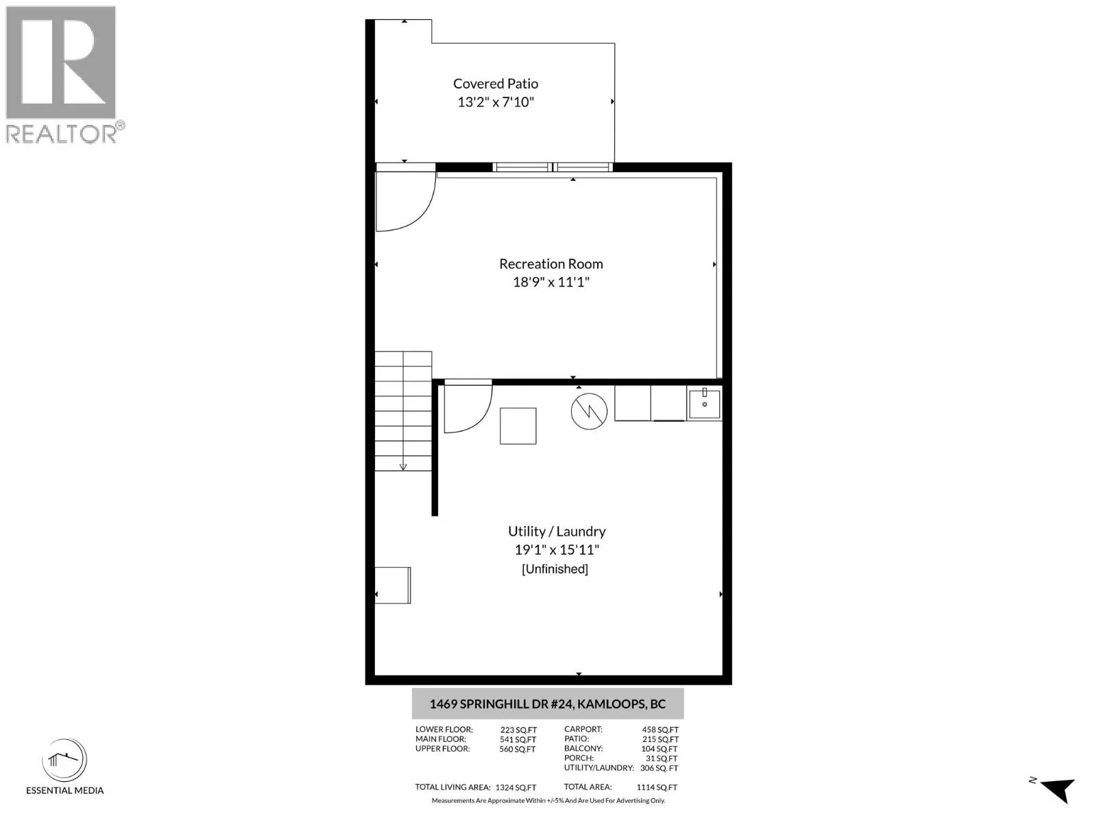
Well-maintained and nicely updated 3-bedroom, 1.5-bath townhouse in a highly central location, close to Thompson Rivers University, bus routes, shopping, schools, and parks. The home has had a $20,000+ refresh throughout with professional paint/baseboards, new carpet, laminate and tile flooring throughout, updated lighting, both bathrooms have been renovated, and newer kitchen cabinets - The home shows clean and modern throughout. Other recent upgrades include a new washer and dryer, along with a newer furnace and hot water tank, offering peace of mind for the next owner. Enjoy outdoor space with a large deck and a lower-level walkout patio, plus access to an outdoor community swimming pool. The layout is practical and family-friendly with all three bedrooms on one level. Pet-friendly complex allows up to two dogs, two cats, or one of each. Move-in ready with quick possession possible. All measurements approximate - verify if important. (id:27476)

Property Highlights

MLS® Number
10373147
Type
Single Family
Community Name
Springhill Gardens
Maintenance Fee
382.00
Ownership Type
Strata
Land Size
under 1 acre
Parking Space Total
2

Building

Building Type
Row / Townhouse
Storeys
3.00
Square Footage
1324 sqft
Bathrooms Total
2
Bedrooms Total
3
Amenities
Public Transit, Park, Schools, Shopping
Exterior Finish
Other
Fireplace Present
No
Basement Type
Full
Basement Features
Building Heating Type
Forced air
Heating Fuel
Building Cooling Type
Central air conditioning

Utilities

Water
Municipal water
Utility Sewer
Municipal sewage system

Room Layout

Primary Bedroom
Second level
11'0'' x 16'0''
Bedroom
Second level
9'0'' x 10'0''
Bedroom
Second level
8'0'' x 10'0''
4pc Bathroom
Second level
9' x 5'1''
Recreation room
Basement
11'0'' x 19'0''
Living room
Main level
16'0'' x 11'0''
Kitchen
Main level
12'3'' x 15'5''
2pc Bathroom
Main level
4'5'' x 4'7''

Location

Learn more about this property
Listing provided by:
Royal LePage Westwin Realty
MLS® number:
10373147
Agent:
Carmen Rice
*Indicates required field
Name is required
Email is required
Please enter a valid phone number (e.g., 416-111-1111).

Street Spotlight - For sale