1720 Westsyde Road Unit# 42, Kamloops, British Columbia V2B 7B7

Listed for:
$125,000
2 beds
1 baths
Listed 19 days ago
Manufactured Home for rent: 1720 Westsyde Road Unit# 42, Kamloops, British Columbia V2B 7B7

View all 36 photos

About

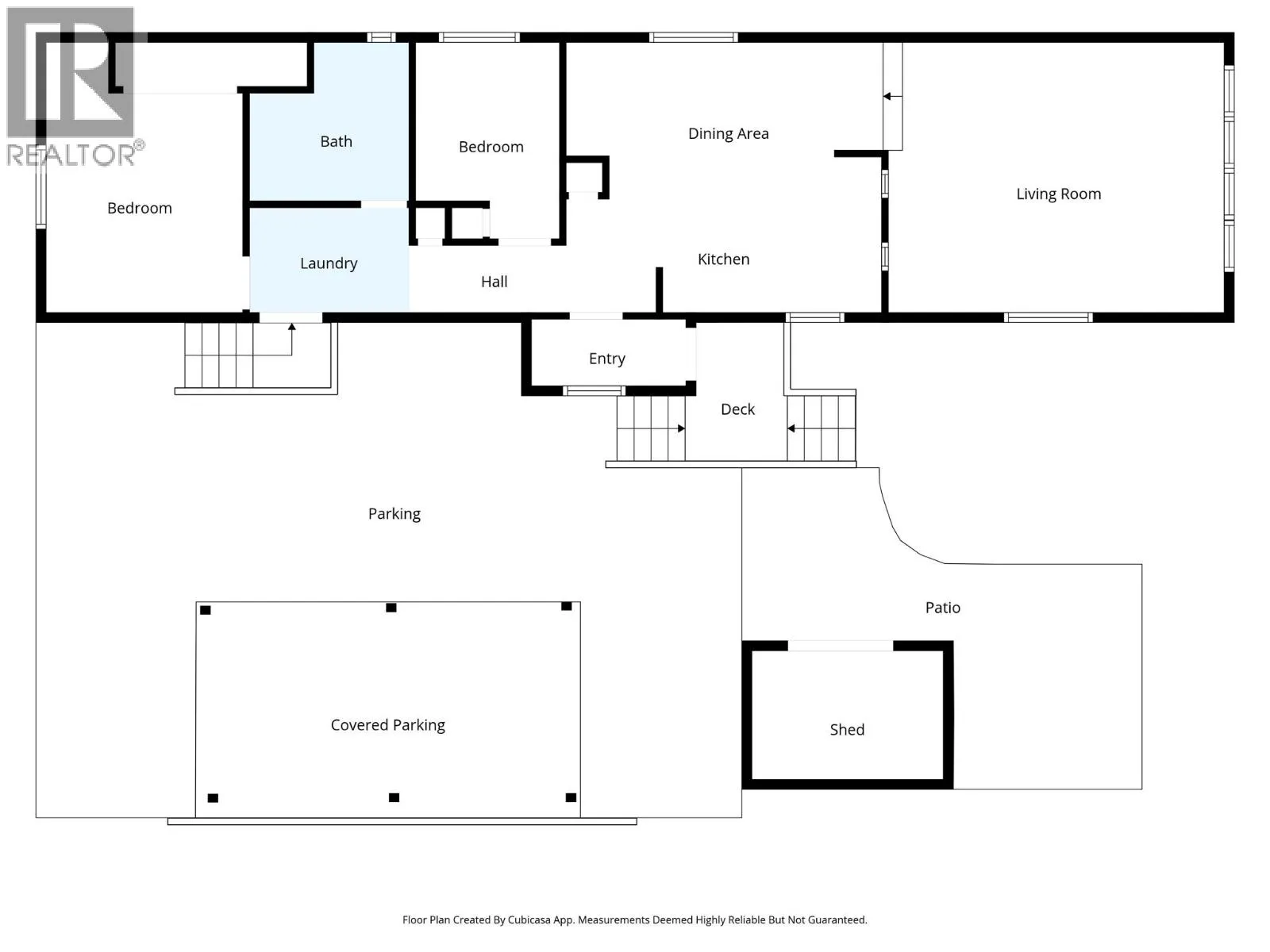
This immaculate 2 bedroom manufactured home in Warren's Trailer Park features a bright and open kitchen with eating area, spacious sunken livingroom, 4 piece bathroom and includes 4 appliances. Newly landscaped with patio, shed and beautiful views of the mountains and city. Immaculate condition and is close to all amenities. A must to view! (id:27476)

Property Highlights

MLS® Number
10373871
Type
Single Family
Maintenance Fee
650.00
Land Size
under 1 acre

Building

Building Type
Manufactured Home
Storeys
1.00
Square Footage
840 sqft
Bathrooms Total
1
Bedrooms Total
2
Fireplace Present
No
Basement Type
Basement Features
Building Heating Type
Forced air, See remarks
Heating Fuel
Building Cooling Type
Central air conditioning

Utilities

Water
Municipal water
Utility Sewer
Municipal sewage system

Room Layout

Laundry room
Main level
7'8'' x 3'0''
4pc Bathroom
Main level
Measurements not available
Primary Bedroom
Main level
12'10'' x 10'3''
Bedroom
Main level
7'8'' x 9'9''
Kitchen
Main level
15'0'' x 13'0''
Living room
Main level
17'6'' x 13'0''

Location

Learn more about this property
Listing provided by:
RE/MAX Real Estate (Kamloops)
MLS® number:
10373871
Agent:
Helen Ralph
*Indicates required field
Name is required
Email is required
Please enter a valid phone number (e.g., 416-111-1111).

Street Spotlight - For sale