1553 Emerald Drive, Kamloops, British Columbia V2E 0C4

Listed for:
$1,098,900
6 beds
4 baths
Listed 11 days ago
House for rent: 1553 Emerald Drive, Kamloops, British Columbia V2E 0C4

View all 55 photos

About

This spacious semi-custom, stunner of a home is nestled in the heart of the very desirable neighbourhood of Juniper West, a family-friendly community where your kids will always find a friend to play with. The bright entrance with beautiful shiplap walls leads into an open-concept living space, perfect for entertaining, featuring a stunning kitchen with quartz countertops, large island, high-end stainless steel appliances, and ample cabinetry. The main level also includes a bright den/office, a 2-piece washroom and access to a large patio to enjoy an evening beverage while watching the kids play in the pool. Upstairs, the primary suite offers a spa-like ensuite with double sinks, a large tiled shower, and a walk-in closet with custom shelving. 2 additional large bedrooms, a full bathroom, and a large bonus bedroom/den (doesn't have built in closet) over the garage, ideal for a playroom, gym, extra living space or could simply be a 4th upper floor bedroom. Convenient upstairs laundry adds to the functionality. The fully finished basement includes an additional bedroom and a walk-out, high ceiling, bright 1-bedroom in-law suite with separate laundry. Outside, enjoy one of the largest flat backyards on Emerald Dr and easy access to nearby preschools, parks, and a local convenience store. The home also features a 2-car garage, built-in vacuum, U/G irrigation, above-ground pool and a brand new Hot-Tub. Check out the video, 3D-walkthrough and floor plans. Book your showing today! (id:27476)

Property Highlights

MLS® Number
10374422
Type
Single Family
Ownership Type
Freehold
Land Size
0.12 ac|under 1 acre
Parking Space Total
4

Building

Building Type
House
Storeys
3.00
Square Footage
3404 sqft
Bathrooms Total
4
Bedrooms Total
6
Amenities
Golf Nearby, Recreation, Shopping
Exterior Finish
Other
Fireplace Present
Yes
Basement Type
Full
Basement Features
Building Heating Type
Forced air, See remarks
Heating Fuel
Building Cooling Type
Central air conditioning

Utilities

Water
Municipal water
Utility Sewer
Municipal sewage system

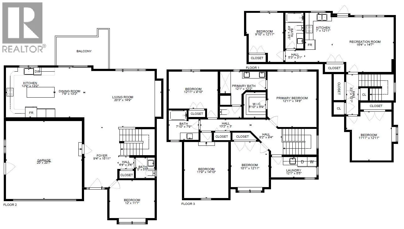
Room Layout

Laundry room
Second level
12'0'' x 5'8''
Bedroom
Second level
12'0'' x 15'0''
Bedroom
Second level
13'0'' x 10'0''
Bedroom
Second level
10'0'' x 12'0''
Primary Bedroom
Second level
13'0'' x 15'0''
4pc Bathroom
Second level
Measurements not available
5pc Ensuite bath
Second level
Measurements not available
Family room
Basement
23'6'' x 14'8''
Bedroom
Basement
10'0'' x 13'0''
Bedroom
Basement
10'0'' x 10'8''
4pc Bathroom
Basement
Measurements not available
Office
Main level
12'0'' x 10'0''
Great room
Main level
16'0'' x 15'0''
Dining room
Main level
10'0'' x 13'8''
Kitchen
Main level
12'9'' x 13'2''
2pc Bathroom
Main level
Measurements not available

Location

Learn more about this property
Listing provided by:
Brendan Shaw Real Estate Ltd.
MLS® number:
10374422
Agent:
Richard Burnett
*Indicates required field
Name is required
Email is required
Please enter a valid phone number (e.g., 416-111-1111).