107 River Gate Drive, Kamloops, British Columbia V2H 0E4

Listed for:
$664,900
3 beds
4 baths
Listed 55 days ago
Row / Townhouse for rent: 107 River Gate Drive, Kamloops, British Columbia V2H 0E4

View all 50 photos

About

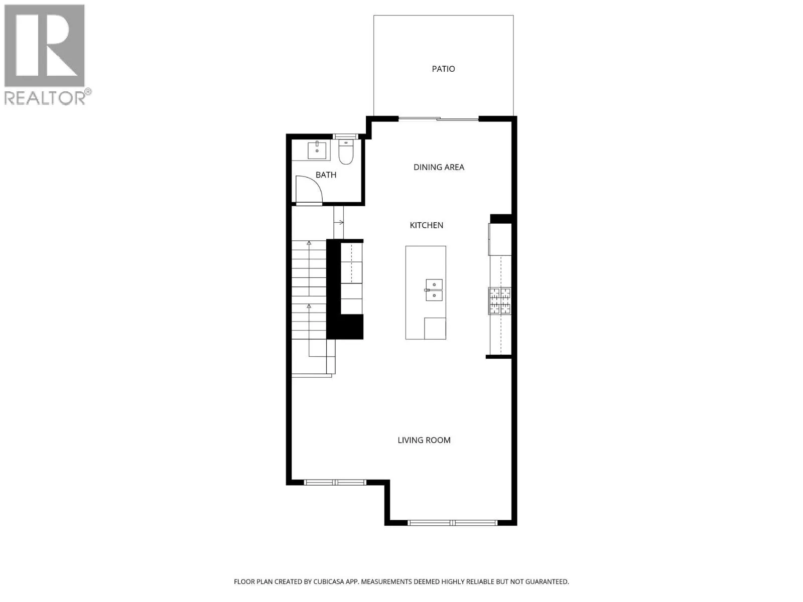
Welcome to this beautifully finished end-unit townhouse in the sought-after River Gate development at Sun Rivers. Sitting below the 6th hole, this home offers 1935 sq ft of living space across three levels and combines style and function in a prime location. The ground level entry offers a single-car garage and a large entry way. A bonus flex room currently used as workout room and 4-piece bathroom add extra convenience for guests or family. Under-stair storage and shelving in the garage make organization a breeze. On the main floor you will find an inviting open-concept space featuring a large bright kitchen with quartz countertops, a central island, gas range and a built-in coffee bar—perfect for morning routines or entertaining. Sliding glass doors lead to a private patio with fantastic views of the valley. Additionally, you have a natural gas BBQ hook-up and added greenspace thanks to the end-unit location. A 2-piece powder room rounds out the floor. Upstairs are three generous bedrooms including a spacious primary retreat on the view side, complete with a walk-in closet and luxurious 3-piece ensuite featuring a double vanity. A well-designed laundry area with built-in shelving is also located on the top level with another 4-piece main bathroom. Enjoy year-round comfort with geothermal heating and cooling, 200AMP service, and the peace of mind of a newer home with no GST. Just a short walk to local shopping, dining, and golf, this home offers both lifestyle and convenience. Book your showing today to join this great community! (id:27476)

Property Highlights

MLS® Number
10375214
Type
Single Family
Community Name
River Gate
Maintenance Fee
303.21
Ownership Type
Leasehold/Leased Land
Land Size
under 1 acre
Parking Space Total
2

Building

Building Type
Row / Townhouse
Storeys
3.00
Square Footage
1935 sqft
Bathrooms Total
4
Bedrooms Total
3
Amenities
Golf Nearby, Public Transit, Park, Recreation, Schools, Shopping
Exterior Finish
Vinyl siding, Other
Fireplace Present
No
Basement Type
Full
Basement Features
Building Heating Type
Heating Fuel
Geo Thermal
Building Cooling Type
See Remarks

Utilities

Water
Community Water User's Utility
Utility Sewer
Municipal sewage system

Room Layout

Laundry room
Second level
7'7'' x 4'9''
4pc Ensuite bath
Second level
7'5'' x 7'5''
4pc Bathroom
Second level
6'3'' x 5'5''
Bedroom
Second level
12'3'' x 9'8''
Primary Bedroom
Second level
11'7'' x 11'2''
Recreation room
Basement
15'3'' x 10'7''
4pc Bathroom
Basement
Measurements not available
Foyer
Basement
7'6'' x 8'5''
Bedroom
Main level
9'3'' x 11'
2pc Bathroom
Main level
5'5'' x 5'4''
Dining room
Main level
12'7'' x 9'4''
Kitchen
Main level
12'5'' x 15'8''
Living room
Main level
19'9'' x 13'2''

Location

Learn more about this property
Listing provided by:
Century 21 Assurance Realty Ltd
MLS® number:
10375214
Agent:
Kevin Bamsey
*Indicates required field
Name is required
Email is required
Please enter a valid phone number (e.g., 416-111-1111).