2971 Westsyde Road, Kamloops, British Columbia V2B 7E7

Listed for:
$674,900
0 beds
0 baths
Listed 10 days ago
Other for rent: 2971 Westsyde Road, Kamloops, British Columbia V2B 7E7

View all 6 photos

About

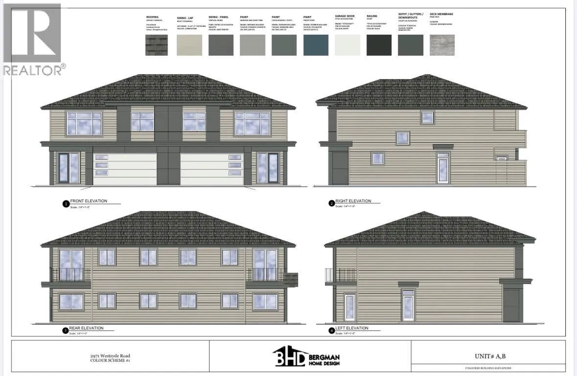
Prime Development Opportunity in Westsyde! This 0.33-acre property comes with an approved Development Permit and full building plans in place, making this a true turn-key project for builders and investors. The approved design features two full duplexes, providing four units that offer generous finished living space plus spacious garages to maximize resale. Site planning, and landscaping plans are complete and the modern exterior colour schemes and elevations have already been selected to enhance curb appeal and marketability. Located in the heart of Westsyde, close to schools, parks, and amenities, this is a rare opportunity to step into a multi-family project with the heavy lifting already done. Full development package available upon request. Contact the listing agent for more information. (id:27476)

Property Highlights

MLS® Number
10376399
Type
Vacant Land
Ownership Type
Freehold
Land Size
0.33 ac|under 1 acre

Building

Building Type
Other
Fireplace Present
No
Basement Type
Basement Features
Building Heating Type
Heating Fuel
Building Cooling Type

Utilities

Water
Municipal water
Utility Sewer
Municipal sewage system

Location

Learn more about this property
Listing provided by:
Stonehaus Realty Corp
MLS® number:
10376399
Agent:
Quinn Pache
*Indicates required field
Name is required
Email is required
Please enter a valid phone number (e.g., 416-111-1111).

Street Spotlight - For sale