2170 Galore Crescent, Kamloops, British Columbia V2E 0E4

Listed for:
$1,579,000
6 beds
5 baths
Listed 37 days ago
House for rent: 2170 Galore Crescent, Kamloops, British Columbia V2E 0E4

View all 6 photos

About

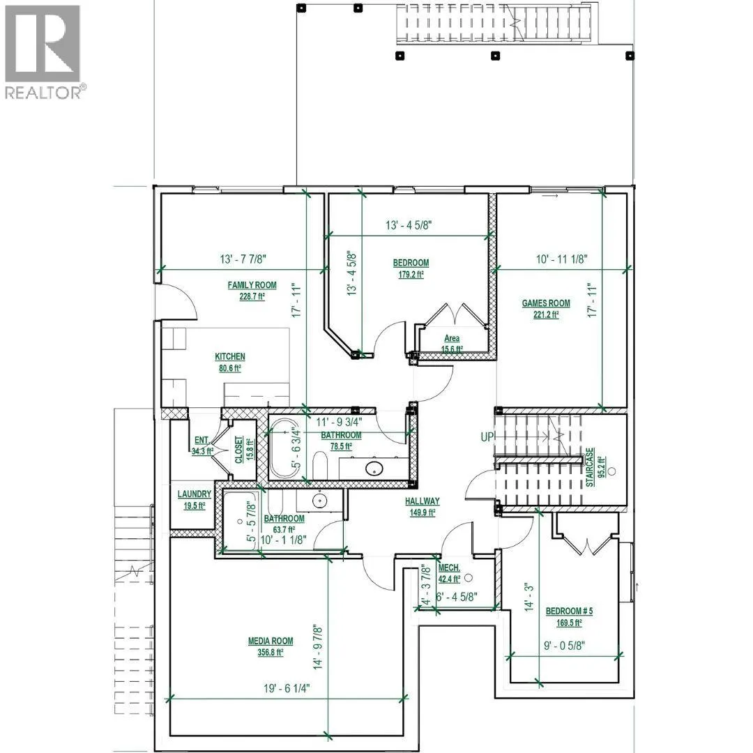
Welcome to this stunning new 6-bedroom + loft, 5-bathroom home offering space, style, and incredible views! Step inside the bright and open main floor, highlighted by soaring 18-foot ceilings in the entry and an inviting gourmet kitchen featuring quartz countertops and a large center island with walk-in pantry for extra storage. Upstairs, you’ll find a bonus loft space and 4 spacious bedrooms including primary bedroom with a walk-in closet and a spa-like 5-piece ensuite complete with a soaker tub, double vanity, and a separate shower. The upper level also includes a conveniently located laundry room and main bathroom with double vanity. The basement adds even more versatility with a rec room, media room, an additional bedroom and bathroom, plus a self-contained legal 1-bedroom suite with its own laundry and private entrance — ideal for guests, in-laws, or rental income. This home is roughed-in for central vacuum and equipped with central air conditioning. Estimated completion end of July, still time to choose colours and finishes! (id:27476)

Property Highlights

MLS® Number
10376814
Type
Single Family
Ownership Type
Freehold
Land Size
0.2 ac|under 1 acre
Parking Space Total
2

Building

Building Type
House
Storeys
3.00
Square Footage
4569 sqft
Bathrooms Total
5
Bedrooms Total
6
Amenities
Park
Exterior Finish
Other
Fireplace Present
Yes
Basement Type
Full
Basement Features
Building Heating Type
Forced air, See remarks
Heating Fuel
Building Cooling Type
Central air conditioning

Utilities

Water
Municipal water
Utility Sewer
Municipal sewage system

Room Layout

5pc Ensuite bath
Second level
Measurements not available
4pc Bathroom
Second level
Measurements not available
Laundry room
Second level
7'0'' x 6'6''
Loft
Second level
11'0'' x 10'6''
Bedroom
Second level
13'6'' x 12'6''
Bedroom
Second level
12'0'' x 10'6''
Bedroom
Second level
12'6'' x 10'6''
Primary Bedroom
Second level
18'0'' x 14'0''
3pc Bathroom
Basement
Measurements not available
Bedroom
Basement
12'0'' x 10'0''
Recreation room
Basement
18'0'' x 11'0''
Media
Basement
20'0'' x 17'0''
2pc Bathroom
Main level
Measurements not available
Mud room
Main level
11'6'' x 6'0''
Pantry
Main level
6'0'' x 6'0''
Kitchen
Main level
14'0'' x 13'6''
Dining room
Main level
12'0'' x 11'0''
Living room
Main level
17'6'' x 13'0''
Den
Main level
15'0'' x 11'0''
Full bathroom
Additional Accommodation
Measurements not available
Kitchen
Additional Accommodation
14'0'' x 8'0''
Living room
Additional Accommodation
13'6'' x 10'6''
Primary Bedroom
Additional Accommodation
13'0'' x 13'0''

Location

Learn more about this property
Listing provided by:
Century 21 Assurance Realty Ltd
MLS® number:
10376814
Agent:
Jerry Gill
*Indicates required field
Name is required
Email is required
Please enter a valid phone number (e.g., 416-111-1111).