1750 Pacific Way Unit# 16, Kamloops, British Columbia V2E 2K8

Listed for:
$549,900
2 beds
2 baths
Listed 35 days ago
Row / Townhouse for rent: 1750 Pacific Way Unit# 16, Kamloops, British Columbia V2E 2K8

View all 53 photos

About

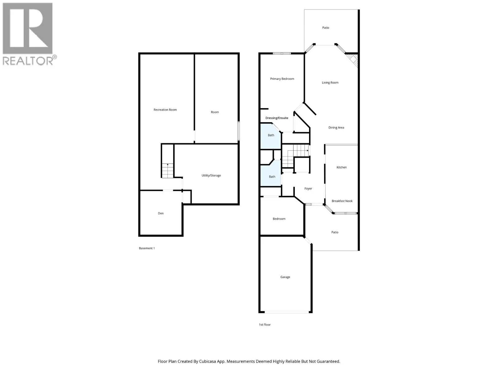
Immaculately maintained 2 bedroom, 2 bathroom rancher style townhouse in the very desirable Brigadoon complex. The main floor features a bright and open living room with access to the patio, dining room, kitchen, laundry, 4 piece main bathroom, and 2 bedrooms including a large primary bedroom with corner double closet and 4 piece ensuite. Full basement with lots of space including rec room, den, games room, and plenty of storage. Great central location close to all amenities and many updates throughout including kitchen, hot water tank (2024), and central air (2024). A must to view! (id:27476)

Property Highlights

MLS® Number
10376925
Type
Single Family
Community Name
BRIGADOON
Maintenance Fee
429.74
Ownership Type
Strata
Land Size
under 1 acre
Parking Space Total
1

Building

Building Type
Row / Townhouse
Storeys
2.00
Square Footage
2338 sqft
Bathrooms Total
2
Bedrooms Total
2
Exterior Finish
Stucco
Fireplace Present
Yes
Basement Type
Full
Basement Features
Building Heating Type
Forced air, See remarks
Heating Fuel
Building Cooling Type
Central air conditioning

Utilities

Water
Municipal water
Utility Sewer
Municipal sewage system

Room Layout

Storage
Basement
14'6'' x 15'
Den
Basement
10'5'' x 10'2''
Games room
Basement
22'10'' x 11'
Recreation room
Basement
22'10'' x 13'
4pc Ensuite bath
Main level
Measurements not available
3pc Bathroom
Main level
Measurements not available
Laundry room
Main level
3' x 3'
Bedroom
Main level
9'8'' x 10'9''
Primary Bedroom
Main level
15' x 11'4''
Foyer
Main level
7'10'' x 7'6''
Dining nook
Main level
7' x 8'5''
Kitchen
Main level
12' x 8'5''
Dining room
Main level
8' x 13'5''
Living room
Main level
17' x 13'5''

Location

Learn more about this property
Listing provided by:
RE/MAX Real Estate (Kamloops)
MLS® number:
10376925
Agent:
Helen Ralph
*Indicates required field
Name is required
Email is required
Please enter a valid phone number (e.g., 416-111-1111).

Street Spotlight - For sale