1225 Copperhead Drive, Kamloops, British Columbia V2E 0A1

Listed for:
$998,500
6 beds
4 baths
Listed 29 days ago
House for rent: 1225 Copperhead Drive, Kamloops, British Columbia V2E 0A1

View all 45 photos

About

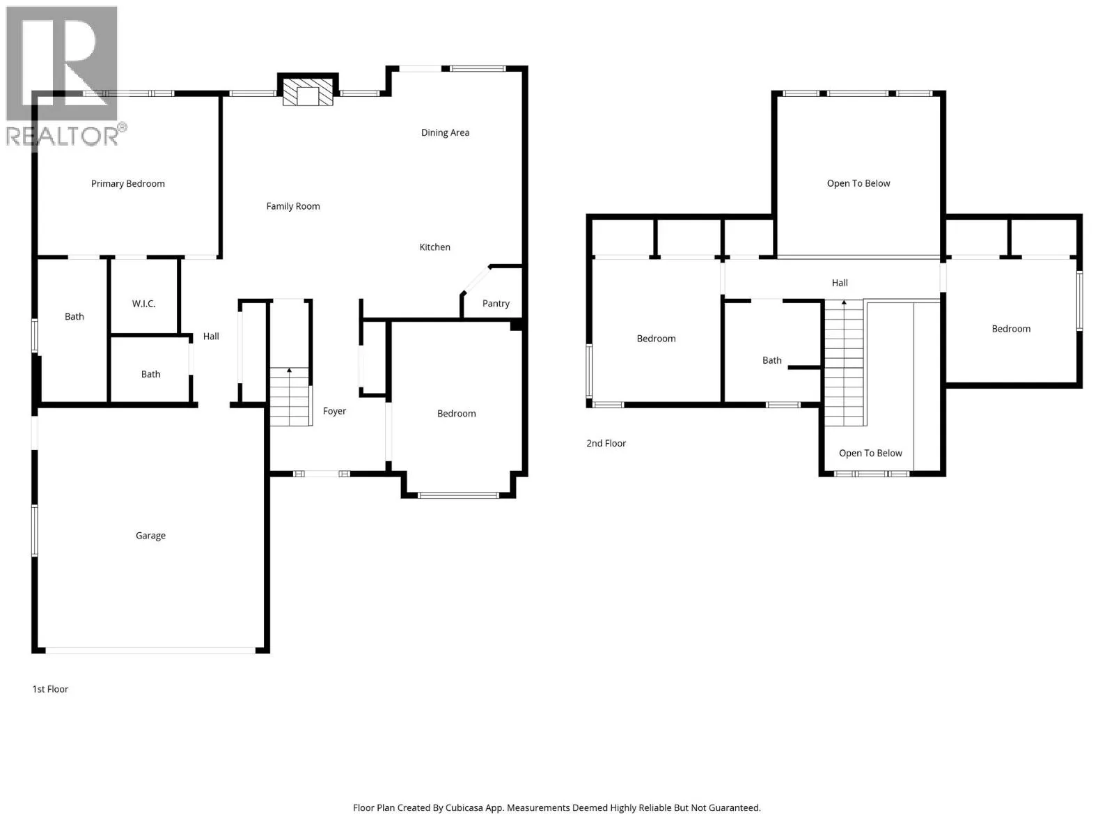
Welcome to 1225 Copperhead Drive. This 6-bedroom two storey home with a 2-bedroom in-law suite is in a highly sought after location in Dufferin backing onto Kenna Cartwright Park. Enter into the main floor of this home & you’ll immediately notice the impressive 17ft ceilings in the living room + large windows which bring in tons of natural light. The living room opens up to the kitchen & dining area which flows together effortlessly & is great for entertaining. The main floor has 2 bedrooms including a large primary bedroom with views of the park, 3pc ensuite bathroom, & walk in closet + there is an additional bedroom/office by the front door. The main floor also has a laundry room in the 2pc guest bathroom. The upper-level features 2 more bedrooms & a 4pc bathroom connected by a breezeway with great views of the outdoors. Outside the low-maintenance yard is a nature retreat at your own house. There is a large deck, great views of the park behind, & a gate that instantly connects you to the largest municipal park in BC. True privacy with no neighbours behind your house. Downstairs is a large 2-bedroom inlaw suite with separate entrance, full kitchen, 4pc bathroom, separate laundry, & large living room. Recent updates include new carpet on stairs (2026), hot water tank, main floor appliances, & basement suite reno(2024). Double garage, central vac, & an amazing location close to Dufferin Elementary, Costco, Aberdeen Mall, & all amenities. Book your showing today! (id:27476)

Property Highlights

MLS® Number
10377905
Type
Single Family
Ownership Type
Freehold
Land Size
0.11 ac|under 1 acre
Parking Space Total
2

Building

Building Type
House
Storeys
3.00
Square Footage
3024 sqft
Bathrooms Total
4
Bedrooms Total
6
Amenities
Park, Recreation, Shopping
Exterior Finish
Vinyl siding
Fireplace Present
Yes
Basement Type
Full
Basement Features
Building Heating Type
Forced air, See remarks
Heating Fuel
Building Cooling Type
Central air conditioning

Utilities

Water
Municipal water
Utility Sewer
Municipal sewage system

Room Layout

Bedroom
Second level
10'9'' x 11'6''
4pc Bathroom
Second level
Measurements not available
Bedroom
Second level
9'11'' x 11'
Living room
Basement
13'2'' x 16'
Kitchen
Basement
12'3'' x 9'11''
Bedroom
Basement
12'3'' x 13'5''
Bedroom
Basement
9'10'' x 12'2''
4pc Bathroom
Basement
Measurements not available
Laundry room
Basement
5'6'' x 14'
Dining room
Main level
9'4'' x 9'11''
Primary Bedroom
Main level
15'1'' x 12'11''
Living room
Main level
13'10'' x 16'5''
Bedroom
Main level
10'2'' x 11'5''
Kitchen
Main level
11'11'' x 12'6''
3pc Ensuite bath
Main level
Measurements not available
2pc Bathroom
Main level
Measurements not available

Location

Learn more about this property
Listing provided by:
Century 21 Assurance Realty Ltd
MLS® number:
10377905
Agent:
Kevin Bamsey
*Indicates required field
Name is required
Email is required
Please enter a valid phone number (e.g., 416-111-1111).