128 Lake Point Court, Kamloops, British Columbia V1S 0G2

Listed for:
$2,000,000
6 beds
5 baths
Listed 27 days ago
House for rent: 128 Lake Point Court, Kamloops, British Columbia V1S 0G2

View all 15 photos

About

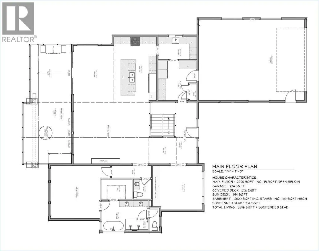
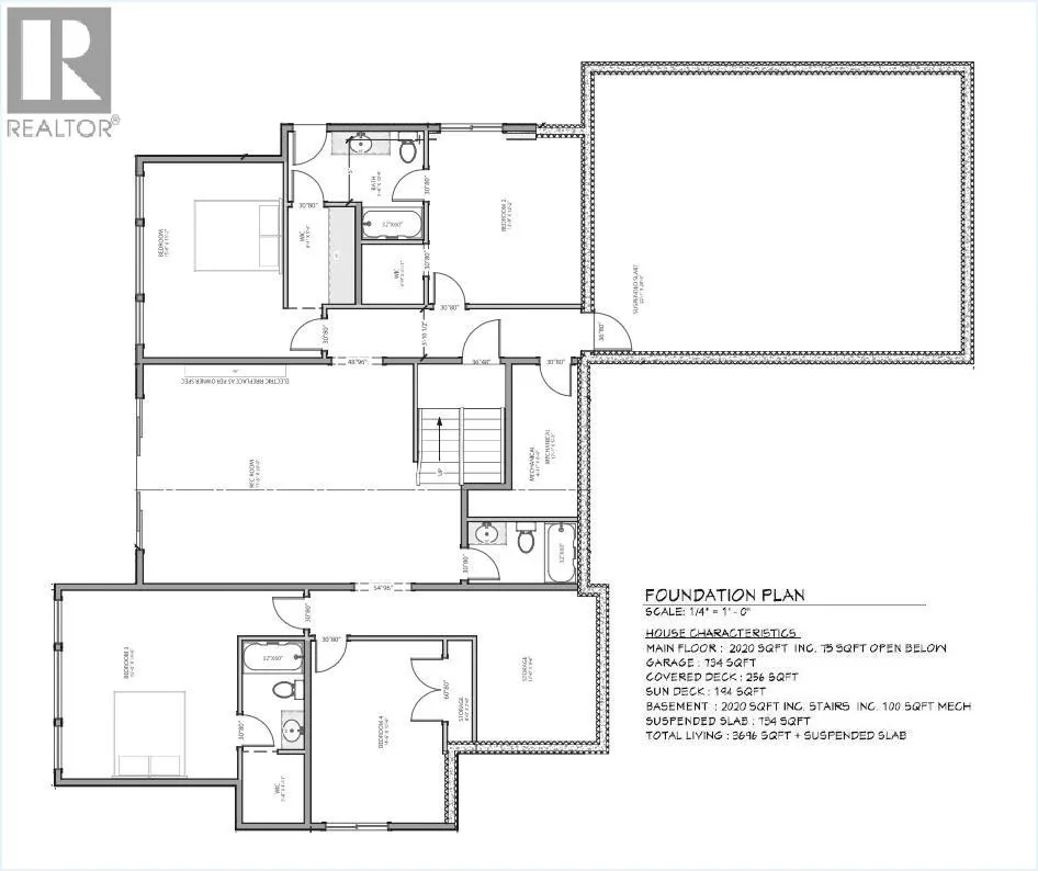
Welcome to 128 Lake Point Court. This +25,000 SqFt lot will feature a stunning rancher with full basement, complete with up to 6 bedrooms and 5 bathrooms. The main level boasts a front guest bedroom (or office / den), a spacious main living area with flow between the large kitchen and bright dining room, as well as a butler’s pantry, and laundry / mudroom combo leading into the double car garage. Finishing off the level is a 2pc powder room just before the bright Primary Suite, with its 6pc ensuite featuring a double headed shower and double vanity, and separated water closet. The lower level encompasses a large rec room, surrounded by the 4 additional large bedrooms, 3 bathrooms, plus an extra storage room. The suspended slab area could be utilized to provide more square footage to the home and would be perfect as a media / theatre space for family and friends. The outdoor space features a covered deck area and sundeck well suited for entertaining and taking in those infamous Tobiano sunrises, no matter the weather. Please contact for more information and construction schedule. All meas are approx., buyer to confirm if important. (id:27476)

Property Highlights

MLS® Number
10373036
Type
Single Family
Maintenance Fee
0.00
Ownership Type
Freehold
Land Size
0.59 ac|under 1 acre
Parking Space Total
2

Building

Building Type
House
Storeys
2.00
Square Footage
4040 sqft
Bathrooms Total
5
Bedrooms Total
6
Amenities
Golf Nearby, Recreation
Fireplace Present
No
Basement Type
Basement Features
Building Heating Type
Forced air, See remarks
Heating Fuel
Building Cooling Type
Central air conditioning

Utilities

Water
Community Water User's Utility

Room Layout

Utility room
Basement
12'1'' x 5'3''
4pc Bathroom
Basement
Measurements not available
Recreation room
Basement
17'5'' x 28'9''
Storage
Basement
12'0'' x 9'6''
4pc Ensuite bath
Basement
Measurements not available
Bedroom
Basement
14'6'' x 10'6''
Bedroom
Basement
15'0'' x 14'0''
4pc Bathroom
Basement
Measurements not available
Bedroom
Basement
13'9'' x 12'2''
Bedroom
Basement
15'6'' x 11'2''
6pc Ensuite bath
Main level
Measurements not available
2pc Bathroom
Main level
Measurements not available
Primary Bedroom
Main level
15'0'' x 14'0''
Laundry room
Main level
11'2'' x 11'0''
Pantry
Main level
6'6'' x 11'0''
Kitchen
Main level
18'7'' x 12'0''
Dining room
Main level
16'1'' x 11'6''
Living room
Main level
17'5'' x 23'6''
Bedroom
Main level
12'6'' x 14'0''
Foyer
Main level
17'5'' x 6'3''

Location

Learn more about this property
Listing provided by:
eXp Realty (Kamloops)
MLS® number:
10373036
Agent:
Trevor E Finch
*Indicates required field
Name is required
Email is required
Please enter a valid phone number (e.g., 416-111-1111).