1030 Ricardo Road Unit# 73, Kamloops, British Columbia V2H 0C7

Listed for:
$469,900
3 beds
2 baths
Listed 24 days ago
Manufactured Home for rent: 1030 Ricardo Road Unit# 73, Kamloops, British Columbia V2H 0C7

View all 28 photos

About

Welcome to Mountain View Estates- a well kept community offering easy, single level living just minutes away to everyday amenities. This bright and comfortable three bedroom, two bedroom double wide manufactured home has vaulted ceiling features, an open concept main living area with spacious living room, dining room and a beautiful functional kitchen with a huge island and walk in panty. The king sized primary bedroom includes a huge closet and four piece ensuite. The two other bedrooms arae perfect for kids, an office or guests. Step outside and enjoy the large private, fully fenced backyard. Perfect for entertaining or just sit and relax. Lots of parking in the front of the home. Pets allowed with restrictions. Give me a call to view (id:27476)

Property Highlights

MLS® Number
10378693
Type
Single Family
Maintenance Fee
450.00
Land Size
under 1 acre
Parking Space Total
2

Building

Building Type
Manufactured Home
Storeys
1.00
Square Footage
1352 sqft
Bathrooms Total
2
Bedrooms Total
3
Exterior Finish
Other
Fireplace Present
No
Basement Type
Basement Features
Building Heating Type
Forced air, See remarks
Heating Fuel
Building Cooling Type
Central air conditioning

Utilities

Water
Community Water User's Utility
Utility Sewer
Municipal sewage system

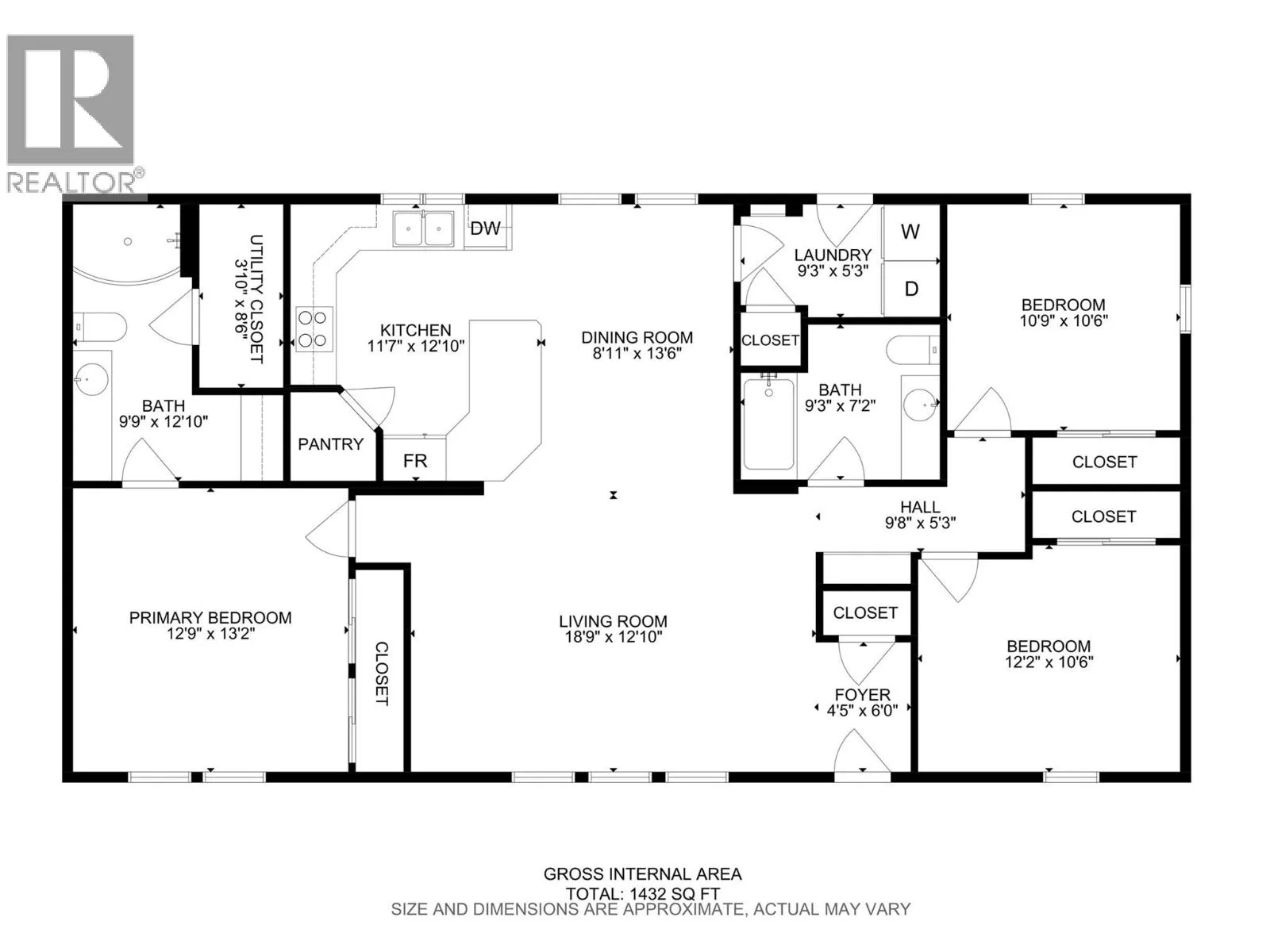
Room Layout

Utility room
Main level
9'3'' x 5'3''
Primary Bedroom
Main level
12'9'' x 13'2''
Bedroom
Main level
12'2'' x 10'6''
Bedroom
Main level
10'9'' x 10'6''
Living room
Main level
18'9'' x 12'10''
Dining room
Main level
8'11'' x 13'6''
Kitchen
Main level
11'7'' x 12'10''
4pc Bathroom
Main level
Measurements not available
4pc Ensuite bath
Main level
Measurements not available

Location

Learn more about this property
Listing provided by:
eXp Realty (Kamloops)
MLS® number:
10378693
Agent:
Carmeliza Hurst
*Indicates required field
Name is required
Email is required
Please enter a valid phone number (e.g., 416-111-1111).