1855 Hillside Drive Unit# 13, Kamloops, British Columbia V1S 1J7

Listed for:
$604,900
3 beds
2 baths
Listed 8 days ago
Row / Townhouse for rent: 1855 Hillside Drive Unit# 13, Kamloops, British Columbia V1S 1J7

View all 30 photos

About

Welcome to 13-1855 Hillside Drive, an immaculate 3-bedroom, 2-bathroom home in the highly desirable Dufferin neighbourhood. Just steps from Kenna Cartwright trails, tennis and pickleball courts, shopping, transit, and Dufferin Elementary, this location offers a great balance of convenience and outdoor lifestyle. The main floor features a bright open living and dining area centered around a cozy gas fireplace, with a view of the Dufferin Wetlands through a natural treed opening that creates a peaceful and private setting year round. The large primary bedroom offers a walk-in closet and cheater access to the main bathroom, while the second bedroom is ideal for young families, guests, or a home office. Downstairs offers a functional and flexible layout with a spacious rec room, a large hobby room perfect for a gym, office, or creative space, plus a third bedroom, full bathroom, laundry, and ample storage. The freshly painted basement and walkout access to the covered patio add to the overall usability of the home. Recent updates include partially updated flooring, new washer and dryer (2024), new dishwasher, and fully updated tub and shower in both bathrooms (2025). Outside, you will appreciate the single-car garage plus two additional driveway parking spaces. Bareland strata with a reasonable monthly fee of $222/month. Pet friendly with restrictions, allowing up to 2 dogs, 2 cats, or one of each. (id:27476)

Property Highlights

MLS® Number
10378552
Type
Single Family
Community Name
Hillside Park
Maintenance Fee
222.00
Ownership Type
Bare Land Condo/Strata
Land Size
0.07 ac|under 1 acre
Parking Space Total
1

Building

Building Type
Row / Townhouse
Storeys
1.00
Square Footage
1958 sqft
Bathrooms Total
2
Bedrooms Total
3
Amenities
Shopping
Exterior Finish
Vinyl siding
Fireplace Present
Yes
Basement Type
Full
Basement Features
Building Heating Type
Forced air
Heating Fuel
Building Cooling Type
Central air conditioning

Utilities

Water
Municipal water
Utility Sewer
Municipal sewage system

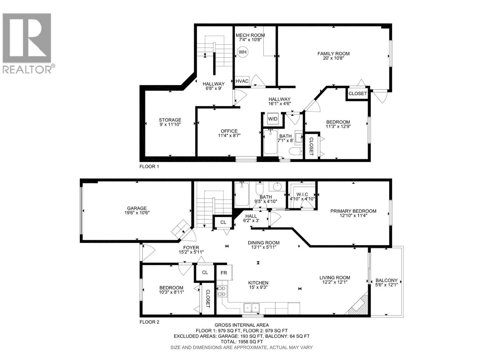
Room Layout

4pc Bathroom
Basement
Measurements not available
Storage
Basement
11'10'' x 9'
Living room
Basement
20' x 10'8''
Hobby room
Basement
8'7'' x 11'4''
Utility room
Basement
10'8'' x 7'4''
Bedroom
Basement
11'3'' x 12'9''
4pc Bathroom
Main level
Measurements not available
Kitchen
Main level
13'1'' x 5'11''
Living room
Main level
12'2'' x 11'4''
Primary Bedroom
Main level
12'10'' x 11'4''
Bedroom
Main level
8'11'' x 10'3''

Location

Learn more about this property
Listing provided by:
eXp Realty (Kamloops)
MLS® number:
10378552
Agent:
Kyle Thompson
*Indicates required field
Name is required
Email is required
Please enter a valid phone number (e.g., 416-111-1111).