650 13th Avenue, Kamloops, British Columbia V2C 3Y9

Listed for:
$799,900
4 beds
3 baths
Listed 47 days ago
House for rent: 650 13th Avenue, Kamloops, British Columbia V2C 3Y9

View all 46 photos

About

Nestled on a prime corner lot at the intersection of Nicola Street and 13th Avenue, offered for the first time for sale, this solid split-level residence presents a rare opportunity to secure a prime location in Downtown Kamloops. Step into this mid-century character home, the spacious layout offers room to grow; featuring a main floor designed for both connection and privacy with its formal dining area, living room centered around a classic rock fireplace, and a versatile family room. plus a main floor office and additional bedroom that cater perfectly to a work-from-home lifestyle. The functional floor plan includes three bedrooms on the upper level, including a primary bedroom already plumbed for an ensuite (no fixtures). Beyond the main living spaces, the home features an unfinished basement and a separate storage/utility room with a door to the backyard plus crawl space for extensive storage. The basement has the potential to be suited with a separate entrance, electrical and plumbing easily accessible. The exterior includes a detached garage accessible through the covered carport and a wrap-around yard with mature trees and garden area. Sitting on an impressive 7,496 square foot R2-zoned lot with convenient alley access, this property is the ultimate find for those looking for an unbeatable location or future development potential (must verify with the City of Kamloops). The property is 62 ft deep with access from the alley and adjacent to Nicola Street and 119 ft fronting onto 13th Street. (id:27476)

Property Highlights

MLS® Number
10381091
Type
Single Family
Ownership Type
Freehold
Land Size
0.17 ac|under 1 acre
Parking Space Total
1

Building

Building Type
House
Storeys
3.50
Square Footage
2194 sqft
Bathrooms Total
3
Bedrooms Total
4
Fireplace Present
No
Basement Type
Crawl space, Partial
Basement Features
Building Heating Type
Forced air
Heating Fuel
Building Cooling Type
Central air conditioning

Utilities

Water
Municipal water
Utility Sewer
Municipal sewage system

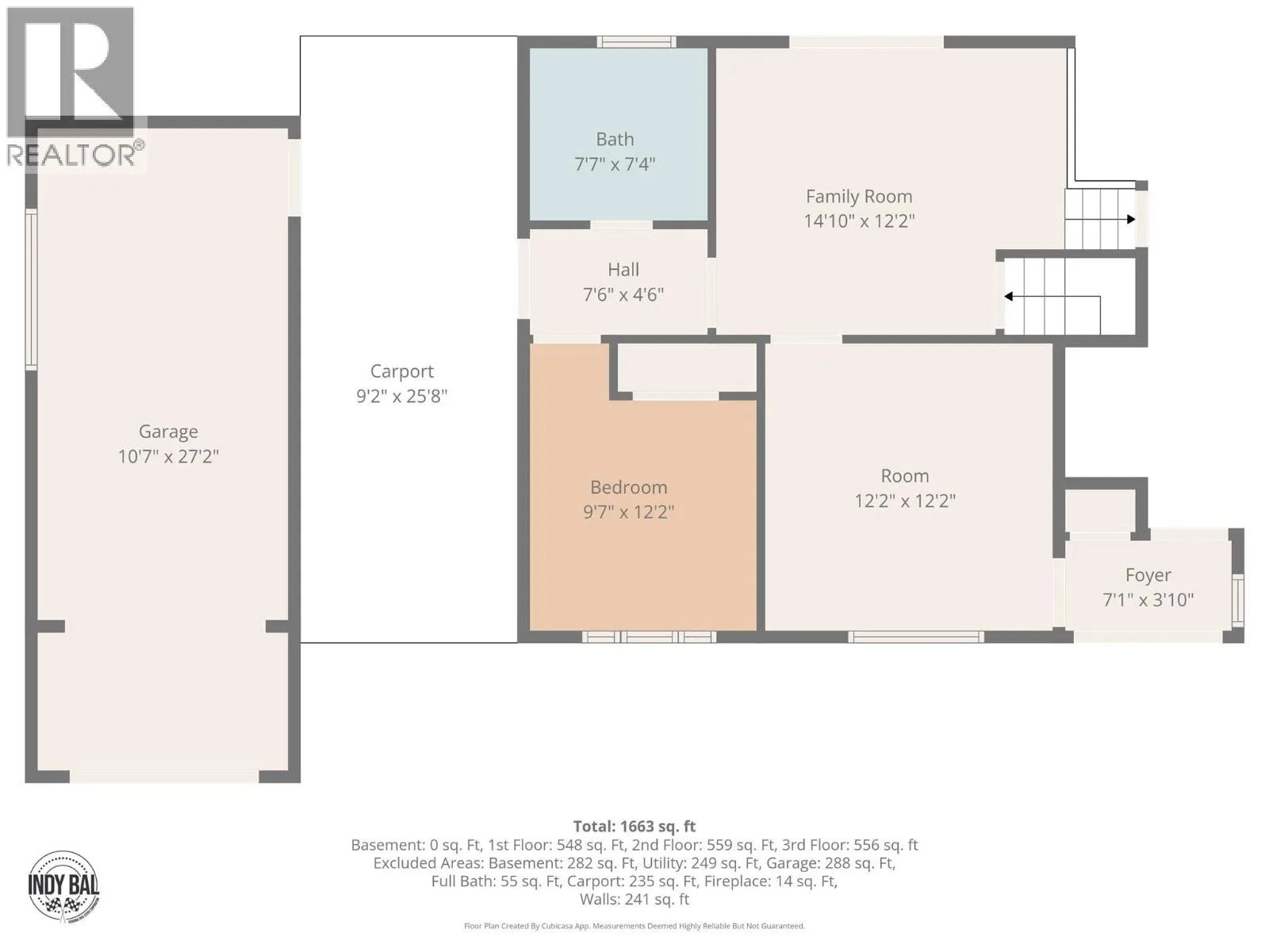
Room Layout

Living room
Second level
23'10'' x 10'4''
Dining room
Second level
9' x 10'5''
Kitchen
Second level
17'10'' x 10'
Partial ensuite bathroom
Third level
4'2'' x 3'3''
4pc Bathroom
Third level
Measurements not available
Bedroom
Third level
10'7'' x 12'2''
Bedroom
Third level
8'8'' x 12'2''
Primary Bedroom
Third level
11'7'' x 8'6''
Utility room
Basement
25'5'' x 10'
Storage
Basement
27'2'' x 10'6''
Foyer
Main level
7'1'' x 3'10''
Den
Main level
12'2'' x 12'2''
Bedroom
Main level
9'7'' x 12'2''
4pc Bathroom
Main level
Measurements not available
Family room
Main level
14'10'' x 12'2''

Location

Learn more about this property
Listing provided by:
REMAX Kamloops
MLS® number:
10381091
Agent:
Indy Bal
*Indicates required field
Name is required
Email is required
Please enter a valid phone number (e.g., 416-111-1111).

Street Spotlight - For sale