4729 Lakeshore Road, Kelowna, British Columbia V1W 4H6

Listed for:
$1,890,000
3 beds
2 baths
Listed 163 days ago
House for rent: 4729 Lakeshore Road, Kelowna, British Columbia V1W 4H6

View all 98 photos

About

Bring your vision! Nestled between two orchards, this 6.6 acre property in the ALR has incredible potential for a variety of uses. Want privacy and space for your dream estate? Want to build an estate vineyard? Want to have space for horses? This property has many existing trees and has never been farmed. Current zoning will support a home plus structures used for agriculture, including greenhouses, farm retail sales stands, and those structures associated with crop storage, on-farm processing, stables, alcohol production facilities, and tasting facility or lounge, and temporary farm working housing which may be located outside the residential footprint. The house was built in approximately 1959, and in spite of its age, pride of ownership and caring upkeep still shows with the entire property. There is a wood stove in the lower level and has been WETT certified, the upper level fireplace is Gas. Expansive lake views from the upper part of the acreage. Just minutes from the Lower Mission shopping, restaurants, beaches, H2O, hiking and walking trails. (id:27476)

Property Highlights

MLS® Number
10307572
Type
Single Family
Ownership Type
Freehold
Land Size
6.6 ac|5 - 10 acres
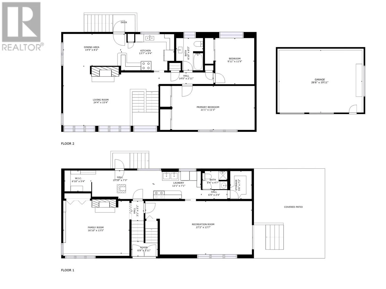
Parking Space Total
4

Building

Building Type
House
Storeys
2.00
Square Footage
2183 sqft
Bathrooms Total
2
Bedrooms Total
3
Exterior Finish
Wood siding
Fireplace Present
Yes
Basement Type
Full
Basement Features
Building Heating Type
Forced air, See remarks
Heating Fuel
Building Cooling Type

Utilities

Water
Well
Utility Sewer
Septic tank

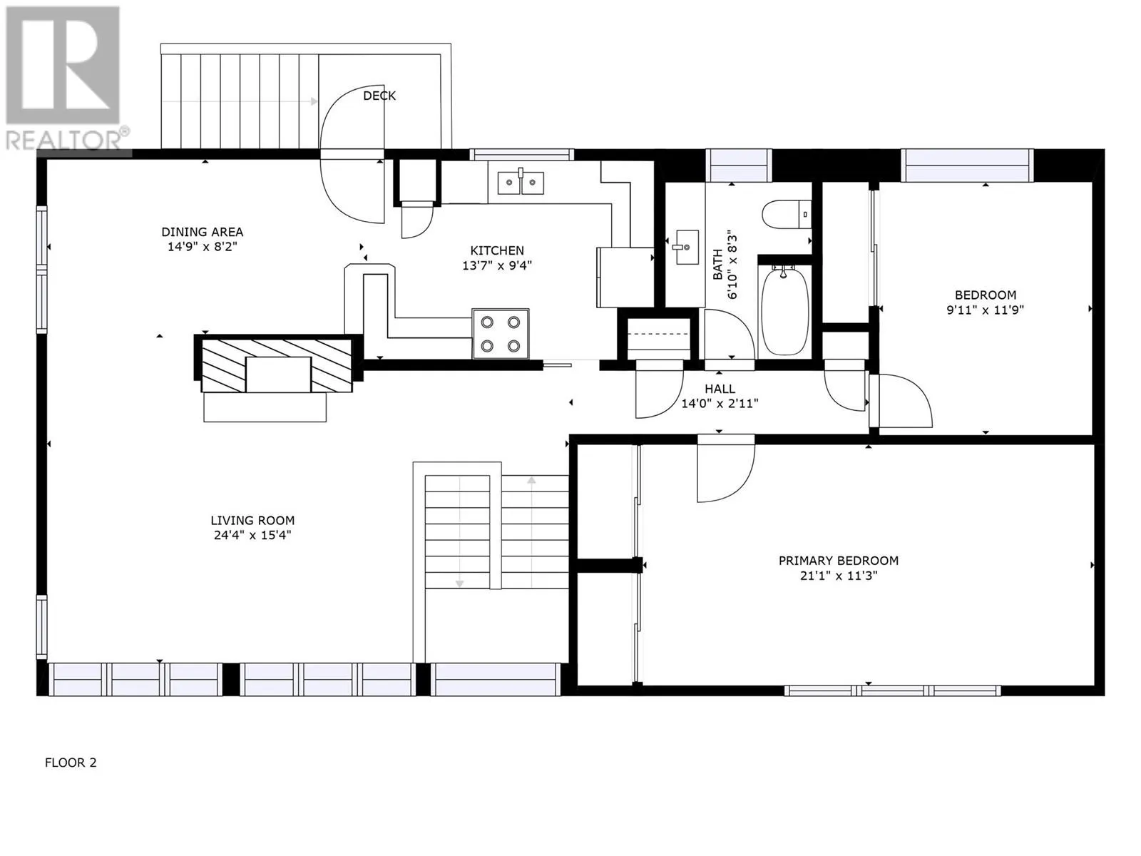
Room Layout

Bedroom
Second level
9'11'' x 11'9''
4pc Bathroom
Second level
6'10'' x 8'3''
Primary Bedroom
Second level
21'1'' x 11'3''
Living room
Second level
24'4'' x 15'4''
Dining room
Second level
14'9'' x 8'2''
Kitchen
Second level
13'7'' x 9'4''
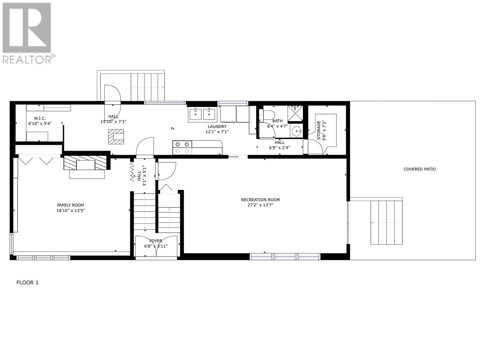
Other
Main level
6'10'' x 5'4''
Foyer
Main level
15'10'' x 7'3''
3pc Bathroom
Main level
6'4'' x 4'7''
Storage
Main level
5'6'' x 7'2''
Recreation room
Main level
27'2'' x 13'7''
Bedroom
Main level
16'10'' x 13'5''
Laundry room
Main level
12'1'' x 7'1''

Location

Learn more about this property
Listing provided by:
Century 21 Assurance Realty Ltd
MLS® number:
10307572
Agent:
Kristine French
*Indicates required field
Name is required
Email is required
Please enter a valid phone number (e.g., 416-111-1111).

Street Spotlight - For sale